











































- 4 bd
- 2 ba
- 1,799 sqft
430 Wolcott Wy, Panama City Beach, FL 32413
- Single-Family
- $213.65/sqft
- 191 days on Jome
New Homes for Sale Near 430 Wolcott Wy, Panama City Beach, FL 32413
About this Home
About this home
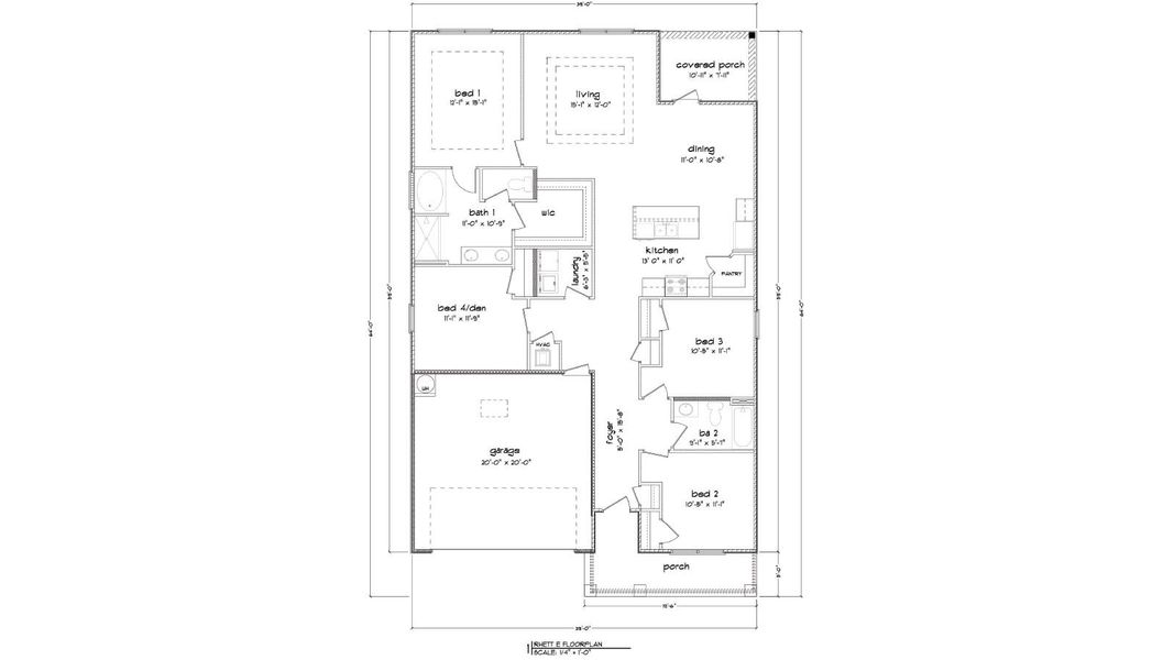
Welcome to 430 Wolcott Way, a new home at Bayside at Ward Creek in Panama City Beach. This home is under construction and features the Rhett floorplan, a four-bedroom, two-bathroom home with over 1,700 square feet of living space. As you enter this home through the bright entryway you will find EVP flooring in the foyer leading to three guest bedrooms. Continuing through the foyer you will find an open and spacious living area. The kitchen serves as the heart of the home and features quartz countertops, beautiful white upper and lower cabinetry and a stainless-steel appliance package that includes a smooth top stove, microwave, and dishwasher. Enjoy spending time with guest and family comfortably with your open kitchen.
The primary bedroom is located off the living area and has private ensuite bathroom with a large shower with glass enclosure, dual sink vanity with quartz countertops and lower cabinetry for storage, a separate water closet and large soak tub as well as a large closet. The guest bedrooms have spacious closets and share a full bathroom with shower and tub combination. Each bedroom has plush carpet and spacious closets. This home has a Home is Connected® Smart Home Technology Package.
Enjoy afternoons or morning coffee from your covered back patio or relax on your front porch as you look out to your lawn and a flower bed off the entry walk. This home is located just a short walk from the community pool. Call us today
May also be listed on the D.R. Horton website
Information last verified by Jome: Friday at 3:05 AM (January 9, 2026)
Home details
- Property status:
- Sold
- Size:
- 1,799 sqft
- Stories:
- 1
- Beds:
- 4
- Baths:
- 2
- Garage spaces:
- 2
Construction details
- Builder Name:
- D.R. Horton
Home features & finishes
- Garage/Parking:
- GarageAttached Garage
- Interior Features:
- Walk-In ClosetFoyer
- Laundry facilities:
- Utility/Laundry Room
- Property amenities:
- Porch
- Rooms:
- Primary Bedroom On MainKitchenDining RoomLiving RoomPrimary Bedroom Downstairs

Community details
Bayside at Ward Creek
by D.R. Horton, Panama City Beach, FL
- 22 homes
- 7 plans
- 1,459 - 2,550 sqft
View Bayside at Ward Creek details
More homes in Bayside at Ward Creek
- Home at address 594 Hancock Wy, Panama City Beach, FL 32413

$417,083
Move-in ready- 4 bd
- 2 ba
- 1,799 sqft
594 Hancock Wy, Panama City Beach, FL 32413
- Home at address 582 Hancock Wy, Panama City Beach, FL 32413

$434,645
Move-in ready- 4 bd
- 2 ba
- 1,799 sqft
582 Hancock Wy, Panama City Beach, FL 32413
- Home at address 405 Wolcott Wy, Panama City Beach, FL 32413

$436,319
Move-in ready- 5 bd
- 3 ba
- 2,145 sqft
405 Wolcott Wy, Panama City Beach, FL 32413
- Home at address 589 Hancock Wy, Panama City Beach, FL 32413

$439,035
Move-in ready- 4 bd
- 2 ba
- 1,799 sqft
589 Hancock Wy, Panama City Beach, FL 32413
- Home at address 590 Hancock Wy, Panama City Beach, FL 32413

$450,547
Move-in ready- 5 bd
- 3 ba
- 2,145 sqft
590 Hancock Wy, Panama City Beach, FL 32413
- Home at address 601 Hancock Wy, Panama City Beach, FL 32413

$459,062
Move-in ready- 5 bd
- 3 ba
- 2,145 sqft
601 Hancock Wy, Panama City Beach, FL 32413
Floor plans in Bayside at Ward Creek
About the builder - D.R. Horton

- 1,164communities on Jome
- 10,414homes on Jome
Neighborhood
Home address
- City:
- Panama City Beach
- County:
- Bay
- Zip Code:
- 32413
Schools in Bay County School District
GreatSchools’ Summary Rating calculation is based on 4 of the school’s themed ratings, including test scores, student/academic progress, college readiness, and equity. This information should only be used as a reference. Jome is not affiliated with GreatSchools and does not endorse or guarantee this information. Please reach out to schools directly to verify all information and enrollment eligibility. Data provided by GreatSchools.org © 2025
Places of interest
Getting around
Air quality
Financials
Nearby communities in Panama City Beach
Homes in Panama City Beach by D.R. Horton
Recently added communities in this area
Other Builders in Panama City Beach, FL
Nearby sold homes
New homes in nearby cities
More New Homes in Panama City Beach, FL
- Jome
- New homes search
- Florida
- Bay County
- Panama City Beach
- Bayside at Ward Creek
- 430 Wolcott Wy, Panama City Beach, FL 32413



































































