















































- 3 bd
- 3 ba
- 1,927 sqft
328 Cherry Elm Dr, St. Augustine, FL 32092
- Townhouse
- $183.18/sqft
- $402/quarterly HOA
- East facing
New Homes for Sale Near 328 Cherry Elm Dr, St. Augustine, FL 32092
About this Home
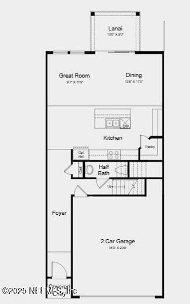
What's Special: White Cabinets | Loft | Oversized Pantry. New Construction- January Completion! Built by America's Most Trusted Homebuilder. Welcome to the Birch at 328 Cherry Elm Drive in Cherry Elm at SilverLeaf. This inviting new townhome is designed for easy living with an open-concept layout that connects the kitchen, dining area, and great room. The kitchen features a spacious center island and a walk-in pantry, while the covered lanai offers a relaxing outdoor retreat. Upstairs, you'll find a versatile loft, two secondary bedrooms with a shared bath, and a private primary suite with a walk-in closet and dual-sink vanity. An upstairs laundry area and thoughtful storage, including coat and linen closets, make everyday life simple. Cherry Elm at SilverLeaf brings low-maintenance living to a master-planned community in St. Johns County. Photos are for representative purposes only.
MLS#2109839
TAYLOR MORRISON REALTY OF FLA, MLS 2109839
Information last verified by Jome: Today at 1:23 AM (March 4, 2026)
Home details
- Property status:
- Sold
- Lot size (acres):
- 0.06
- Size:
- 1,927 sqft
- Stories:
- 2
- Beds:
- 3
- Baths:
- 3
- Half baths:
- 1
- Garage spaces:
- 2
- Facing direction:
- East
Construction details
- Year Built:
- 2025
- Roof:
- Shingle Roofing
Home features & finishes
- Appliances:
- Ice Maker
- Flooring:
- Carpet FlooringTile Flooring
- Garage/Parking:
- Door OpenerGarageAttached Garage
- Interior Features:
- Walk-In ClosetFoyerPantry
- Kitchen:
- DishwasherMicrowave OvenRefrigeratorDisposalGas CooktopKitchen IslandGas OvenKitchen Range
- Laundry facilities:
- DryerWasher
- Lighting:
- Security Lights
- Property amenities:
- Patio
- Security system:
- Security SystemSmoke DetectorCarbon Monoxide Detector
Utility information
- Utilities:
- Electricity Available, Natural Gas Available, Sewer Available, Water Available
Community amenities
- Gated Community
Neighborhood
Home address
- City:
- St. Augustine
- County:
- St. Johns
- Zip Code:
- 32092
Schools in St. Johns County School District
- Grades PK-05Privategrowing together behavioral center4.6 mi1808 forest glen wayna
GreatSchools’ Summary Rating calculation is based on 4 of the school’s themed ratings, including test scores, student/academic progress, college readiness, and equity. This information should only be used as a reference. Jome is not affiliated with GreatSchools and does not endorse or guarantee this information. Please reach out to schools directly to verify all information and enrollment eligibility. Data provided by GreatSchools.org © 2025
Places of interest
Getting around
Noise level
A Soundscore™ rating is a number between 50 (very loud) and 100 (very quiet) that tells you how loud a location is due to environmental noise.
Natural hazards risk
Provided by FEMA
Financials
Nearby communities in St. Augustine
Recently added communities in this area
Other Builders in St. Augustine, FL
Nearby sold homes
New homes in nearby cities
More New Homes in St. Augustine, FL
TAYLOR MORRISON REALTY OF FLA, MLS 2109839
IDX information is provided exclusively for personal, non-commercial use, and may not be used for any purpose other than to identify prospective properties consumers may be interested in purchasing. Data is deemed reliable but is not guaranteed accurate by NEFMLS. © 2025 Northeast Florida Multiple Listing Service, Inc. All rights reserved.
Read moreLast checked Mar 4, 5:00 am
- Jome
- New homes search
- Florida
- Jacksonville Metropolitan Area
- St. Johns County
- St. Augustine
- 328 Cherry Elm Dr, St. Augustine, FL 32092












































