








Book your tour. Save an average of $18,473. We'll handle the rest.
We collect exclusive builder offers, book your tours, and support you from start to housewarming.
- Confirmed tours
- Get matched & compare top deals
- Expert help, no pressure
- No added fees
Estimated value based on Jome data, T&C apply










































- 3 bd
- 3 ba
- 1,927 sqft
354 Cherry Elm Dr, St. Augustine, FL 32092
Why tour with Jome?
- No pressure toursTour at your own pace with no sales pressure
- Expert guidanceGet insights from our home buying experts
- Exclusive accessSee homes and deals not available elsewhere
Jome is featured in
- Townhouse
- Quick move-in
- $186.81/sqft
- $402/quarterly HOA
Home description
What's Special: New Floor Plan | Loft | Covered Lanai. New Construction- Ready Now! Built by America's Most Trusted Home Builder. Welcome to the Bellflower at 354 Cherry Elm Drive in Cherry Elm at SilverLeaf. Step inside to an inviting great room and open kitchen with a large island, plus a covered lanai overlooking the backyard. Upstairs, a cozy loft connects two secondary bedrooms and a full bath, along with a centrally located laundry room. The primary suite sits at the rear for added privacy and features a dual-sink vanity, spacious shower, and walk-in closet. Cherry Elm at SilverLeaf offers low-maintenance living, along with pools, pickleball and tennis courts, walking trails, pocket parks, and a planned amenity field. Enjoy nearby parks, the St. Johns River, and easy access to major roadways leading to beaches, state parks, and historic districts, with even more connectivity coming as area road expansions continue. MLS#2126050
TAYLOR MORRISON REALTY OF FLA, MLS 2126050
May also be listed on the Taylor Morrison website
Information last verified by Jome: Today at 1:28 AM (April 21, 2026)
Home highlights
Iconic golf course in Ponte Vedra Beach, home to The Players Championship and renowned island green on hole 17.
Book your tour. Save an average of $18,473. We'll handle the rest.
We collect exclusive builder offers, book your tours, and support you from start to housewarming.
- Confirmed tours
- Get matched & compare top deals
- Expert help, no pressure
- No added fees
Estimated value based on Jome data, T&C apply
Home details
- Property status:
- Move-in ready
- Size:
- 1,927 sqft
- Stories:
- 2
- Beds:
- 3
- Baths:
- 3
- Half baths:
- 1
- Garage spaces:
- 2
- Facing direction:
- North
Construction details
- Builder Name:
- Taylor Morrison
- Completion Date:
- March, 2026
- Year Built:
- 2026
- Roof:
- Shingle Roofing
Home features & finishes
- Appliances:
- Trash Compactor
- Construction Materials:
- ConcreteFrame
- Cooling:
- Central Air
- Flooring:
- Carpet FlooringTile Flooring
- Garage/Parking:
- GarageAttached Garage
- Interior Features:
- Walk-In ClosetPantryLoft
- Kitchen:
- DishwasherMicrowave OvenRefrigeratorDisposalGas CooktopKitchen IslandGas OvenKitchen Range
- Lighting:
- Security Lights
- Property amenities:
- Patio
- Rooms:
- Guest RoomDining Room
- Security system:
- Security SystemSmoke DetectorCarbon Monoxide Detector

Get a consultation with our New Homes Expert
- See how your home builds wealth
- Plan your home-buying roadmap
- Discover hidden gems
Utility information
- Heating:
- Central Heating
- Sewer:
- Public Sewer
- Utilities:
- Electricity Available, Natural Gas Available, Sewer Available, Water Available
- Water source:
- Public

Community details
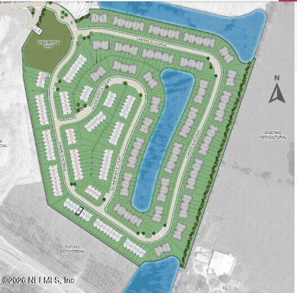
Cherry Elm at SilverLeaf at SilverLeaf
by Taylor Morrison, St. Augustine, FL
- 13 homes
- 3 plans
- 1,899 - 1,927 sqft
View Cherry Elm at SilverLeaf details
Community amenities
- Gated Community
More homes in Cherry Elm at SilverLeaf
- Home at address 288 Cherry Elm Dr, St. Augustine, FL 32092

Birch
Savings$354,990
- 3 bd
- 3 ba
- 1,927 sqft
288 Cherry Elm Dr, St. Augustine, FL 32092
- Home at address 342 Cherry Elm Dr, St. Augustine, FL 32092

Bellflower
Savings$359,990
- 3 bd
- 3 ba
- 1,927 sqft
342 Cherry Elm Dr, St. Augustine, FL 32092
- Home at address 384 Cherry Elm Dr, St. Augustine, FL 32092

Bellflower
Savings$359,990
- 3 bd
- 3 ba
- 1,927 sqft
384 Cherry Elm Dr, St. Augustine, FL 32092
- Home at address 390 Cherry Elm Dr, St. Augustine, FL 32092

Bellflower
Savings$359,990
- 3 bd
- 3 ba
- 1,927 sqft
390 Cherry Elm Dr, St. Augustine, FL 32092
- Home at address 346 Cherry Elm Dr, St. Augustine, FL 32092

Bellflower
Savings$359,990
- 3 bd
- 3 ba
- 1,927 sqft
346 Cherry Elm Dr, St. Augustine, FL 32092
- Home at address 358 Cherry Elm Dr, St. Augustine, FL 32092

Bellflower
Savings$359,990
- 3 bd
- 3 ba
- 1,927 sqft
358 Cherry Elm Dr, St. Augustine, FL 32092
Floor plans in Cherry Elm at SilverLeaf
About the builder - Taylor Morrison

- 315communities on Jome
- 1,327homes on Jome
Neighborhood
Home address
- City:
- St. Augustine
- County:
- St. Johns
- Zip Code:
- 32092
Schools in St. Johns County School District
GreatSchools’ Summary Rating calculation is based on 4 of the school’s themed ratings, including test scores, student/academic progress, college readiness, and equity. This information should only be used as a reference. Jome is not affiliated with GreatSchools and does not endorse or guarantee this information. Please reach out to schools directly to verify all information and enrollment eligibility. Data provided by GreatSchools.org © 2025
Places of interest
Getting around
Noise level
A Soundscore™ rating is a number between 50 (very loud) and 100 (very quiet) that tells you how loud a location is due to environmental noise.

Considering this home?
Our expert will guide your tour, in-person or virtual
Need more information?
Text or call (888) 545-5198
Financials
Estimated monthly payment
Let us help you find your dream home
How many bedrooms are you looking for?
Similar homes nearby
Recently added communities in this area
Nearby communities in St. Augustine
New homes in nearby cities
More New Homes in St. Augustine, FL
TAYLOR MORRISON REALTY OF FLA, MLS 2126050
IDX information is provided exclusively for personal, non-commercial use, and may not be used for any purpose other than to identify prospective properties consumers may be interested in purchasing. Data is deemed reliable but is not guaranteed accurate by NEFMLS. © 2025 Northeast Florida Multiple Listing Service, Inc. All rights reserved.
Read moreLast checked Apr 21, 5:00 pm
- Jome
- New homes search
- Florida
- Jacksonville Metropolitan Area
- St. Johns County
- St. Augustine
- Cherry Elm at SilverLeaf
- 354 Cherry Elm Dr, St. Augustine, FL 32092































