














Book your tour. Save an average of $18,473. We'll handle the rest.
- Confirmed tours
- Get matched & compare top deals
- Expert help, no pressure
- No added fees
Estimated value based on Jome data, T&C apply
























- 2 bd
- 1.5 ba
- 962 sqft
27508 Hollywood Dr, Punta Gorda, FL 33955
Why tour with Jome?
- No pressure toursTour at your own pace with no sales pressure
- Expert guidanceGet insights from our home buying experts
- Exclusive accessSee homes and deals not available elsewhere
Jome is featured in
- Single-Family
- $254.68/sqft
- South facing
- 0.15-acre lot
Home description
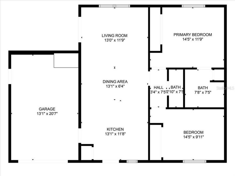
Skip the stress of building and move right into this brand-new 2-bedroom, 1-and-a-half-bathroom home with an attached garage, nestled in the peaceful rural community of Tropical Gulf Acres. Featuring an open-concept layout with a spacious great room, this home offers versatile living and entertaining space. Interior highlights include elegant wood-look luxury vinyl flooring throughout, tray ceilings in both the great room and primary bedroom, stylish light and ceiling fan fixtures, and recessed lighting for a modern touch. The kitchen is a standout with granite countertops, an abundance of shaker style cabinets, stainless steel appliances, a pantry, built-in buffet, and a breakfast bar that flows seamlessly into the great room—perfect for entertaining guests. The primary suite includes a built-in closet and a private full bath with a granite-topped vanity and linen storage. The guest bedroom also features a built-in closet. Additionally, a half bath in the hall adds to the practicality of the home. The property is further complemented by a single-car garage with ample space and a designated laundry area, providing the perfect combination of functionality and convenience. Hurricane impact windows throughout, provide enhanced storm protection, energy efficiency, and peace of mind year-round. Whether you're enjoying a quiet evening on the patio or entertaining friends in the open and inviting living space, this home is a haven of comfort and style. With its modern amenities, quality finishes, and the charm of being a single-owner property, this residence is ready to welcome its next chapter of memories. Located in a quiet, family-oriented neighborhood with no HOA or CDD. Minutes from historic downtown Punta Gorda, Fisherman's Village Restaurants, shopping, waterfront parks, events, and more. Close to I-75 and US-41. Near two airports: Punta Gorda and Southwest Florida International. Tropical Gulf Acres has a country-like feel, yet in a reasonable commute to Port Charlotte, Fort Myers, or Cape Coral.
MARINA PARK REALTY LLC, MLS C7514622
Information last verified by Jome: Yesterday at 10:04 AM (January 8, 2026)
Book your tour. Save an average of $18,473. We'll handle the rest.
We collect exclusive builder offers, book your tours, and support you from start to housewarming.
- Confirmed tours
- Get matched & compare top deals
- Expert help, no pressure
- No added fees
Estimated value based on Jome data, T&C apply
Home details
- Property status:
- Pending/Under contract
- Lot size (acres):
- 0.15
- Size:
- 962 sqft
- Stories:
- 1
- Beds:
- 2
- Baths:
- 1
- Half baths:
- 1
- Garage spaces:
- 1
- Facing direction:
- South
Construction details
- Year Built:
- 2025
- Roof:
- Shingle Roofing
Home features & finishes
- Appliances:
- Ice Maker
- Construction Materials:
- StuccoBlock
- Cooling:
- Ceiling Fan(s)Central Air
- Flooring:
- Vinyl Flooring
- Foundation Details:
- Slab
- Garage/Parking:
- Door OpenerGarageAttached Garage
- Interior Features:
- Ceiling-HighSliding DoorsTray Ceiling
- Kitchen:
- DishwasherMicrowave OvenRefrigeratorKitchen Range
- Lighting:
- Exterior Lighting
- Pets:
- Pets Allowed
- Rooms:
- Primary Bedroom On MainDining RoomLiving RoomOpen Concept FloorplanPrimary Bedroom Downstairs
Utility information
- Heating:
- Electric Heating, Water Heater, Central Heating
- Utilities:
- Electricity Available
Community amenities
- Woods View
Neighborhood
Home address
- City:
- Punta Gorda
- County:
- Charlotte
- Zip Code:
- 33955
Schools in Charlotte County School District
- Grades PK-PKPublicbaker/head start7.7 mi311 e charlotte avena
GreatSchools’ Summary Rating calculation is based on 4 of the school’s themed ratings, including test scores, student/academic progress, college readiness, and equity. This information should only be used as a reference. Jome is not affiliated with GreatSchools and does not endorse or guarantee this information. Please reach out to schools directly to verify all information and enrollment eligibility. Data provided by GreatSchools.org © 2025
Places of interest
Getting around
Air quality
Natural hazards risk
Provided by FEMA

Considering this home?
Our expert will guide your tour, in-person or virtual
Need more information?
Text or call (888) 486-2818
Financials
Estimated monthly payment
Similar homes nearby
Recently added communities in this area
Nearby communities in Punta Gorda
New homes in nearby cities
More New Homes in Punta Gorda, FL
MARINA PARK REALTY LLC, MLS C7514622
Based on information submitted to the MLS GRID as of 10/21/2024 2:31 PM CDT. All data is obtained from various sources and may not have been verified by broker or MLS GRID. Supplied Open House Information is subject to change without notice. All information should be independently reviewed and verified for accuracy. Properties may or may not be listed by the office/agent presenting the information. Some IDX listings have been excluded from this website. Properties displayed may be listed or sold by various participants in the MLS. IDX information is provided exclusively for personal, non-commercial use, and may not be used for any purpose other than to identify prospective properties consumers may be interested in purchasing. Information is deemed reliable but not guaranteed. Use of the MLS GRID Data may be subject to an end user license agreement prescribed by the Member Participant’s applicable MLS if any and as amended from time to time. The Digital Millennium Copyright Act of 1998, 17 U.S.C. § 512 (the “DMCA”) provides recourse for copyright owners who believe that material appearing on the Internet infringes their rights under U.S. copyright law. If you believe in good faith that any content or material made available in connection with our website or services infringes your copyright, you (or your agent) may send us a notice requesting that the content or material be removed, or access to it blocked. Notices must be sent in writing by email to DMCAnotice@MLSGrid.com. The DMCA requires that your notice of alleged copyright infringement include the following information: (1) description of the copyrighted work that is the subject of claimed infringement; (2) description of the alleged infringing content and information sufficient to permit us to locate the content; (3) contact information for you, including your address, telephone number and email address; (4) a statement by you that you have a good faith belief that the content in the manner complained of is not authorized by the copyright owner, or its agent, or by the operation of any law; (5) a statement by you, signed under penalty of perjury, that the information in the notification is accurate and that you have the authority to enforce the copyrights that are claimed to be infringed; and (6) a physical or electronic signature of the copyright owner or a person authorized to act on the copyright owner’s behalf. Failure to include all of the above information may result in the delay of the processing of your complaint. Listing Information presented by local MLS brokerage: NewHomesMate LLC, DBA Jome (888) 486-2818
Read moreLast checked Jan 8, 9:10 pm
- Jome
- New homes search
- Florida
- Charlotte County
- Punta Gorda
- 27508 Hollywood Dr, Punta Gorda, FL 33955



























