








Book your tour. Save an average of $18,473. We'll handle the rest.
We collect exclusive builder offers, book your tours, and support you from start to housewarming.
- Confirmed tours
- Get matched & compare top deals
- Expert help, no pressure
- No added fees
Estimated value based on Jome data, T&C apply





Why tour with Jome?
- No pressure toursTour at your own pace with no sales pressure
- Expert guidanceGet insights from our home buying experts
- Exclusive accessSee homes and deals not available elsewhere
Jome is featured in
- Single-Family
- Under construction
- $214.5/sqft
- $274.02/monthly HOA
Home description
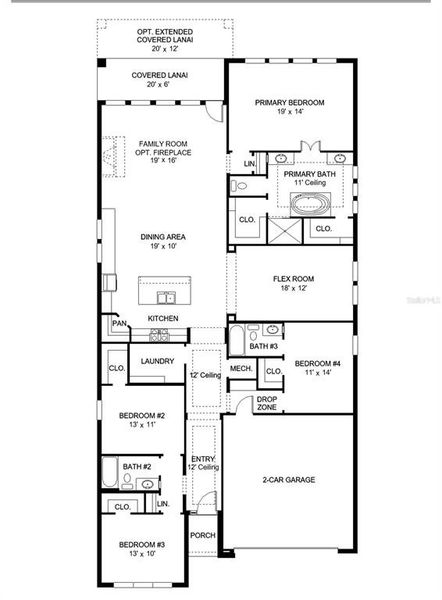
The front porch opens into a welcoming entryway with an extended tray ceiling that embraces the main hallway. Two secondary bedrooms with walk-in closets and full bathroom are off the main hall. A full guest suite with a private bathroom and ample closet space is adjacent. You pass the laundry room as you enter into the kitchen which features an island with built-in seating and corner pantry. A bonus flex room is across from the kitchen. The dining area flows from the kitchen to the connecting family room which offers abundance of natural light from its wall of windows and access to the backyard covered lanai. The primary bedroom has a wall of windows overlooking the backyard. Double doors lead into the bathroom which hosts dual vanities, a freestanding tub, glass enclosed shower and two walk-in closets. The drop zone is off the two-car garage.
PERRY HOMES, MLS TB8425297
May also be listed on the Perry Homes website
Information last verified by Jome: Today at 10:04 AM (May 28, 2026)
Home highlights
Book your tour. Save an average of $18,473. We'll handle the rest.
We collect exclusive builder offers, book your tours, and support you from start to housewarming.
- Confirmed tours
- Get matched & compare top deals
- Expert help, no pressure
- No added fees
Estimated value based on Jome data, T&C apply
Home details
- Property status:
- Under construction
- Collection:
- Turnleaf 50'
- Lot size (acres):
- 0.15
- Lot width (feet):
- 50
- Size:
- 2,517 sqft
- Stories:
- 1
- Beds:
- 4
- Baths:
- 3
- Garage spaces:
- 2
- Facing direction:
- North
Construction details
- Builder Name:
- Perry Homes
- Completion Date:
- October, 2025
- Year Built:
- 2025
- Roof:
- Shingle Roofing
Home features & finishes
- Construction Materials:
- Stucco
- Cooling:
- Ceiling Fan(s)Central Air
- Flooring:
- Carpet FlooringTile Flooring
- Foundation Details:
- Slab
- Garage/Parking:
- GarageAttached Garage
- Interior Features:
- Ceiling-HighWalk-In ClosetTray Ceiling
- Kitchen:
- DishwasherMicrowave OvenOvenDisposalConvection OvenCooktop
- Laundry facilities:
- DryerUtility/Laundry Room
- Pets:
- Pets Allowed
- Property amenities:
- LandscapingPatioSmart Home SystemPorch
- Rooms:
- Primary Bedroom On MainFamily RoomOpen Concept FloorplanPrimary Bedroom Downstairs

Get a consultation with our New Homes Expert
- See how your home builds wealth
- Plan your home-buying roadmap
- Discover hidden gems
Utility information
- Heating:
- Thermostat, Central Heating
- Sewer:
- Public Sewer
- Utilities:
- Electricity Available, Water Available
- Water source:
- Public

Community details
Turnleaf
by Perry Homes, Punta Gorda, FL
- 16 homes
- 23 plans
- 2,011 - 3,638 sqft
View Turnleaf details
More homes in Turnleaf
- Home at address 13074 Camelot Ln, Punta Gorda, FL 33955

2555F
Turnleaf 50'
$554,900
- 4 bd
- 3 ba
- 2,555 sqft
13074 Camelot Ln, Punta Gorda, FL 33955
- Home at address 13040 Moonrise Ln, Punta Gorda, FL 33955

2713F
Turnleaf 50'
$594,900
- 4 bd
- 3 ba
- 2,713 sqft
13040 Moonrise Ln, Punta Gorda, FL 33955
- Home at address 13068 Camelot Ln, Punta Gorda, FL 33955

2517F
Turnleaf 50'
$599,900
- 4 bd
- 3 ba
- 2,517 sqft
13068 Camelot Ln, Punta Gorda, FL 33955
- Home at address 13032 Camelot Ln, Punta Gorda, FL 33955

2555F
Turnleaf 50'
$633,900
- 4 bd
- 3 ba
- 2,555 sqft
13032 Camelot Ln, Punta Gorda, FL 33955
- Home at address 13027 Camelot Ln, Punta Gorda, FL 33955

Home
$640,900
- 4 bd
- 3 ba
- 2,683 sqft
13027 Camelot Ln, Punta Gorda, FL 33955
- Home at address 13104 Camelot Ln, Punta Gorda, FL 33955

2683F
Turnleaf 60'
$647,900
- 4 bd
- 3 ba
- 2,683 sqft
13104 Camelot Ln, Punta Gorda, FL 33955
Floor plans in Turnleaf
About the builder - Perry Homes

- 392communities on Jome
- 1,634homes on Jome
Neighborhood
Home address
- City:
- Punta Gorda
- County:
- Charlotte
- Zip Code:
- 33955
Schools in Charlotte County School District
- Grades PK-PKPublicbaker/head start6.7 mi311 e charlotte avena
GreatSchools’ Summary Rating calculation is based on 4 of the school’s themed ratings, including test scores, student/academic progress, college readiness, and equity. This information should only be used as a reference. Jome is not affiliated with GreatSchools and does not endorse or guarantee this information. Please reach out to schools directly to verify all information and enrollment eligibility. Data provided by GreatSchools.org © 2025
Places of interest
Getting around
Air quality
Noise level
A Soundscore™ rating is a number between 50 (very loud) and 100 (very quiet) that tells you how loud a location is due to environmental noise.

Considering this home?
Our expert will guide your tour, in-person or virtual
Need more information?
Text or call (888) 545-5198
Financials
Estimated monthly payment
Let us help you find your dream home
How many bedrooms are you looking for?
Similar homes nearby
Recently added communities in this area
Nearby communities in Punta Gorda
New homes in nearby cities
More New Homes in Punta Gorda, FL
PERRY HOMES, MLS TB8425297
Based on information submitted to the MLS GRID as of 10/21/2024 2:31 PM CDT. All data is obtained from various sources and may not have been verified by broker or MLS GRID. Supplied Open House Information is subject to change without notice. All information should be independently reviewed and verified for accuracy. Properties may or may not be listed by the office/agent presenting the information. Some IDX listings have been excluded from this website. Properties displayed may be listed or sold by various participants in the MLS. IDX information is provided exclusively for personal, non-commercial use, and may not be used for any purpose other than to identify prospective properties consumers may be interested in purchasing. Information is deemed reliable but not guaranteed. Use of the MLS GRID Data may be subject to an end user license agreement prescribed by the Member Participant’s applicable MLS if any and as amended from time to time. The Digital Millennium Copyright Act of 1998, 17 U.S.C. § 512 (the “DMCA”) provides recourse for copyright owners who believe that material appearing on the Internet infringes their rights under U.S. copyright law. If you believe in good faith that any content or material made available in connection with our website or services infringes your copyright, you (or your agent) may send us a notice requesting that the content or material be removed, or access to it blocked. Notices must be sent in writing by email to DMCAnotice@MLSGrid.com. The DMCA requires that your notice of alleged copyright infringement include the following information: (1) description of the copyrighted work that is the subject of claimed infringement; (2) description of the alleged infringing content and information sufficient to permit us to locate the content; (3) contact information for you, including your address, telephone number and email address; (4) a statement by you that you have a good faith belief that the content in the manner complained of is not authorized by the copyright owner, or its agent, or by the operation of any law; (5) a statement by you, signed under penalty of perjury, that the information in the notification is accurate and that you have the authority to enforce the copyrights that are claimed to be infringed; and (6) a physical or electronic signature of the copyright owner or a person authorized to act on the copyright owner’s behalf. Failure to include all of the above information may result in the delay of the processing of your complaint. Listing Information presented by local MLS brokerage: NewHomesMate LLC, DBA Jome (888) 545-5198
Read moreLast checked May 28, 9:10 am
- Jome
- New homes search
- Florida
- Charlotte County
- Punta Gorda
- Turnleaf
- Turnleaf 50'
- 13182 Camelot Ln, Punta Gorda, FL 33955

































