



Book your tour. Save an average of $18,473. We'll handle the rest.
- Confirmed tours
- Get matched & compare top deals
- Expert help, no pressure
- No added fees
Estimated value based on Jome data, T&C apply
- 4 bd
- 3.5 ba
- 2,957 sqft
13098 Camelot Ln, Punta Gorda, FL 33955
Why tour with Jome?
- No pressure toursTour at your own pace with no sales pressure
- Expert guidanceGet insights from our home buying experts
- Exclusive accessSee homes and deals not available elsewhere
Jome is featured in
- Single-Family
- $235/sqft
- $284.02/monthly HOA
- Northwest facing
Home description
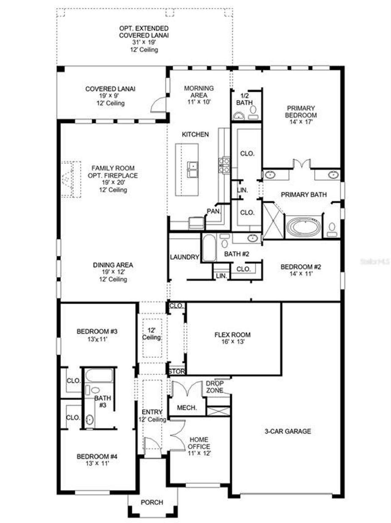
The front porch opens into the extended entryway lined with a 12-foot tray ceiling. French doors open into the home office that overlooks the front yard. Two secondary bedrooms are off the main hallway and feature walk-in closets and a shared bathroom. You pass a bonus flex room with storage space before entering the heart of the home. The dining area with three large windows connects to the open concept family room boasting ample natural light from the sliding glass door. The kitchen hosts an island with built-in seating and corner walk-in pantry. The morning area is lit up by the corner wall of windows and allows access to the backyard covered lanai. A half-bathroom is off the kitchen. The primary bedroom boasts a wall of windows. Double doors lead into the primary bathroom which hosts dual vanities, a freestanding tub, glass enclosed shower, and two walk-in closets. A private guest suite with full bathroom is located off a shared hallway with the laundry room. The drop zone is just off the three-car garage.
PERRY HOMES, MLS TB8431610
May also be listed on the Perry Homes website
Information last verified by Jome: Today at 9:12 PM (January 15, 2026)
Home highlights
Book your tour. Save an average of $18,473. We'll handle the rest.
We collect exclusive builder offers, book your tours, and support you from start to housewarming.
- Confirmed tours
- Get matched & compare top deals
- Expert help, no pressure
- No added fees
Estimated value based on Jome data, T&C apply
Home details
- Property status:
- Pending/Under contract
- Lot size (acres):
- 0.20
- Lot width (feet):
- 60
- Size:
- 2,957 sqft
- Stories:
- 1
- Beds:
- 4
- Baths:
- 3
- Half baths:
- 1
- Garage spaces:
- 3
- Facing direction:
- Northwest
Construction details
- Builder Name:
- Perry Homes
- Completion Date:
- November, 2025
- Year Built:
- 2025
- Roof:
- Shingle Roofing
Home features & finishes
- Construction Materials:
- StuccoConcrete
- Cooling:
- Central Air
- Flooring:
- Laminate FlooringTile Flooring
- Foundation Details:
- Slab
- Garage/Parking:
- GarageAttached Garage
- Interior Features:
- Walk-In ClosetTray Ceiling
- Kitchen:
- DishwasherMicrowave OvenOvenConvection OvenCook Top
- Laundry facilities:
- DryerWasherUtility/Laundry Room
- Pets:
- Pets Allowed
- Property amenities:
- LandscapingCabinetsPatioPorch
- Rooms:
- Primary Bedroom On MainPrimary Bedroom Downstairs

Get a consultation with our New Homes Expert
- See how your home builds wealth
- Plan your home-buying roadmap
- Discover hidden gems
Utility information
- Heating:
- Water Heater, Central Heating
- Utilities:
- Electricity Available, Cable Available, Water Available

Community details
Turnleaf 60'
by Perry Homes, Punta Gorda, FL
- 4 homes
- 16 plans
- 2,546 - 3,638 sqft
View Turnleaf 60' details
Community amenities
- Woods View
- Fitness Center/Exercise Area
- Club House
- Tennis Courts
More homes in Turnleaf 60'
- Home at address 13110 Camelot Ln, Punta Gorda, FL 33955

2749F
$594,900
- 4 bd
- 3 ba
- 2,749 sqft
13110 Camelot Ln, Punta Gorda, FL 33955
- Home at address 13104 Camelot Ln, Punta Gorda, FL 33955

2683F
$649,900
- 4 bd
- 3 ba
- 2,683 sqft
13104 Camelot Ln, Punta Gorda, FL 33955
- Home at address 13059 Camelot Ln, Punta Gorda, FL 33955

2929F
$689,900
- 4 bd
- 3 ba
- 2,968 sqft
13059 Camelot Ln, Punta Gorda, FL 33955
- Home at address 13092 Camelot Ln, Punta Gorda, FL 33955

2968F
$694,900
- 4 bd
- 3 ba
- 2,968 sqft
13092 Camelot Ln, Punta Gorda, FL 33955
Floor plans in Turnleaf 60'
About the builder - Perry Homes

- 248communities on Jome
- 1,313homes on Jome
Neighborhood
Home address
- City:
- Punta Gorda
- County:
- Charlotte
- Zip Code:
- 33955
Schools in Charlotte County School District
- Grades PK-PKPublicbaker/head start6.7 mi311 e charlotte avena
GreatSchools’ Summary Rating calculation is based on 4 of the school’s themed ratings, including test scores, student/academic progress, college readiness, and equity. This information should only be used as a reference. Jome is not affiliated with GreatSchools and does not endorse or guarantee this information. Please reach out to schools directly to verify all information and enrollment eligibility. Data provided by GreatSchools.org © 2025
Places of interest
Getting around
Air quality

Considering this home?
Our expert will guide your tour, in-person or virtual
Need more information?
Text or call (888) 486-2818
Financials
Estimated monthly payment
Let us help you find your dream home
How many bedrooms are you looking for?
Similar homes nearby
Recently added communities in this area
Nearby communities in Punta Gorda
New homes in nearby cities
More New Homes in Punta Gorda, FL
PERRY HOMES, MLS TB8431610
Based on information submitted to the MLS GRID as of 10/21/2024 2:31 PM CDT. All data is obtained from various sources and may not have been verified by broker or MLS GRID. Supplied Open House Information is subject to change without notice. All information should be independently reviewed and verified for accuracy. Properties may or may not be listed by the office/agent presenting the information. Some IDX listings have been excluded from this website. Properties displayed may be listed or sold by various participants in the MLS. IDX information is provided exclusively for personal, non-commercial use, and may not be used for any purpose other than to identify prospective properties consumers may be interested in purchasing. Information is deemed reliable but not guaranteed. Use of the MLS GRID Data may be subject to an end user license agreement prescribed by the Member Participant’s applicable MLS if any and as amended from time to time. The Digital Millennium Copyright Act of 1998, 17 U.S.C. § 512 (the “DMCA”) provides recourse for copyright owners who believe that material appearing on the Internet infringes their rights under U.S. copyright law. If you believe in good faith that any content or material made available in connection with our website or services infringes your copyright, you (or your agent) may send us a notice requesting that the content or material be removed, or access to it blocked. Notices must be sent in writing by email to DMCAnotice@MLSGrid.com. The DMCA requires that your notice of alleged copyright infringement include the following information: (1) description of the copyrighted work that is the subject of claimed infringement; (2) description of the alleged infringing content and information sufficient to permit us to locate the content; (3) contact information for you, including your address, telephone number and email address; (4) a statement by you that you have a good faith belief that the content in the manner complained of is not authorized by the copyright owner, or its agent, or by the operation of any law; (5) a statement by you, signed under penalty of perjury, that the information in the notification is accurate and that you have the authority to enforce the copyrights that are claimed to be infringed; and (6) a physical or electronic signature of the copyright owner or a person authorized to act on the copyright owner’s behalf. Failure to include all of the above information may result in the delay of the processing of your complaint. Listing Information presented by local MLS brokerage: NewHomesMate LLC, DBA Jome (888) 486-2818
Read moreLast checked Jan 15, 9:10 pm
- Jome
- New homes search
- Florida
- Charlotte County
- Punta Gorda
- Turnleaf 60'
- 13098 Camelot Ln, Punta Gorda, FL 33955



































