








































- 3 bd
- 2.5 ba
- 1,459 sqft
14 Rudder Ln, Freeport, FL 32439
- Single-Family
- $161/sqft
- 93 days on Jome
New Homes for Sale Near 14 Rudder Ln, Freeport, FL 32439
About this Home
About this home
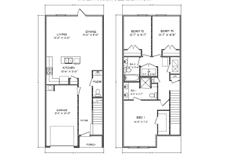
Welcome to 14 Rudder Lane at Genoa Landing Townhomes in Freeport Florida. This is an interior unit that is located in a four unit building that is under construction. As you enter this townhome you will find a hall with EVP flooring that leads to an open-concept kitchen, living, and dining area, designed for entertaining and everyday living. From the dining area you will have access to the back patio and there is window that will illuminate the living area with natural light. The kitchen serves as the culinary center with its spacious center island and cabinetry for storage as well as a pantry. The kitchen has been appointed with stainless appliances including a stove, microwave and dishwasher and granite countertops
From the heart of the home on the main level, continue to the second level where you will find carpet on the stairs, upstairs hall and each bedroom. The primary bedroom has a generous size closet and a private bath with shower, dual sink vanity, and ample linen storage space. The additional bedrooms share a hall bath with shower tub combo, creating a comfortable space for family or guests. You will also have a laundry area on the second level with space for a full-size washer and dryer. Each townhome comes with the Smart Home Technology Package, featuring a Qolsys IQ touch panel for thermostat and lighting control, ensuring security and convenience with a keyless KwikSet deadbolt.
May also be listed on the D.R. Horton website
Information last verified by Jome: Wednesday at 2:56 AM (December 17, 2025)
Home details
- Property status:
- Sold
- Size:
- 1,459 sqft
- Stories:
- 2
- Beds:
- 3
- Baths:
- 2.5
- Garage spaces:
- 1
Construction details
- Builder Name:
- D.R. Horton
Home features & finishes
- Garage/Parking:
- Garage

Community details
Genoa Landing Townhomes
by D.R. Horton, Freeport, FL
- 2 homes
- 2 plans
- 1,459 - 1,470 sqft
View Genoa Landing Townhomes details
More homes in Genoa Landing Townhomes
Floor plans in Genoa Landing Townhomes
About the builder - D.R. Horton
Neighborhood
Home address
Schools in Walton County School District
- Grades 07-12Privatewestonwood ranch3.9 mi4390 state highway 20 wna
GreatSchools’ Summary Rating calculation is based on 4 of the school’s themed ratings, including test scores, student/academic progress, college readiness, and equity. This information should only be used as a reference. Jome is not affiliated with GreatSchools and does not endorse or guarantee this information. Please reach out to schools directly to verify all information and enrollment eligibility. Data provided by GreatSchools.org © 2025
Places of interest
Getting around
Natural hazards risk
Climate hazards can impact homes and communities, with risks varying by location. These scores reflect the potential impact of natural disasters and climate-related risks on Walton County
Provided by FEMA
Financials
Nearby communities in Freeport
Homes in Freeport by D.R. Horton
Recently added communities in this area
Other Builders in Freeport, FL
Nearby sold homes
New homes in nearby cities
More New Homes in Freeport, FL
- Jome
- New homes search
- Florida
- Walton County
- Freeport
- Genoa Landing Townhomes
- 14 Rudder Ln, Freeport, FL 32439

































































