













Book your tour. Save an average of $18,473. We'll handle the rest.
- Confirmed tours
- Get matched & compare top deals
- Expert help, no pressure
- No added fees
Estimated value based on Jome data, T&C apply
































- 3 bd
- 2.5 ba
- 1,308 sqft
45 Montellano Rd, Unit 123, St. Augustine, FL 32084
Why tour with Jome?
- No pressure toursTour at your own pace with no sales pressure
- Expert guidanceGet insights from our home buying experts
- Exclusive accessSee homes and deals not available elsewhere
Jome is featured in
- Townhouse
- Under construction
- $212.53/sqft
- $295.5/quarterly HOA
Home description
Convenience awaits you Cordera, a new home community in the historic city of St. Augustine, Florida, where D.R. Horton proudly offers our Tradition Series townhomes. Nestled in this culturally rich area, Cordera brings together the charm of St. Augustine with the convenience of modern living. Our thoughtfully designed townhomes feature open-concept layouts built with energy-efficient features, making it not only a beautiful place to live but also a smart investment for your future.
One of the most desirable aspects of Cordera is our commitment to hassle-free living. Included lawn maintenance means you can spend less time worrying about upkeep and more time enjoying all that St. Augustine has to offer. Plus, with our Home Is Connected® technology suite, your new home is equipped with cutting-edge smart home products that keep you connected to what matters most, whether you’re at home or on the go.
Situated just minutes from historic downtown St. Augustine, residents can immerse themselves in the rich history, charming shops, and beautiful beaches that make this city so unique. For those who commute or like to explore, easy access to the interstate puts Jacksonville and other nearby destinations within quick reach.
Families in Cordera will also appreciate the top-rated schools in St. Johns County, known for their excellent educational programs. This makes Cordera not just a place to live, but a community where you can grow and thrive. Whether you’re a first-time homebuyer or looking to upgrade, Cordera offers the perfect blend of tradition and innovation in a location that’s hard to beat. Welcome home!
DR HORTON REALTY INC., MLS FC312057
May also be listed on the D.R. Horton website
Information last verified by Jome: Yesterday at 9:59 AM (December 5, 2025)
Home highlights
Iconic golf course in Ponte Vedra Beach, home to The Players Championship and renowned island green on hole 17.
Book your tour. Save an average of $18,473. We'll handle the rest.
We collect exclusive builder offers, book your tours, and support you from start to housewarming.
- Confirmed tours
- Get matched & compare top deals
- Expert help, no pressure
- No added fees
Estimated value based on Jome data, T&C apply
Home details
- Property status:
- Under construction
- Lot size (acres):
- 0.04
- Size:
- 1,308 sqft
- Stories:
- 2
- Beds:
- 3
- Baths:
- 2
- Half baths:
- 1
- Facing direction:
- North
Construction details
- Builder Name:
- D.R. Horton
- Completion Date:
- December, 2025
- Year Built:
- 2025
- Roof:
- Shingle Roofing
Home features & finishes
- Construction Materials:
- Wood Frame
- Cooling:
- Central Air
- Flooring:
- Carpet FlooringTile Flooring
- Foundation Details:
- Slab
- Interior Features:
- Walk-In ClosetPantry
- Kitchen:
- DishwasherMicrowave OvenDisposalKitchen Range
- Laundry facilities:
- Laundry Facilities On Main LevelUtility/Laundry Room
- Pets:
- Pets Allowed
- Property amenities:
- Porch
- Rooms:
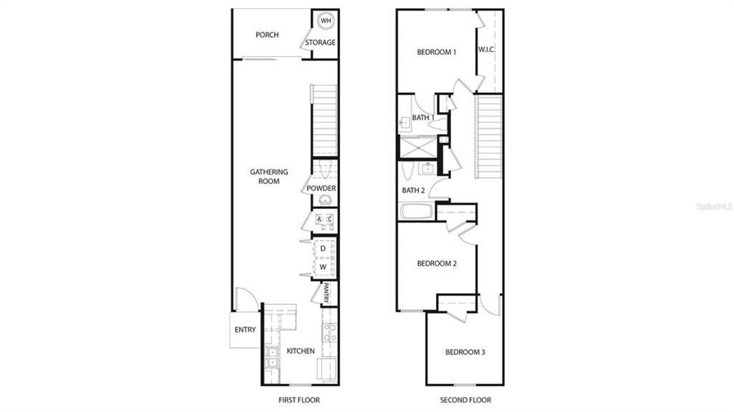
- KitchenPowder RoomFamily RoomOpen Concept FloorplanPrimary Bedroom Upstairs
Utility information
- Heating:
- Electric Heating, Thermostat

Community details
Cordera Townhomes
by D.R. Horton, St. Augustine, FL
- 4 homes
- 2 plans
- 1,109 - 1,308 sqft
View Cordera Townhomes details
More homes in Cordera Townhomes
Floor plans in Cordera Townhomes
About the builder - D.R. Horton
Neighborhood
Home address
- City:
- St. Augustine
- County:
- St. Johns
- Zip Code:
- 32084
Schools in St. Johns County School District
- Grades 09-12Privatest gerard campus inc3.3 mi1405 us highway 1 sna
GreatSchools’ Summary Rating calculation is based on 4 of the school’s themed ratings, including test scores, student/academic progress, college readiness, and equity. This information should only be used as a reference. Jome is not affiliated with GreatSchools and does not endorse or guarantee this information. Please reach out to schools directly to verify all information and enrollment eligibility. Data provided by GreatSchools.org © 2025
Places of interest
Getting around
Noise level
A Soundscore™ rating is a number between 50 (very loud) and 100 (very quiet) that tells you how loud a location is due to environmental noise.
Natural hazards risk
Climate hazards can impact homes and communities, with risks varying by location. These scores reflect the potential impact of natural disasters and climate-related risks on St. Johns County
Provided by FEMA

Considering this home?
Our expert will guide your tour, in-person or virtual
Need more information?
Text or call (888) 486-2818
Financials
Estimated monthly payment
Similar homes nearby
Recently added communities in this area
Nearby communities in St. Augustine
New homes in nearby cities
More New Homes in St. Augustine, FL
DR HORTON REALTY INC., MLS FC312057
Based on information submitted to the MLS GRID as of 10/21/2024 2:31 PM CDT. All data is obtained from various sources and may not have been verified by broker or MLS GRID. Supplied Open House Information is subject to change without notice. All information should be independently reviewed and verified for accuracy. Properties may or may not be listed by the office/agent presenting the information. Some IDX listings have been excluded from this website. Properties displayed may be listed or sold by various participants in the MLS. IDX information is provided exclusively for personal, non-commercial use, and may not be used for any purpose other than to identify prospective properties consumers may be interested in purchasing. Information is deemed reliable but not guaranteed. Use of the MLS GRID Data may be subject to an end user license agreement prescribed by the Member Participant’s applicable MLS if any and as amended from time to time. The Digital Millennium Copyright Act of 1998, 17 U.S.C. § 512 (the “DMCA”) provides recourse for copyright owners who believe that material appearing on the Internet infringes their rights under U.S. copyright law. If you believe in good faith that any content or material made available in connection with our website or services infringes your copyright, you (or your agent) may send us a notice requesting that the content or material be removed, or access to it blocked. Notices must be sent in writing by email to DMCAnotice@MLSGrid.com. The DMCA requires that your notice of alleged copyright infringement include the following information: (1) description of the copyrighted work that is the subject of claimed infringement; (2) description of the alleged infringing content and information sufficient to permit us to locate the content; (3) contact information for you, including your address, telephone number and email address; (4) a statement by you that you have a good faith belief that the content in the manner complained of is not authorized by the copyright owner, or its agent, or by the operation of any law; (5) a statement by you, signed under penalty of perjury, that the information in the notification is accurate and that you have the authority to enforce the copyrights that are claimed to be infringed; and (6) a physical or electronic signature of the copyright owner or a person authorized to act on the copyright owner’s behalf. Failure to include all of the above information may result in the delay of the processing of your complaint. Listing Information presented by local MLS brokerage: NewHomesMate LLC, DBA Jome (888) 486-2818
Read moreLast checked Dec 6, 3:10 am
- Home
- New homes
- Florida
- Jacksonville Metropolitan Area
- St. Johns County
- St. Augustine
- Cordera Townhomes
- 45 Montellano Rd, Unit 123, St. Augustine, FL 32084



























