

















































- 3 bd
- 3 ba
- 2,294 sqft
1679 Trainors Wy, Jacksonville, FL 32218
- Single-Family
- $155.18/sqft
- $1,332.5/annual HOA
- 0.15-acre lot
New Homes for Sale Near 1679 Trainors Wy, Jacksonville, FL 32218
About this Home
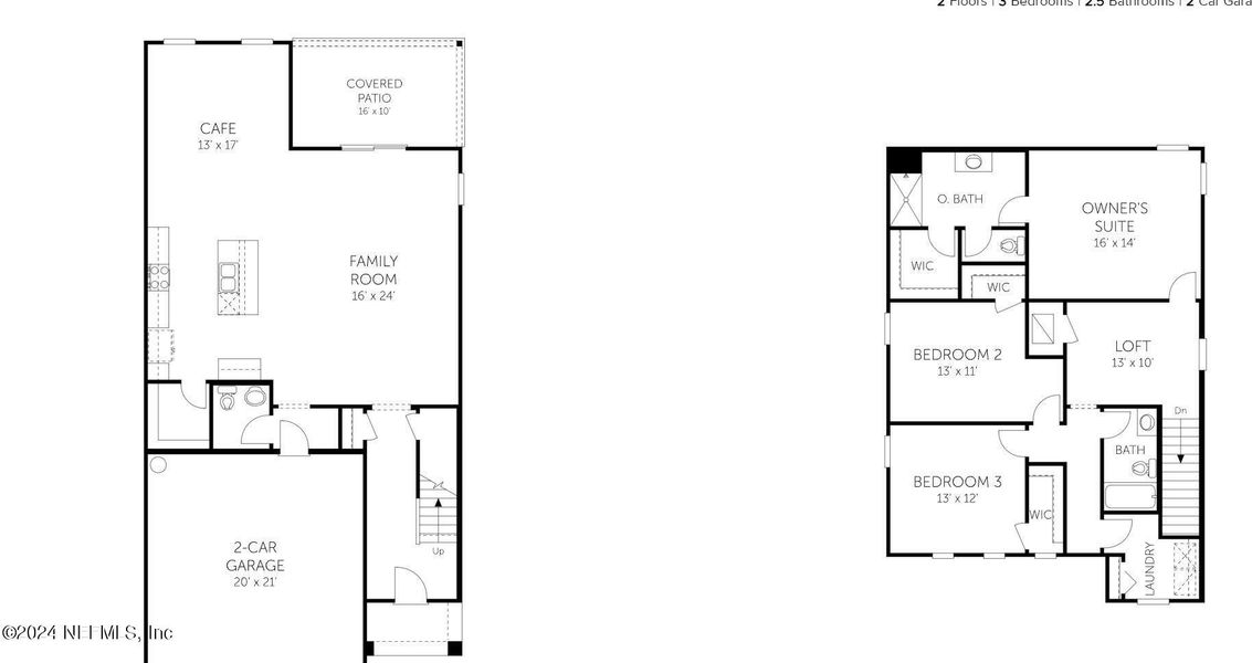
Thornton Plan 2294 sf; appliances: gas tankless water heater, quartz countertops, natural gas, all appliances(fridge, washer, dryer, gas range, microwave, dishwasher 9' ceilings first floor, and natural gas. Seamless access to Interstate 95, commuting becomes a breeze, ensuring you're always well-connected to the pulse of the city while enjoying the serene comforts of your new home in Cedar Creek. Join us in this thriving community, where convenience meets comfort, and discover the perfect place to craft the lifestyle you've always envisioned.
OLYMPUS EXECUTIVE REALTY, INC, MLS 2131919
May also be listed on the Dream Finders Homes website
Information last verified by Jome: Today at 1:29 AM (April 1, 2026)
Home details
- Property status:
- Sold
- Neighborhood:
- Jacksonville North Estate
- Lot size (acres):
- 0.15
- Lot width (feet):
- 40
- Size:
- 2,294 sqft
- Stories:
- 2
- Beds:
- 3
- Baths:
- 3
- Half baths:
- 1
- Garage spaces:
- 2
Construction details
- Builder Name:
- Dream Finders Homes
- Year Built:
- 2026
Home features & finishes
- Flooring:
- Carpet FlooringTile Flooring
- Garage/Parking:
- GarageAttached Garage
- Interior Features:
- Walk-In Closet
- Kitchen:
- DishwasherDisposal
- Rooms:
- Open Concept Floorplan
Room details
Master Bedroom
Kitchen
Dining Room
Utility information
- Heating:
- Heat Pump, Central Heating
- Utilities:
- Electricity Available, Cable Available, Sewer Available, Water Available

Community details
Cedar Creek
by Dream Finders Homes, Jacksonville, FL
- 8 homes
- 8 plans
- 1,622 - 2,500 sqft
View Cedar Creek details
More homes in Cedar Creek
- Home at address 1607 Trainors Wy, Jacksonville, FL 32218

$326,490
Under construction- 3 bd
- 2 ba
- 1,622 sqft
1607 Trainors Wy, Jacksonville, FL 32218
- Home at address 1728 Trainors Wy, Jacksonville, FL 32218

$340,990
Move-in ready- 4 bd
- 2 ba
- 1,797 sqft
1728 Trainors Wy, Jacksonville, FL 32218
- Home at address 14322 Epply Dr, Jacksonville, FL 32218

$340,990
Under construction- 3 bd
- 3 ba
- 1,864 sqft
14322 Epply Dr, Jacksonville, FL 32218
- Home at address 1686 Trainors Wy, Jacksonville, FL 32218

$359,990
Under construction- 3 bd
- 3 ba
- 2,294 sqft
1686 Trainors Wy, Jacksonville, FL 32218
- Home at address 14155 Epply Dr, Jacksonville, FL 32218

$383,990
Under construction- 3 bd
- 3 ba
- 2,294 sqft
14155 Epply Dr, Jacksonville, FL 32218
- Home at address 1974 Trainors Wy, Jacksonville, FL 32218

$391,320
Move-in ready- 3 bd
- 2.5 ba
- 2,038 sqft
1974 Trainors Wy, Jacksonville, FL 32218
Floor plans in Cedar Creek
About the builder - Dream Finders Homes

- 332communities on Jome
- 1,669homes on Jome
Neighborhood
Home address
- Neighborhood:
- Jacksonville North Estate
- City:
- Jacksonville
Schools in Duval County School District
GreatSchools’ Summary Rating calculation is based on 4 of the school’s themed ratings, including test scores, student/academic progress, college readiness, and equity. This information should only be used as a reference. Jome is not affiliated with GreatSchools and does not endorse or guarantee this information. Please reach out to schools directly to verify all information and enrollment eligibility. Data provided by GreatSchools.org © 2025
Places of interest
Getting around
1 nearby routes: 1 bus, 0 rail, 0 otherAir quality
Noise level
A Soundscore™ rating is a number between 50 (very loud) and 100 (very quiet) that tells you how loud a location is due to environmental noise.
Financials
Nearby communities in Jacksonville
Homes in Jacksonville Neighborhoods
- Forest Trails
- Cisco Gardens
- Biltmore
- Dinsmore
- Highlands
- Pumpkin Hill
- Jacksonville North Estate
- Hillcrest
- Chimney Lakes
- Pecan Park
- Lincoln Villas
- Normandy Estate
- Marietta
- Southside
- Jacksonville Heights South
- Arlingwood
- Sans Pareil
- Cedar Hills
- Oceanway
- Southpoint
- Jacksonville Farms-Terrace
- Mcgirts Creek
- Jacksonville Heights
- Gilmore
- Mid-Westside
- Beach Haven
- Oak Hill
- Moncrief Park
- Sunbeam
- Riverview
- Rolling Hills
- Kilarney Shores
- Isle Of Palms
- Springfield
- Golden Glades - The Woods
- Mandarin Station - Losco
- Alderman Park
- Riverside
- Brentwood
- Larsen
- Robinson's Addition
- Royal Terrace
- College Park
- Woodstock
- Jacksonville Heights West
- Tallulah - North Shore
- Grand Park
- Southwood
- Garden City
- Lackawanna
- Picketville
- Herlong
- Goodby's Creek
- Edgewood Manor
- Panama Park
- Holiday Hill
- Woodland Acres
- Ribault
- Miramar
- Craven
- Tiger Hole-Secret Woods
- Fort George Island
- 45Th And Moncrief
- Deerwood
- Allendale
- The Cape
- Settlers Landing
- Magnolia Gardens
- Edgewood
- Deercreek
- Jacksonville Naval Air Station
- Brown Island
- Girvin
- Lakeshore
- Duval
- Beauclerc
- Black Hammock Island
- Ortega Hills
- Duclay Forest
- 29Th And Chase
- East Jacksonville
- Murray Hill
- San Marco
- Del Rio
- Mixon Town
- Wesconnett
- Fairfield
Homes in Jacksonville by Dream Finders Homes
Recently added communities in this area
Other Builders in Jacksonville, FL
Nearby sold homes
New homes in nearby cities
More New Homes in Jacksonville, FL
OLYMPUS EXECUTIVE REALTY, INC, MLS 2131919
IDX information is provided exclusively for personal, non-commercial use, and may not be used for any purpose other than to identify prospective properties consumers may be interested in purchasing. Data is deemed reliable but is not guaranteed accurate by NEFMLS. © 2025 Northeast Florida Multiple Listing Service, Inc. All rights reserved.
Read moreLast checked Apr 1, 5:00 am
- Jome
- New homes search
- Florida
- Jacksonville Metropolitan Area
- Duval County
- Jacksonville
- Cedar Creek
- 1679 Trainors Wy, Jacksonville, FL 32218


































































