














Book your tour. Save an average of $18,473. We'll handle the rest.
We collect exclusive builder offers, book your tours, and support you from start to housewarming.
- Confirmed tours
- Get matched & compare top deals
- Expert help, no pressure
- No added fees
Estimated value based on Jome data, T&C apply




























- 4 bd
- 3 ba
- 2,188 sqft
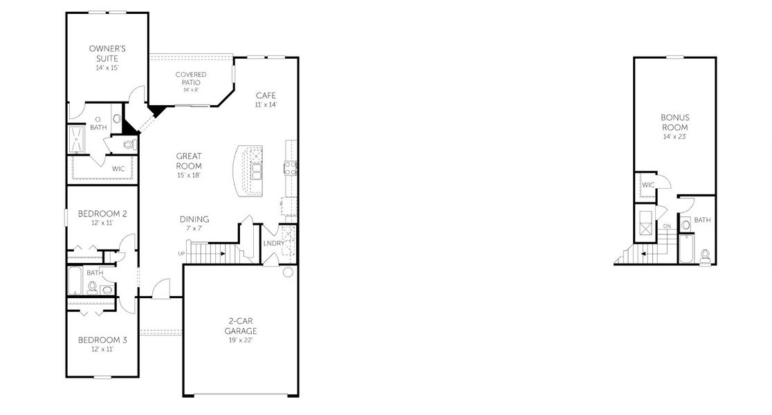
Cambridge II - 50' Homesites plan in Bellbrooke by Dream Finders Homes
Visit the community to experience this floor plan
Why tour with Jome?
- No pressure toursTour at your own pace with no sales pressure
- Expert guidanceGet insights from our home buying experts
- Exclusive accessSee homes and deals not available elsewhere
Jome is featured in
Plan description
May also be listed on the Dream Finders Homes website
Information last verified by Jome: Today at 5:10 AM (February 27, 2026)
Plan details
- Name:
- Cambridge II - 50' Homesites
- Property status:
- Floor plan
- Collection:
- Bellbrooke 50'
- Lot width (feet):
- 50
- Size:
- 2,188 sqft
- Stories:
- 2
- Beds:
- 4
- Baths:
- 3
- Garage spaces:
- 2
Plan features & finishes
- Garage/Parking:
- GarageAttached Garage
- Interior Features:
- Walk-In ClosetPantry
- Kitchen:
- Kitchen Island
- Laundry facilities:
- Utility/Laundry Room
- Property amenities:
- PatioPorch
- Rooms:
- Bonus RoomGreat RoomPrimary Bedroom On MainKitchenDining RoomBreakfast AreaOpen Concept FloorplanPrimary Bedroom Downstairs
- Upgrade Options:
- Alternate Primary Bath

Get a consultation with our New Homes Expert
- See how your home builds wealth
- Plan your home-buying roadmap
- Discover hidden gems
See the full plan layout
Download the floor plan PDF with room dimensions and home design details.

Instant download, no cost

Community details
Bellbrooke
by Dream Finders Homes, Jacksonville, FL
- 13 homes
- 14 plans
- 1,306 - 3,533 sqft
View Bellbrooke details
Want to know more about what's around here?
The Cambridge II - 50' Homesites floor plan is part of Bellbrooke, a new home community by Dream Finders Homes, located in Jacksonville, FL. Visit the Bellbrooke community page for full neighborhood insights, including nearby schools, shopping, walk & bike-scores, commuting, air quality & natural hazards.

Homes built from this plan
Available homes in Bellbrooke
- Home at address 14337 Firebird Dr, Jacksonville, FL 32234

Mayport
Bellbrooke 50'
$355,990
- 4 bd
- 3 ba
- 2,248 sqft
14337 Firebird Dr, Jacksonville, FL 32234
- Home at address 14394 Creekbluff Wy, Jacksonville, FL 32256

Emory II - 50' Homesites
Bellbrooke 50'
$368,990
- 4 bd
- 3 ba
- 2,286 sqft
14394 Creekbluff Wy, Jacksonville, FL 32256
- Home at address 14319 Firebird Dr, Jacksonville, FL 32234

Mayport
Bellbrooke 50'
$376,364
- 4 bd
- 3 ba
- 2,246 sqft
14319 Firebird Dr, Jacksonville, FL 32234
- Home at address 14307 Firebird Dr, Jacksonville, FL 32234

Mayport II
Bellbrooke 50'
$389,990
- 5 bd
- 4 ba
- 2,728 sqft
14307 Firebird Dr, Jacksonville, FL 32234
- Home at address 14439 Firebird Dr, Jacksonville, FL 32256

Auburn - 60' Homesites
Bellbrooke 60'
$408,990
- 4 bd
- 3 ba
- 2,488 sqft
14439 Firebird Dr, Jacksonville, FL 32256
- Home at address 14331 Firebird Dr, Jacksonville, FL 32234

Waterford
Bellbrooke 50'
$409,990
- 5 bd
- 3 ba
- 3,533 sqft
14331 Firebird Dr, Jacksonville, FL 32234
More floor plans in Bellbrooke
- View details for Avery - 50' Homesites

Avery - 50' Homesites
Bellbrooke 50'
$293,990+- 4 bd
- 2 ba
- 1,797 sqft
- View details for Emory - 50' Homesites

Emory - 50' Homesites
Bellbrooke 50'
$309,990+- 4 bd
- 2 ba
- 1,908 sqft

Considering this plan?
Our expert will guide your tour, in-person or virtual
Need more information?
Text or call (888) 488-9243
Financials
Estimated monthly payment
Let us help you find your dream home
How many bedrooms are you looking for?
Similar homes nearby
Recently added communities in this area
Nearby communities in Jacksonville
New homes in nearby cities
More New Homes in Jacksonville, FL
- Jome
- New homes search
- Florida
- Jacksonville Metropolitan Area
- Duval County
- Jacksonville
- Bellbrooke
- Bellbrooke 50'
- 14311 Creekbluff Wy, Jacksonville, FL 32234





























