




Book your tour. Save an average of $18,473. We'll handle the rest.
We collect exclusive builder offers, book your tours, and support you from start to housewarming.
- Confirmed tours
- Get matched & compare top deals
- Expert help, no pressure
- No added fees
Estimated value based on Jome data, T&C apply
Why tour with Jome?
- No pressure toursTour at your own pace with no sales pressure
- Expert guidanceGet insights from our home buying experts
- Exclusive accessSee homes and deals not available elsewhere
Jome is featured in
- Single-Family
- Quick move-in
- $229.94/sqft
- $740/quarterly HOA
Home description
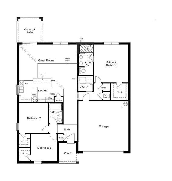
This charming, single-story home showcases a covered front porch for added curb appeal. Inside, discover an open floor plan with luxury vinyl plank flooring and a spacious great room that features volume ceilings. The kitchen boasts an island, breakfast bar, pantry, quartz countertops, Whirlpool® stainless steel appliances and 42-in. upper cabinets with crown molding. Relax in the primary suite, which includes a walk-in closet and connecting bath that offers an extended dual-sink vanity, quartz countertop and walk-in shower with seat and tile surround. Enjoy the outdoors on the covered back patio.
KELLER WILLIAMS ADVANTAGE REALTY
May also be listed on the KB Home website
Information last verified by Jome: Today at 12:48 AM (March 6, 2026)
Home highlights
Book your tour. Save an average of $18,473. We'll handle the rest.
We collect exclusive builder offers, book your tours, and support you from start to housewarming.
- Confirmed tours
- Get matched & compare top deals
- Expert help, no pressure
- No added fees
Estimated value based on Jome data, T&C apply
Home details
- Property status:
- Move-in ready
- Lot size (acres):
- 0.19
- Size:
- 1,585 sqft
- Stories:
- 1
- Beds:
- 3
- Baths:
- 2
- Garage spaces:
- 2
- Facing direction:
- East
Construction details
- Builder Name:
- KB Home
- Year Built:
- 2024
- Roof:
- Shingle Roofing
Home features & finishes
- Construction Materials:
- StuccoBlock
- Cooling:
- Central Air
- Flooring:
- Vinyl FlooringCarpet Flooring
- Foundation Details:
- Slab
- Garage/Parking:
- GarageAttached Garage
- Home amenities:
- Internet
- Interior Features:
- Ceiling-VaultedWalk-In ClosetSliding Doors
- Kitchen:
- DishwasherDisposalKitchen Range
- Laundry facilities:
- Utility/Laundry Room
- Pets:
- Pets Allowed
- Property amenities:
- SidewalkPorch
- Rooms:
- Primary Bedroom On MainFamily RoomOpen Concept FloorplanPrimary Bedroom Downstairs

Get a consultation with our New Homes Expert
- See how your home builds wealth
- Plan your home-buying roadmap
- Discover hidden gems
Utility information
- Heating:
- Thermostat, Central Heating
- Utilities:
- Cable Available

Community details
Coves of Estero Bay
by KB Home, Fort Myers, FL
- 6 homes
- 1,585 - 3,016 sqft
View Coves of Estero Bay details
Community amenities
- Gated Community
- Community Pool
More homes in Coves of Estero Bay
- Home at address 17394 Gulf Preserve Dr, Fort Myers, FL 33908

Home
$347,752
- 3 bd
- 2 ba
- 1,769 sqft
17394 Gulf Preserve Dr, Fort Myers, FL 33908
- Home at address 6548 Estero Bay Dr, Fort Myers, FL 33908

Home
$355,168
- 3 bd
- 2 ba
- 1,769 sqft
6548 Estero Bay Dr, Fort Myers, FL 33908
- Home at address 6544 Estero Bay Dr, Fort Myers, FL 33908

Home
$376,336
- 3 bd
- 2 ba
- 2,127 sqft
6544 Estero Bay Dr, Fort Myers, FL 33908
- Home at address 6540 Estero Bay Dr, Fort Myers, FL 33908

Home
$405,673
- 3 bd
- 2 ba
- 2,609 sqft
6540 Estero Bay Dr, Fort Myers, FL 33908
- Home at address 17318 Gulf Preserve Dr, Fort Myers, FL 33908

Home
$480,303
- 5 bd
- 3 ba
- 3,016 sqft
17318 Gulf Preserve Dr, Fort Myers, FL 33908
About the builder - KB Home
Neighborhood
Home address
- City:
- Fort Myers
- County:
- Lee
- Zip Code:
- 33908
Schools in Lee County School District
GreatSchools’ Summary Rating calculation is based on 4 of the school’s themed ratings, including test scores, student/academic progress, college readiness, and equity. This information should only be used as a reference. Jome is not affiliated with GreatSchools and does not endorse or guarantee this information. Please reach out to schools directly to verify all information and enrollment eligibility. Data provided by GreatSchools.org © 2025
Places of interest
Getting around
Air quality
Noise level
A Soundscore™ rating is a number between 50 (very loud) and 100 (very quiet) that tells you how loud a location is due to environmental noise.

Considering this home?
Our expert will guide your tour, in-person or virtual
Need more information?
Text or call (888) 488-9243
Financials
Estimated monthly payment
Let us help you find your dream home
How many bedrooms are you looking for?
Similar homes nearby
Recently added communities in this area
Nearby communities in Fort Myers
New homes in nearby cities
More New Homes in Fort Myers, FL
- Jome
- New homes search
- Florida
- Lee County
- Fort Myers
- Coves of Estero Bay
- 17314 Gulf Preserve Dr, Fort Myers, FL 33908



























