



- 4 bd
- 3 ba
- 2,092 sqft
817 River Stone Trl, Sanford, FL 32771
- Single-Family
- $261.95/sqft
- $235/monthly HOA
- West facing
New Homes for Sale Near 817 River Stone Trl, Sanford, FL 32771
About this Home
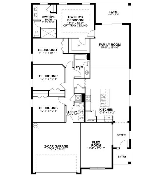
Welcome to 817 River Stone Trl in beautiful Sanford – a stunning new construction home now for sale. This beautiful home features 4 spacious bedrooms, 3 full bathrooms with modern fixtures, an open-concept living space perfect for entertaining, a 14' x 8' lanai, and more! This beautiful new construction home showcases exceptional attention to detail with its functional layout and elegant design elements. The heart of this home features a spacious open-concept living area where the kitchen, dining, and living spaces flow seamlessly together, creating the perfect environment for both everyday living and special gatherings. The convenient main-level owner's bedroom provides a private retreat with an en-suite bathroom and ample closet space. Three additional bedrooms offer comfortable accommodations for family members or guests. This home provides generous room for everyone's needs while maintaining a sense of warmth and connection throughout. The thoughtful design maximizes both functionality and comfort, creating a space that truly feels like home from the moment you walk through the door.
KELLER WILLIAMS ADVANTAGE REALTY, MLS O6315900
May also be listed on the M/I Homes website
Information last verified by Jome: Yesterday at 9:50 AM (January 15, 2026)
Home details
- Property status:
- Sold
- Lot size (acres):
- 0.14
- Size:
- 2,092 sqft
- Stories:
- 1
- Beds:
- 4
- Baths:
- 3
- Garage spaces:
- 2
- Facing direction:
- West

Floor plan details
Capistrano II
- 3 bd
- 2 ba
- 2,092 sqft
View Capistrano II details
Construction details
- Builder Name:
- M/I Homes
- Completion Date:
- September, 2025
- Year Built:
- 2025
- Roof:
- Shingle Roofing
Home features & finishes
- Construction Materials:
- StuccoBlockConcreteStone
- Cooling:
- Central Air
- Flooring:
- Ceramic FlooringCarpet FlooringTile Flooring
- Foundation Details:
- Slab
- Garage/Parking:
- GarageAttached Garage
- Interior Features:
- Walk-In ClosetFoyerPantrySliding Doors
- Kitchen:
- DishwasherMicrowave OvenDisposalKitchen Island
- Laundry facilities:
- Utility/Laundry Room
- Pets:
- Pets Allowed
- Property amenities:
- Lanai
- Rooms:
- Flex RoomPrimary Bedroom On MainKitchenFamily RoomOpen Concept FloorplanPrimary Bedroom Downstairs
Utility information
- Heating:
- Electric Heating, Thermostat, Central Heating

Community details
Estates at Rivercrest
by M/I Homes, Sanford, FL
- 8 homes
- 7 plans
- 1,758 - 3,784 sqft
View Estates at Rivercrest details
Community amenities
- Gated Community
- Community Pool
- Sidewalks Available
More homes in Estates at Rivercrest
- Home at address 797 River Stone Trl, Sanford, FL 32771

$539,990
Under construction- 4 bd
- 3 ba
- 2,194 sqft
797 River Stone Trl, Sanford, FL 32771
- Home at address 813 River Stone Trl, Sanford, FL 32771

$546,990
Under construction- 4 bd
- 3 ba
- 2,194 sqft
813 River Stone Trl, Sanford, FL 32771
- Home at address 1156 Basalt Ln, Sanford, FL 32771

$586,990
Under construction- 4 bd
- 3 ba
- 2,489 sqft
1156 Basalt Ln, Sanford, FL 32771
- Home at address 805 River Stone Trl, Sanford, FL 32771

$591,990
Under construction- 4 bd
- 3 ba
- 2,489 sqft
805 River Stone Trl, Sanford, FL 32771
- Home at address 801 River Stone Trl, Sanford, FL 32771

$641,990
Under construction- 5 bd
- 3.5 ba
- 3,120 sqft
801 River Stone Trl, Sanford, FL 32771
- Home at address 781 River Stone Trl, Sanford, FL 32771

$644,990
Under construction- 5 bd
- 4.5 ba
- 3,119 sqft
781 River Stone Trl, Sanford, FL 32771
Floor plans in Estates at Rivercrest
About the builder - M/I Homes

- 128communities on Jome
- 1,815homes on Jome
Neighborhood
Home address
Schools in Seminole County School District
- Grades PK-PKPublictapp childcare center1.5 mi1211 s mellonville avena
- Grades PK-07Privatehidden treasure preschool christian academy1.6 mi360 s mellonville avena
GreatSchools’ Summary Rating calculation is based on 4 of the school’s themed ratings, including test scores, student/academic progress, college readiness, and equity. This information should only be used as a reference. Jome is not affiliated with GreatSchools and does not endorse or guarantee this information. Please reach out to schools directly to verify all information and enrollment eligibility. Data provided by GreatSchools.org © 2025
Places of interest
Getting around
Air quality
Financials
Nearby communities in Sanford
Homes in Sanford by M/I Homes
Recently added communities in this area
Other Builders in Sanford, FL
Nearby sold homes
New homes in nearby cities
More New Homes in Sanford, FL
KELLER WILLIAMS ADVANTAGE REALTY, MLS O6315900
Based on information submitted to the MLS GRID as of 10/21/2024 2:31 PM CDT. All data is obtained from various sources and may not have been verified by broker or MLS GRID. Supplied Open House Information is subject to change without notice. All information should be independently reviewed and verified for accuracy. Properties may or may not be listed by the office/agent presenting the information. Some IDX listings have been excluded from this website. Properties displayed may be listed or sold by various participants in the MLS. IDX information is provided exclusively for personal, non-commercial use, and may not be used for any purpose other than to identify prospective properties consumers may be interested in purchasing. Information is deemed reliable but not guaranteed. Use of the MLS GRID Data may be subject to an end user license agreement prescribed by the Member Participant’s applicable MLS if any and as amended from time to time. The Digital Millennium Copyright Act of 1998, 17 U.S.C. § 512 (the “DMCA”) provides recourse for copyright owners who believe that material appearing on the Internet infringes their rights under U.S. copyright law. If you believe in good faith that any content or material made available in connection with our website or services infringes your copyright, you (or your agent) may send us a notice requesting that the content or material be removed, or access to it blocked. Notices must be sent in writing by email to DMCAnotice@MLSGrid.com. The DMCA requires that your notice of alleged copyright infringement include the following information: (1) description of the copyrighted work that is the subject of claimed infringement; (2) description of the alleged infringing content and information sufficient to permit us to locate the content; (3) contact information for you, including your address, telephone number and email address; (4) a statement by you that you have a good faith belief that the content in the manner complained of is not authorized by the copyright owner, or its agent, or by the operation of any law; (5) a statement by you, signed under penalty of perjury, that the information in the notification is accurate and that you have the authority to enforce the copyrights that are claimed to be infringed; and (6) a physical or electronic signature of the copyright owner or a person authorized to act on the copyright owner’s behalf. Failure to include all of the above information may result in the delay of the processing of your complaint. Listing Information presented by local MLS brokerage: NewHomesMate LLC, DBA Jome (888) 486-2818
Read moreLast checked Jan 16, 3:10 am
- Jome
- New homes search
- Florida
- Greater Orlando Area
- Seminole County
- Sanford
- Estates at Rivercrest
- 817 River Stone Trl, Sanford, FL 32771































































