





- 4 bd
- 2 ba
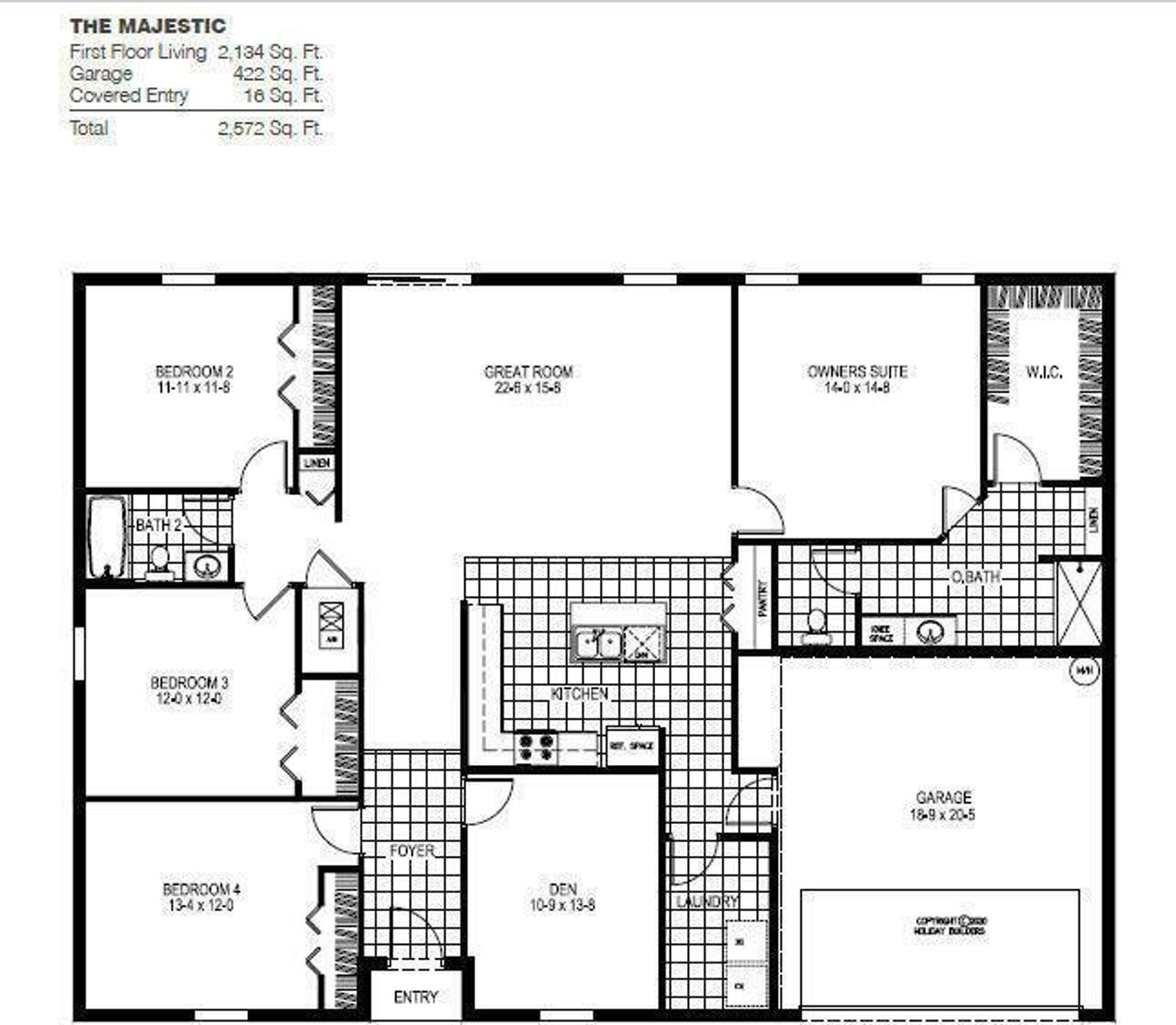
- 2,134 sqft
1865 Sw Clambake Ave, Port St. Lucie, FL 34953
- Single-Family
- $215.55/sqft
- No HOA fee
- South facing
New Homes for Sale Near 1865 Sw Clambake Ave, Port St. Lucie, FL 34953
About this Home
This is a new construction Majestic floorplan with 4 bedrooms, 2 Bathrooms, 2 car garage and a den. Known for being a quality build, this CBS constructed home includes our energy smart features throughout with digital thermostat, 14 SEER rated heating, ventilation & A/C system, roof vent and soffit for attic vent, and dual pane energy efficient windows. This home comes with a one-year non-transferable builder warranty, a two-year non-transferable mechanical warranty and a transferable 10-year Maverick Warranties and Insurance limited structural warranty. This location is close to highways, shops and restaurants. No reason to rent when you can own.
Holiday Builders of the Gulf Coast, MLS R11085493
May also be listed on the Holiday Builders website
Information last verified by Jome: Today at 11:45 AM (December 27, 2025)
Home details
- Property status:
- Sold
- Lot size (acres):
- 0.23
- Size:
- 2,134 sqft
- Stories:
- 1
- Beds:
- 4
- Baths:
- 2
- Garage spaces:
- 2
- Facing direction:
- South
Construction details
- Builder Name:
- Holiday Builders
- Year Built:
- 2025
- Roof:
- Composition Roofing, Shingle Roofing
Home features & finishes
- Cooling:
- Central Air
- Flooring:
- Vinyl FlooringCarpet Flooring
- Garage/Parking:
- GarageAttached Garage
- Interior Features:
- FoyerPantrySeparate Shower
- Kitchen:
- DishwasherMicrowave OvenKitchen Range
- Pets:
- Pets Allowed
- Rooms:
- AtticPrimary Bedroom On MainDining RoomPrimary Bedroom Downstairs
Utility information
- Heating:
- Electric Heating, Central Heating
- Utilities:
- Electricity Available, Sewer Available, Water Available

Community details
Port St Lucie
by Holiday Builders, Port St. Lucie, FL
- 24 homes
- 18 plans
- 1,239 - 2,709 sqft
View Port St Lucie details
More homes in Port St Lucie
Floor plans in Port St Lucie
About the builder - Holiday Builders
Neighborhood
Home address
- City:
- Port St. Lucie
- Zip Code:
- 34953
Schools in St. Lucie County School District
- Grades M-MPublicfau/slcsd palm pointe research school palm pointe k8 school2.7 mi10680 sw academic wayna
GreatSchools’ Summary Rating calculation is based on 4 of the school’s themed ratings, including test scores, student/academic progress, college readiness, and equity. This information should only be used as a reference. Jome is not affiliated with GreatSchools and does not endorse or guarantee this information. Please reach out to schools directly to verify all information and enrollment eligibility. Data provided by GreatSchools.org © 2025
Places of interest
Getting around
Air quality
Noise level
A Soundscore™ rating is a number between 50 (very loud) and 100 (very quiet) that tells you how loud a location is due to environmental noise.
Financials
Nearby communities in Port St. Lucie
Homes in Port St. Lucie by Holiday Builders
Recently added communities in this area
Other Builders in Port St. Lucie, FL
Nearby sold homes
New homes in nearby cities
More New Homes in Port St. Lucie, FL
Holiday Builders of the Gulf Coast, MLS R11085493
All listings featuring the BMLS logo are provided by BeachesMLS, Inc. This information is not verified for authenticity or accuracy and is not guaranteed. Information is provided exclusively for consumers’ personal, non-commercial use and may not be used for any purpose other than to identify prospective properties consumers may be interested in purchasing. Copyright © 2025 BeachesMLS, Inc.
Read moreLast checked Dec 27, 6:00 pm
- Jome
- New homes search
- Florida
- Treasure Coast
- Port St. Lucie
- Port St Lucie
- 1865 Sw Clambake Ave, Port St. Lucie, FL 34953













































































