




Book your tour. Save an average of $18,473. We'll handle the rest.
- Confirmed tours
- Get matched & compare top deals
- Expert help, no pressure
- No added fees
Estimated value based on Jome data, T&C apply
Why tour with Jome?
- No pressure toursTour at your own pace with no sales pressure
- Expert guidanceGet insights from our home buying experts
- Exclusive accessSee homes and deals not available elsewhere
Jome is featured in
- Single-Family
- Quick move-in
- $161.4/sqft
- $212/quarterly HOA
Home description
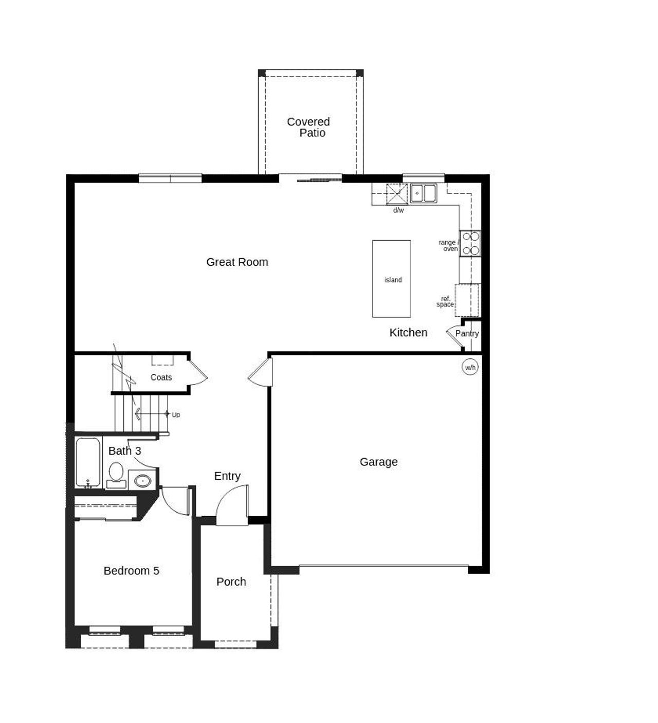
This beautiful, two-story home showcases an inviting covered front porch. Inside, discover an open floor plan with 9-ft. ceilings and an expansive great room that provides access to a covered back patio, which is perfect for hosting family. The kitchen boasts a large eat-in island, 42-in. upper cabinets, pantry, granite countertops and Whirlpool® stainless steel appliances. Upstairs, enjoy the convenience of a dedicated laundry room. The primary bedroom features a walk-in closet and connecting bath that offers a linen closet, extended dual-sink vanity, granite countertops and walk-in shower with tile surround. Community offers no CDD and low HOA.
May also be listed on the KB Home website
Information last verified by Jome: Today at 12:48 AM (December 6, 2025)
Home highlights
Historic Florida park with river rapids, hiking, and camping under towering oaks near Tampa’s northeast suburbs.
Book your tour. Save an average of $18,473. We'll handle the rest.
We collect exclusive builder offers, book your tours, and support you from start to housewarming.
- Confirmed tours
- Get matched & compare top deals
- Expert help, no pressure
- No added fees
Estimated value based on Jome data, T&C apply
Home details
- Property status:
- Move-in ready
- Size:
- 2,566 sqft
- Stories:
- 2
- Beds:
- 4
- Baths:
- 3
- Garage spaces:
- 2
- Facing direction:
- North
Construction details
- Builder Name:
- KB Home
Home features & finishes
- Garage/Parking:
- GarageAttached Garage
- Interior Features:
- Walk-In ClosetFoyerPantryLoft
- Laundry facilities:
- Utility/Laundry Room
- Property amenities:
- PatioPorch
- Rooms:
- KitchenDining RoomFamily RoomPrimary Bedroom Upstairs

Community details
River Run II
by KB Home, Zephyrhills, FL
- 2 homes
- 8 plans
- 1,541 - 3,016 sqft
View River Run II details
More homes in River Run II
Floor plans in River Run II
About the builder - KB Home
Neighborhood
Home address
- City:
- Zephyrhills
- County:
- Pasco
- Zip Code:
- 33541
Schools in Pasco County School District
- Grades KG-05Privatethe broach school3.0 mi38924 c avena
- Grades PK-08Privateheritage academy3.4 mi35636 hwy 54 wna
- Grades PK-PKPrivateeinstein learning school3.5 mi35203 state road 54na
GreatSchools’ Summary Rating calculation is based on 4 of the school’s themed ratings, including test scores, student/academic progress, college readiness, and equity. This information should only be used as a reference. Jome is not affiliated with GreatSchools and does not endorse or guarantee this information. Please reach out to schools directly to verify all information and enrollment eligibility. Data provided by GreatSchools.org © 2025
Places of interest
Getting around
Air quality
Natural hazards risk
Climate hazards can impact homes and communities, with risks varying by location. These scores reflect the potential impact of natural disasters and climate-related risks on Pasco County
Provided by FEMA

Considering this home?
Our expert will guide your tour, in-person or virtual
Need more information?
Text or call (888) 486-2818
Financials
Estimated monthly payment
Similar homes nearby
Recently added communities in this area
Nearby communities in Zephyrhills
New homes in nearby cities
More New Homes in Zephyrhills, FL
- Home
- New homes
- Florida
- Tampa Bay Area
- Pasco County
- Zephyrhills
- River Run II
- 37630 Mackenzie Dr, Zephyrhills, FL 33541



































