









Book your tour. Save an average of $18,473. We'll handle the rest.
We collect exclusive builder offers, book your tours, and support you from start to housewarming.
- Confirmed tours
- Get matched & compare top deals
- Expert help, no pressure
- No added fees
Estimated value based on Jome data, T&C apply




































- 5 bd
- 4 ba
- 3,531 sqft
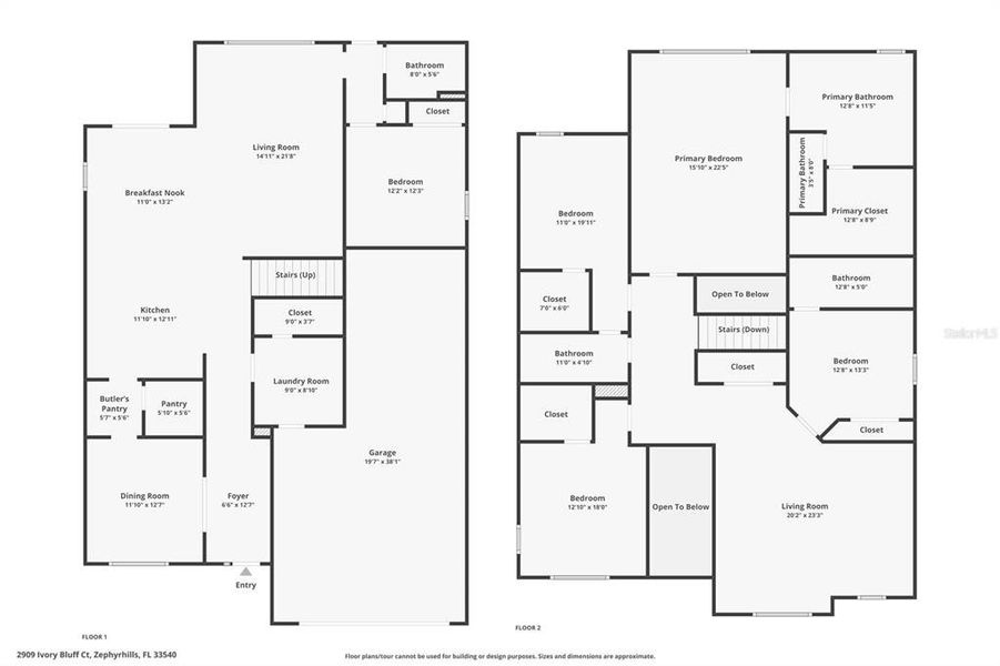
2909 Ivory Bluff Ct, Zephyrhills, FL 33540
Why tour with Jome?
- No pressure toursTour at your own pace with no sales pressure
- Expert guidanceGet insights from our home buying experts
- Exclusive accessSee homes and deals not available elsewhere
Jome is featured in
- Single-Family
- Quick move-in
- $164.26/sqft
- $160/annual HOA
Home description
Welcome to the gorgeous two-story home built in 2024, nestled on a quiet cul-de-sac in the desirable Cobblestone community. With 5 spacious bedrooms and 4 full bathrooms, this 3,531 square foot residence offers both comfort and versatility. The open-concept kitchen features modern stainless steel appliances, double ovens, a large island with bar seating, and abundant cabinet space and large walk-in pantry. A downstairs guest suite with adjacent bathroom provides privacy and convenience, while the oversized primary bedroom upstairs offers a true retreat with a luxurious en suite and walk-in closet. Multiple living areas, including a large upstairs loft and a stylish downstairs great room, provide ample space for relaxation and entertaining. Enjoy peaceful pond views with no neighbors on one side and a generously sized backyard ready for customization. Complete with a 3-car garage and set on a quiet cul-de-sac, this stunning home blends comfort, function, and privacy in one of Zephyrhills’ most sought-after neighborhoods.
54 REALTY LLC, MLS TB8472879
Information last verified by Jome: Yesterday at 10:01 AM (April 1, 2026)
Home highlights
Historic Florida park with river rapids, hiking, and camping under towering oaks near Tampa’s northeast suburbs.
Book your tour. Save an average of $18,473. We'll handle the rest.
We collect exclusive builder offers, book your tours, and support you from start to housewarming.
- Confirmed tours
- Get matched & compare top deals
- Expert help, no pressure
- No added fees
Estimated value based on Jome data, T&C apply
Home details
- Property status:
- Move-in ready
- Lot size (acres):
- 0.15
- Size:
- 3,531 sqft
- Stories:
- 2
- Beds:
- 5
- Baths:
- 4
- Garage spaces:
- 3
- Facing direction:
- Southeast
Construction details
- Year Built:
- 2024
- Roof:
- Shingle Roofing
Home features & finishes
- Construction Materials:
- StuccoBlockConcrete
- Cooling:
- Central Air
- Flooring:
- Carpet FlooringTile Flooring
- Foundation Details:
- Slab
- Garage/Parking:
- GarageAttached Garage
- Interior Features:
- Ceiling-HighWalk-In ClosetBlindsLoft
- Kitchen:
- DishwasherMicrowave OvenOvenRefrigeratorDisposalBuilt-In OvenCooktop
- Laundry facilities:
- Utility/Laundry Room
- Lighting:
- Exterior LightingStreet Lights
- Pets:
- Pets Allowed
- Property amenities:
- SidewalkCul-de-sacPatioPorch
- Rooms:
- KitchenDining RoomFamily RoomOpen Concept FloorplanSeparate Living and DiningPrimary Bedroom Upstairs

Get a consultation with our New Homes Expert
- See how your home builds wealth
- Plan your home-buying roadmap
- Discover hidden gems
Utility information
- Heating:
- Electric Heating, Thermostat, Water Heater, Central Heating
- Utilities:
- Electricity Available, Cable Available, Sewer Available, Water Available
Community amenities
- Playground
- Club House
- Community Pool
- Park Nearby
- Sidewalks Available
- Waterfront View
Neighborhood
Home address
- City:
- Zephyrhills
- County:
- Pasco
- Zip Code:
- 33540
Schools in Pasco County School District
- Grades KG-05Privatethe broach school2.1 mi38924 c avena
- Grades PK-08Privateheritage academy3.0 mi35636 hwy 54 wna
- Grades PK-PKPrivateeinstein learning school3.2 mi35203 state road 54na
GreatSchools’ Summary Rating calculation is based on 4 of the school’s themed ratings, including test scores, student/academic progress, college readiness, and equity. This information should only be used as a reference. Jome is not affiliated with GreatSchools and does not endorse or guarantee this information. Please reach out to schools directly to verify all information and enrollment eligibility. Data provided by GreatSchools.org © 2025
Places of interest
Getting around
Air quality
Noise level
A Soundscore™ rating is a number between 50 (very loud) and 100 (very quiet) that tells you how loud a location is due to environmental noise.
Natural hazards risk
Provided by FEMA

Considering this home?
Our expert will guide your tour, in-person or virtual
Need more information?
Text or call (888) 545-5198
Financials
Estimated monthly payment
Let us help you find your dream home
How many bedrooms are you looking for?
Similar homes nearby
Recently added communities in this area
Nearby communities in Zephyrhills
New homes in nearby cities
More New Homes in Zephyrhills, FL
54 REALTY LLC, MLS TB8472879
Based on information submitted to the MLS GRID as of 10/21/2024 2:31 PM CDT. All data is obtained from various sources and may not have been verified by broker or MLS GRID. Supplied Open House Information is subject to change without notice. All information should be independently reviewed and verified for accuracy. Properties may or may not be listed by the office/agent presenting the information. Some IDX listings have been excluded from this website. Properties displayed may be listed or sold by various participants in the MLS. IDX information is provided exclusively for personal, non-commercial use, and may not be used for any purpose other than to identify prospective properties consumers may be interested in purchasing. Information is deemed reliable but not guaranteed. Use of the MLS GRID Data may be subject to an end user license agreement prescribed by the Member Participant’s applicable MLS if any and as amended from time to time. The Digital Millennium Copyright Act of 1998, 17 U.S.C. § 512 (the “DMCA”) provides recourse for copyright owners who believe that material appearing on the Internet infringes their rights under U.S. copyright law. If you believe in good faith that any content or material made available in connection with our website or services infringes your copyright, you (or your agent) may send us a notice requesting that the content or material be removed, or access to it blocked. Notices must be sent in writing by email to DMCAnotice@MLSGrid.com. The DMCA requires that your notice of alleged copyright infringement include the following information: (1) description of the copyrighted work that is the subject of claimed infringement; (2) description of the alleged infringing content and information sufficient to permit us to locate the content; (3) contact information for you, including your address, telephone number and email address; (4) a statement by you that you have a good faith belief that the content in the manner complained of is not authorized by the copyright owner, or its agent, or by the operation of any law; (5) a statement by you, signed under penalty of perjury, that the information in the notification is accurate and that you have the authority to enforce the copyrights that are claimed to be infringed; and (6) a physical or electronic signature of the copyright owner or a person authorized to act on the copyright owner’s behalf. Failure to include all of the above information may result in the delay of the processing of your complaint. Listing Information presented by local MLS brokerage: NewHomesMate LLC, DBA Jome (888) 545-5198
Read moreLast checked Apr 1, 9:10 pm
- Jome
- New homes search
- Florida
- Tampa Bay Area
- Pasco County
- Zephyrhills
- 2909 Ivory Bluff Ct, Zephyrhills, FL 33540


























