







Book your tour. Save an average of $18,473. We'll handle the rest.
We collect exclusive builder offers, book your tours, and support you from start to housewarming.
- Confirmed tours
- Get matched & compare top deals
- Expert help, no pressure
- No added fees
Estimated value based on Jome data, T&C apply





















Why tour with Jome?
- No pressure toursTour at your own pace with no sales pressure
- Expert guidanceGet insights from our home buying experts
- Exclusive accessSee homes and deals not available elsewhere
Jome is featured in
- Single-Family
- Ready by September 2026
- $230.62/sqft
- $222/quarterly HOA
Builder deals available
Conventional 30 Year Fixed
$159,420 est. value- Rate buydown from 1.5% (1 year), 2.5% (2 year), 3.5% (3–30 year) with 6.026% APR, 20% down payment, and 740 credit score
Deals may change and are not guaranteed. Some deals apply to specific homes or plans. Not a financing offer. Eligibility varies by lender. Please verify details.
Home description
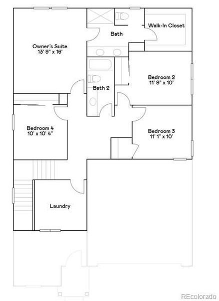
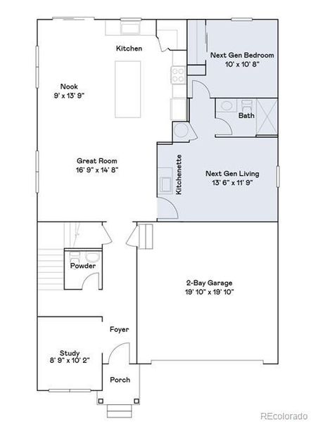
Contact builder today about Special Financing for this home - terms and conditions apply Brand new construction in Kinston at Centerra featuring a versatile Next Gen layout designed for multi-functional living. This two-story home offers 5 bedrooms, 4 baths, and an open-concept main living area ideal for everyday living and entertaining. The main level includes a private Next Gen suite with its own entrance, living space, kitchenette, bedroom, and bath perfect for multi-generational living, extended guests, or flexible use. A separate study near the foyer provides an ideal home office or additional workspace. Upstairs, the spacious primary suite features a large walk-in closet and private bath, while three additional bedrooms, two full baths, and convenient upstairs laundry provide comfort and functionality. The upper-level layout is complemented by a loft offering additional living or recreation space. A 2-car garage and crawl space basement add storage and practicality. Located in the desirable Kinston at Centerra community with access to parks, trails, and open space, plus close proximity to Centerra shopping, dining, and entertainment. Energy rated for efficiency, this home is designed to help reduce utility costs while enhancing year-round comfort. Estimated completion September 2026. Visit the model sales office for more information.
MLS IRE1055797
May also be listed on the Lennar website
Information last verified by Jome: Yesterday at 5:06 AM (April 14, 2026)
Home highlights
Book your tour. Save an average of $18,473. We'll handle the rest.
We collect exclusive builder offers, book your tours, and support you from start to housewarming.
- Confirmed tours
- Get matched & compare top deals
- Expert help, no pressure
- No added fees
Estimated value based on Jome data, T&C apply
Home details
- Property status:
- Under construction
- Collection:
- Kinston: The Petal
- Lot size (acres):
- 0.20
- Size:
- 2,544 sqft
- Stories:
- 2
- Beds:
- 5
- Baths:
- 1
- Half baths:
- 3
- Garage spaces:
- 2
Construction details
- Builder Name:
- Lennar
- Completion Date:
- September, 2026
- Year Built:
- 2026
- Roof:
- Composition Roofing
Home features & finishes
- Appliances:
- Sprinkler System
- Construction Materials:
- Frame
- Cooling:
- Central Air
- Flooring:
- Vinyl FlooringCarpet Flooring
- Garage/Parking:
- Door OpenerGarageAttached Garage
- Home amenities:
- Green Construction
- Interior Features:
- Walk-In ClosetFoyerPantry
- Kitchen:
- DishwasherMicrowave OvenOvenRefrigeratorDisposal
- Laundry facilities:
- Laundry Facilities In UnitDryerWasherUtility/Laundry Room
- Property amenities:
- BasementPorch
- Rooms:
- Great RoomMulti-Gen SuiteKitchenNookPowder RoomOffice/StudyOpen Concept FloorplanPrimary Bedroom Upstairs
- Security system:
- Fire Alarm SystemSmoke DetectorCarbon Monoxide Detector
Room details
Master Bedroom
Kitchen
Dining Room

Get a consultation with our New Homes Expert
- See how your home builds wealth
- Plan your home-buying roadmap
- Discover hidden gems
Utility information
- Heating:
- Forced Air Heating
- Sewer:
- Public Sewer
- Utilities:
- Electricity Available, Natural Gas Available
- Water source:
- Public

Community details
Kinston at Kinston Centerra
by Lennar, Loveland, CO
- 4 homes
- 3 plans
- 1,672 - 2,544 sqft
View Kinston details
Community amenities
- Playground
- Fitness Center/Exercise Area
- Community Pool
- Park Nearby
More homes in Kinston
- Home at address 6183 Drum Pl, Loveland, CO 80538

Orchid
Kinston: The Petal
$566,900
- 5 bd
- 3.5 ba
- 2,544 sqft
6183 Drum Pl, Loveland, CO 80538
Floor plans in Kinston
About the builder - Lennar

- 1,838communities on Jome
- 6,598homes on Jome
Neighborhood
Home address
Schools in Thompson School District R-2J
GreatSchools’ Summary Rating calculation is based on 4 of the school’s themed ratings, including test scores, student/academic progress, college readiness, and equity. This information should only be used as a reference. Jome is not affiliated with GreatSchools and does not endorse or guarantee this information. Please reach out to schools directly to verify all information and enrollment eligibility. Data provided by GreatSchools.org © 2025
Places of interest
Getting around
Air quality
Noise level
A Soundscore™ rating is a number between 50 (very loud) and 100 (very quiet) that tells you how loud a location is due to environmental noise.

Considering this home?
Our expert will guide your tour, in-person or virtual
Need more information?
Text or call (888) 545-5198
Financials
Estimated monthly payment
Let us help you find your dream home
How many bedrooms are you looking for?
Similar homes nearby
Recently added communities in this area
Nearby communities in Loveland
New homes in nearby cities
More New Homes in Loveland, CO
MLS IRE1055797
Information source: Information and Real Estate Services, LLC. Provided for limited non-commercial use only under IRES Rules © 2025 IRES, LLC. Listing information is provided exclusively for consumers' personal, non-commercial use and may not be used for any purpose other than to identify prospective properties consumers may be interested in purchasing. Information deemed reliable but not guaranteed by the MLS. Compensation information displayed on listing details is only applicable to other participants and subscribers of the source MLS.
Read moreLast checked Apr 15, 12:20 am
- Jome
- New homes search
- Colorado
- Denver Metropolitan Area
- Larimer County
- Loveland
- Kinston
- Kinston: The Petal
- 6107 Bream Pl, Loveland, CO 80538




























