



Book your tour. Save an average of $18,473. We'll handle the rest.
We collect exclusive builder offers, book your tours, and support you from start to housewarming.
- Confirmed tours
- Get matched & compare top deals
- Expert help, no pressure
- No added fees
Estimated value based on Jome data, T&C apply

Why tour with Jome?
- No pressure toursTour at your own pace with no sales pressure
- Expert guidanceGet insights from our home buying experts
- Exclusive accessSee homes and deals not available elsewhere
Jome is featured in
- Duplex
- Quick move-in
- $266.3/sqft
- $612/annual HOA
Home description
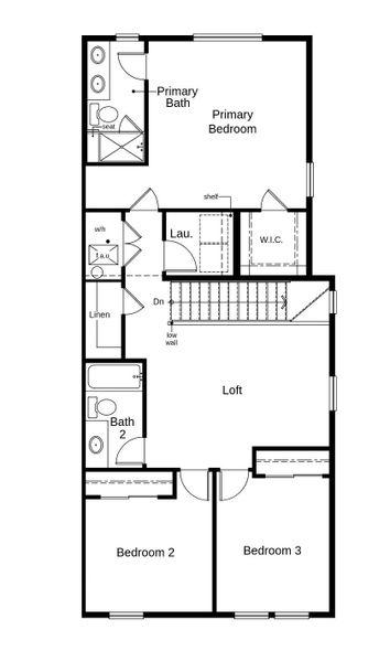
Discover contemporary living at its finest in this thoughtfully designed, two-story home, which showcases a spacious great room for entertaining and relaxing. The modern kitchen is perfect for whipping up culinary creations. Upstairs, a versatile loft awaits. Enjoy the convenience of a dedicated laundry room. Retreat to the primary bedroom, which features a generous walk-in closet and connecting bath that offers a luxurious shower with seat. This home also includes a practical crawl space for additional storage.
May also be listed on the KB Home website
Information last verified by Jome: Today at 1:12 AM (April 20, 2026)
Book your tour. Save an average of $18,473. We'll handle the rest.
We collect exclusive builder offers, book your tours, and support you from start to housewarming.
- Confirmed tours
- Get matched & compare top deals
- Expert help, no pressure
- No added fees
Estimated value based on Jome data, T&C apply
Home details
- Property status:
- Move-in ready
- Lot size (acres):
- 0.06
- Size:
- 1,671 sqft
- Stories:
- 2
- Beds:
- 3
- Baths:
- 2.5
- Garage spaces:
- 2
- Facing direction:
- East
Construction details
- Builder Name:
- KB Home
- Year Built:
- 2026
- Roof:
- Composition Roofing
Home features & finishes
- Appliances:
- Sprinkler System
- Construction Materials:
- Cement
- Cooling:
- Central Air
- Flooring:
- Vinyl FlooringCarpet Flooring
- Foundation Details:
- Structural
- Garage/Parking:
- GarageAttached Garage
- Interior Features:
- Ceiling-HighWalk-In ClosetPantry
- Kitchen:
- DishwasherMicrowave OvenOvenQuartz countertopSelf Cleaning Oven
- Lighting:
- Lighting
- Property amenities:
- BasementLandscapingYard
- Rooms:
- Open Concept Floorplan

Get a consultation with our New Homes Expert
- See how your home builds wealth
- Plan your home-buying roadmap
- Discover hidden gems
Utility information
- Heating:
- Floor Furnace, Water Heater, Tankless water heater
- Sewer:
- Public Sewer
- Utilities:
- Electricity Available, Natural Gas Available, Internet Cable, Phone Available, Cable Available
- Water source:
- Public

Community details
Farmlore Villas
by KB Home, Brighton, CO
- 2 homes
- 4 plans
- 1,468 - 1,941 sqft
View Farmlore Villas details
More homes in Farmlore Villas
- Home at address 2201 Onion Shed Aly, Brighton, CO 80601

Home
$449,990
- 3 bd
- 2.5 ba
- 1,754 sqft
2201 Onion Shed Aly, Brighton, CO 80601
Floor plans in Farmlore Villas
About the builder - KB Home
Neighborhood
Home address
Schools in School District 27J
GreatSchools’ Summary Rating calculation is based on 4 of the school’s themed ratings, including test scores, student/academic progress, college readiness, and equity. This information should only be used as a reference. Jome is not affiliated with GreatSchools and does not endorse or guarantee this information. Please reach out to schools directly to verify all information and enrollment eligibility. Data provided by GreatSchools.org © 2025
Places of interest
Getting around
2 nearby routes: 2 bus, 0 rail, 0 otherAir quality
Noise level
A Soundscore™ rating is a number between 50 (very loud) and 100 (very quiet) that tells you how loud a location is due to environmental noise.

Considering this home?
Our expert will guide your tour, in-person or virtual
Need more information?
Text or call (888) 545-5198
Financials
Estimated monthly payment
Let us help you find your dream home
How many bedrooms are you looking for?
Similar homes nearby
Recently added communities in this area
Nearby communities in Brighton
New homes in nearby cities
More New Homes in Brighton, CO
- Jome
- New homes search
- Colorado
- Denver Metropolitan Area
- Adams County
- Brighton
- Farmlore Villas
- 2202 Onion Shed Aly, Brighton, CO 80601






























