








Book your tour. Save an average of $18,473. We'll handle the rest.
We collect exclusive builder offers, book your tours, and support you from start to housewarming.
- Confirmed tours
- Get matched & compare top deals
- Expert help, no pressure
- No added fees
Estimated value based on Jome data, T&C apply



- 3 bd
- 2 ba
- 1,936 sqft
42581 Kinloch Trl, Elizabeth, CO 80107
Why tour with Jome?
- No pressure toursTour at your own pace with no sales pressure
- Expert guidanceGet insights from our home buying experts
- Exclusive accessSee homes and deals not available elsewhere
Jome is featured in
- Single-Family
- $376/annual HOA
- 0.20-acre lot
- 92 days on Jome
Home description
The elegant Livingston plan welcomes you with long foyer, leading you past two comfortable bedrooms—sharing a full hall bath—and out into a beautiful open-concept layout that's perfect for relaxing, dining, and entertaining. A large kitchen boasts a center island and corner walk-in pantry and overlooks a generous great room and charming dining area with access to the backyard. Secluded at the back of the home, a spacious owner's bedroom features a private en-suite bath and a roomy walk-in closet. You'll also appreciate a laundry room conveniently located in the center of the home.
Additional home highlights include:
May also be listed on the Century Communities website
Information last verified by Jome: Today at 6:02 AM (May 30, 2026)
Book your tour. Save an average of $18,473. We'll handle the rest.
We collect exclusive builder offers, book your tours, and support you from start to housewarming.
- Confirmed tours
- Get matched & compare top deals
- Expert help, no pressure
- No added fees
Estimated value based on Jome data, T&C apply
Home details
- Property status:
- Pending/Under contract
- Lot size (acres):
- 0.20
- Size:
- 1,936 sqft
- Stories:
- 1
- Beds:
- 3
- Baths:
- 2
- Garage spaces:
- 3
Construction details
- Builder Name:
- Century Communities
- Completion Date:
- May, 2026
- Year Built:
- 2026
- Roof:
- Composition Roofing
Home features & finishes
- Construction Materials:
- Vinyl SidingFrame
- Cooling:
- Central Air
- Foundation Details:
- Slab
- Garage/Parking:
- GarageAttached Garage
- Interior Features:
- Walk-In ClosetFoyerPantry
- Laundry facilities:
- Utility/Laundry Room
- Property amenities:
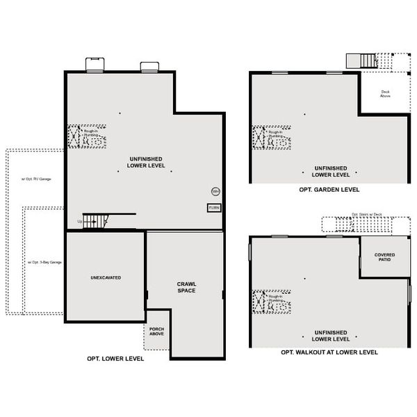
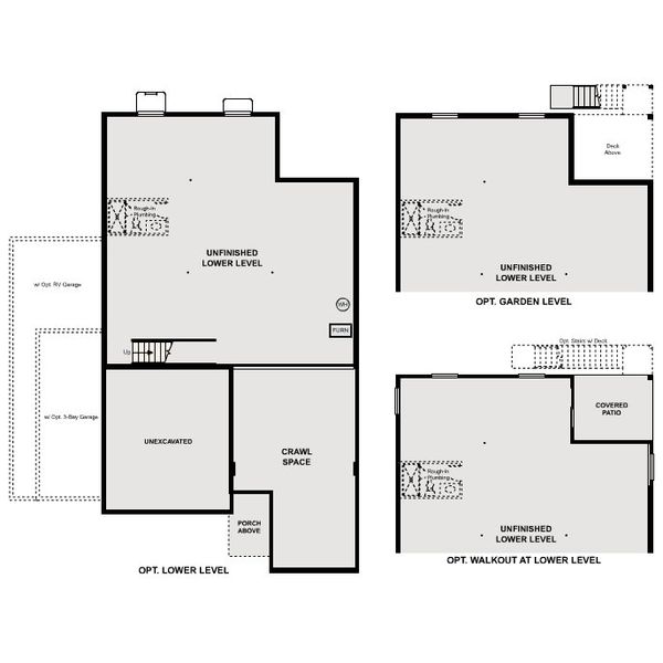
- BasementPorch
- Rooms:
- Primary Bedroom On MainKitchenMudroomDining RoomFamily RoomOpen Concept FloorplanPrimary Bedroom Downstairs
- Security system:
- Smoke DetectorCarbon Monoxide Detector

Get a consultation with our New Homes Expert
- See how your home builds wealth
- Plan your home-buying roadmap
- Discover hidden gems
Utility information
- Heating:
- Forced Air Heating
- Sewer:
- Public Sewer
- Water source:
- Public

Community details
Spring Valley Ranch
by Century Communities, Elizabeth, CO
- 8 homes
- 7 plans
- 1,610 - 2,767 sqft
View Spring Valley Ranch details
More homes in Spring Valley Ranch
- Home at address 4303 Kingsbarns Dr, Elizabeth, CO 80107

Livingston
$574,990
- 3 bd
- 2 ba
- 1,936 sqft
4303 Kingsbarns Dr, Elizabeth, CO 80107
- Home at address 4293 Kingsbarns Dr, Elizabeth, CO 80107

Marion
$574,990
- 4 bd
- 3 ba
- 2,408 sqft
4293 Kingsbarns Dr, Elizabeth, CO 80107
- Home at address 4322 Kingsbarns Dr, Elizabeth, CO 80107

Ontario
$605,410
- 3 bd
- 2.5 ba
- 1,994 sqft
4322 Kingsbarns Dr, Elizabeth, CO 80107
- Home at address 4292 Kingsbarns Dr, Elizabeth, CO 80107

Powell
$645,370
- 4 bd
- 3 ba
- 2,275 sqft
4292 Kingsbarns Dr, Elizabeth, CO 80107
- Home at address 42561 Kinloch Trl, Elizabeth, CO 80107

Tahoe
$649,990
- 4 bd
- 3 ba
- 2,767 sqft
42561 Kinloch Trl, Elizabeth, CO 80107
- Home at address 4312 Kingsbarns Dr, Elizabeth, CO 80107

Livingston
$660,330
- 3 bd
- 2 ba
- 1,936 sqft
4312 Kingsbarns Dr, Elizabeth, CO 80107
Floor plans in Spring Valley Ranch
About the builder - Century Communities

- 242communities on Jome
- 1,566homes on Jome
Neighborhood
Home address
Schools in Elizabeth School District
- Grades PK-PKPublicsinging hills preschool3.8 mi41012 madrid drivena
GreatSchools’ Summary Rating calculation is based on 4 of the school’s themed ratings, including test scores, student/academic progress, college readiness, and equity. This information should only be used as a reference. Jome is not affiliated with GreatSchools and does not endorse or guarantee this information. Please reach out to schools directly to verify all information and enrollment eligibility. Data provided by GreatSchools.org © 2025
Places of interest
Getting around
Air quality

Considering this home?
Our expert will guide your tour, in-person or virtual
Need more information?
Text or call (888) 545-5198
Financials
Let us help you find your dream home
How many bedrooms are you looking for?
Similar homes nearby
Recently added communities in this area
Nearby communities in Elizabeth
New homes in nearby cities
More New Homes in Elizabeth, CO
- Jome
- New homes search
- Colorado
- Denver Metropolitan Area
- Elbert County
- Elizabeth
- Spring Valley Ranch
- 42581 Kinloch Trl, Elizabeth, CO 80107
































