





Book your tour. Save an average of $18,473. We'll handle the rest.
We collect exclusive builder offers, book your tours, and support you from start to housewarming.
- Confirmed tours
- Get matched & compare top deals
- Expert help, no pressure
- No added fees
Estimated value based on Jome data, T&C apply
Why tour with Jome?
- No pressure toursTour at your own pace with no sales pressure
- Expert guidanceGet insights from our home buying experts
- Exclusive accessSee homes and deals not available elsewhere
Jome is featured in
- Single-Family
- Quick move-in
- $237.94/sqft
- $2,196/annual HOA
Home description
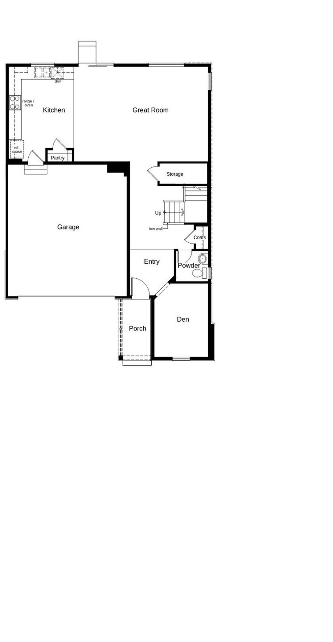
This thoughtfully designed, two-story home showcases an open floor plan with a spacious great room. The modern kitchen is perfect for everyday living and entertaining. A convenient den offers flexible space for work or relaxation. Upstairs, the primary bedroom features a walk-in closet and connecting bath that includes a shower with seat for added comfort. Upstairs, a versatile loft awaits. Enjoy the convenience of a dedicated laundry room. Additional storage is available in the crawl space. This layout balances functionality and comfort, making it an ideal place to call home.
May also be listed on the KB Home website
Information last verified by Jome: Today at 1:10 AM (February 17, 2026)
Book your tour. Save an average of $18,473. We'll handle the rest.
We collect exclusive builder offers, book your tours, and support you from start to housewarming.
- Confirmed tours
- Get matched & compare top deals
- Expert help, no pressure
- No added fees
Estimated value based on Jome data, T&C apply
Home details
- Property status:
- Move-in ready
- Neighborhood:
- Murphy Creek
- Size:
- 2,282 sqft
- Stories:
- 2
- Beds:
- 3
- Baths:
- 2.5
- Garage spaces:
- 2
Construction details
- Builder Name:
- KB Home
Home features & finishes
- Garage/Parking:
- Garage

Get a consultation with our New Homes Expert
- See how your home builds wealth
- Plan your home-buying roadmap
- Discover hidden gems

Community details
Murphy Creek Classic
by KB Home, Aurora, CO
- 3 homes
- 4 plans
- 1,382 - 2,513 sqft
View Murphy Creek Classic details
More homes in Murphy Creek Classic
- Home at address 1642 S Gold Bug Wy, Aurora, CO 80019

Home
$592,990
- 4 bd
- 2.5 ba
- 2,513 sqft
1642 S Gold Bug Wy, Aurora, CO 80019
- Home at address 1642 S Gold Bug Wy, Aurora, CO 80018

Home
$592,990
- 4 bd
- 2.5 ba
- 2,513 sqft
1642 S Gold Bug Wy, Aurora, CO 80018
Floor plans in Murphy Creek Classic
About the builder - KB Home
Neighborhood
Home address
- Neighborhood:
- Murphy Creek
- City:
- Aurora
Schools in Adams-Arapahoe School District 28J
GreatSchools’ Summary Rating calculation is based on 4 of the school’s themed ratings, including test scores, student/academic progress, college readiness, and equity. This information should only be used as a reference. Jome is not affiliated with GreatSchools and does not endorse or guarantee this information. Please reach out to schools directly to verify all information and enrollment eligibility. Data provided by GreatSchools.org © 2025
Places of interest
Getting around
Air quality
Noise level
A Soundscore™ rating is a number between 50 (very loud) and 100 (very quiet) that tells you how loud a location is due to environmental noise.

Considering this home?
Our expert will guide your tour, in-person or virtual
Need more information?
Text or call (888) 488-9243
Financials
Estimated monthly payment
Let us help you find your dream home
How many bedrooms are you looking for?
Similar homes nearby
Recently added communities in this area
Nearby communities in Aurora
New homes in nearby cities
More New Homes in Aurora, CO
- Jome
- New homes search
- Colorado
- Denver Metropolitan Area
- Arapahoe County
- Aurora
- Murphy Creek Classic
- 1662 S Gold Bug Wy, Aurora, CO 80019






























