













Book your tour. Save an average of $18,473. We'll handle the rest.
We collect exclusive builder offers, book your tours, and support you from start to housewarming.
- Confirmed tours
- Get matched & compare top deals
- Expert help, no pressure
- No added fees
Estimated value based on Jome data, T&C apply
Why tour with Jome?
- No pressure toursTour at your own pace with no sales pressure
- Expert guidanceGet insights from our home buying experts
- Exclusive accessSee homes and deals not available elsewhere
Jome is featured in
- Single-Family
- Quick move-in
- $292.51/sqft
- $1,958.16/annual HOA
Builder deals available
Conventional 30 Year Fixed
$117,570 est. value- Fixed rate from 3.99% with 4.034% APR, 20% down payment, and 740 credit score
Deals may change and are not guaranteed. Some deals apply to specific homes or plans. Not a financing offer. Eligibility varies by lender. Please verify details.
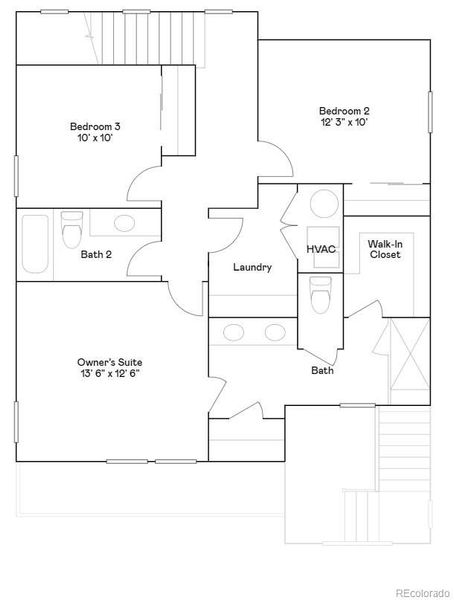
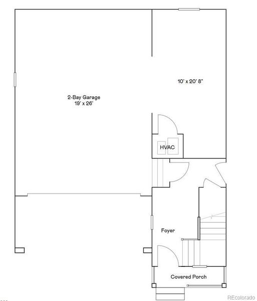
Home description
*** This home eligible for special financing - Terms and conditions apply - Ask for details!***Welcome to the Skyline Collection by Lennar, offering modern design paired with everyday convenience. This well-designed three-story home features a spacious two-bay garage on the entry level with additional storage space for added functionality. The second floor showcases an open-concept layout that seamlessly connects the kitchen, dining area, and Great Room—ideal for both daily living and entertaining. Step outside to a private deck that extends the living space and provides a perfect setting for relaxing or hosting guests. The top floor includes all three bedrooms, highlighted by a private owner’s suite with an en-suite bath and walk-in closet. A conveniently located laundry room adds ease to daily routines. Ideally situated near Denver Premium Outlets for shopping and dining, and Trail Winds Recreation Center for fitness and recreation, this home offers comfort, convenience, and an exceptional location. Estimated Completion is June 2026.
Coldwell Banker Realty 56, MLS REC7769619
May also be listed on the Lennar website
Information last verified by Jome: Today at 10:10 AM (February 27, 2026)
Book your tour. Save an average of $18,473. We'll handle the rest.
We collect exclusive builder offers, book your tours, and support you from start to housewarming.
- Confirmed tours
- Get matched & compare top deals
- Expert help, no pressure
- No added fees
Estimated value based on Jome data, T&C apply
Home details
- Property status:
- Move-in ready
- Collection:
- Parterre: The Skyline
- Lot size (acres):
- 0.07
- Size:
- 1,868 sqft
- Stories:
- 3+
- Beds:
- 3
- Baths:
- 1
- Half baths:
- 1
- Garage spaces:
- 2
Construction details
- Builder Name:
- Lennar
- Completion Date:
- June, 2026
- Year Built:
- 2024
- Roof:
- Composition Roofing
Home features & finishes
- Construction Materials:
- FrameStone
- Cooling:
- Central Air
- Flooring:
- Vinyl FlooringCarpet Flooring
- Garage/Parking:
- GarageAttached Garage
- Interior Features:
- Ceiling-HighWalk-In ClosetFoyerPantryBreakfast Bar
- Kitchen:
- DishwasherMicrowave OvenOvenRefrigeratorDisposalQuartz countertopKitchen Island
- Laundry facilities:
- Laundry Facilities In UnitUtility/Laundry Room
- Property amenities:
- BasementBalconyDeckPorch
- Rooms:
- KitchenNookPowder RoomFamily RoomBreakfast AreaOpen Concept FloorplanPrimary Bedroom Upstairs
- Security system:
- Smoke DetectorCarbon Monoxide Detector
Room details
Dining Room
Living Room
Bedroom 1

Get a consultation with our New Homes Expert
- See how your home builds wealth
- Plan your home-buying roadmap
- Discover hidden gems
Utility information
- Heating:
- Forced Air Heating
- Utilities:
- Electricity Available, Phone Available, Cable Available, High Speed Internet Access

Community details
Parterre at Parterre
by Lennar, Thornton, CO
- 17 homes
- 13 plans
- 1,099 - 2,235 sqft
View Parterre details
More homes in Parterre
- Home at address 6838 E 149Th Ave, Unit 1, Thornton, CO 80602

306
Parterre: The Parkside
$442,400
- 3 bd
- 1.5 ba
- 1,673 sqft
6838 E 149Th Ave, Unit 1, Thornton, CO 80602
- Home at address 6838 E 149Th Ave, Unit 5, Thornton, CO 80602

305
Parterre: The Parkside
$455,400
- 3 bd
- 1.5 ba
- 1,529 sqft
6838 E 149Th Ave, Unit 5, Thornton, CO 80602
- Home at address 6888 E 149Th Ave, Unit 1, Thornton, CO 80602

306
Parterre: The Parkside
$492,400
- 3 bd
- 2.5 ba
- 1,673 sqft
6888 E 149Th Ave, Unit 1, Thornton, CO 80602
- Home at address 6871 Arbor Blvd E, Thornton, CO 80602

Spire
Parterre: Paired Homes
$509,900
- 3 bd
- 2.5 ba
- 1,825 sqft
6871 Arbor Blvd E, Thornton, CO 80602
- Home at address 6871 Arbor Blvd E, Thornton, CO 80602

Home
$509,900
- 3 bd
- 1.5 ba
- 1,825 sqft
6871 Arbor Blvd E, Thornton, CO 80602
- Home at address 6881 Arbor Blvd E, Thornton, CO 80602

Ascent
Parterre: Paired Homes
$519,900
- 3 bd
- 2.5 ba
- 2,026 sqft
6881 Arbor Blvd E, Thornton, CO 80602
Floor plans in Parterre
About the builder - Lennar

- 1,759communities on Jome
- 6,530homes on Jome
Neighborhood
Home address
Schools in School District 27J
- Grades KG-08Publicdiscovery magnet school1.2 mi4949 e. 147th ave.na
- Grades PK-08Privatefrassati catholic academy2.9 mi3951 cottonwood lakes blvdna
GreatSchools’ Summary Rating calculation is based on 4 of the school’s themed ratings, including test scores, student/academic progress, college readiness, and equity. This information should only be used as a reference. Jome is not affiliated with GreatSchools and does not endorse or guarantee this information. Please reach out to schools directly to verify all information and enrollment eligibility. Data provided by GreatSchools.org © 2025
Places of interest
Getting around
Air quality
Noise level
A Soundscore™ rating is a number between 50 (very loud) and 100 (very quiet) that tells you how loud a location is due to environmental noise.

Considering this home?
Our expert will guide your tour, in-person or virtual
Need more information?
Text or call (888) 488-9243
Financials
Estimated monthly payment
Let us help you find your dream home
How many bedrooms are you looking for?
Similar homes nearby
Recently added communities in this area
Nearby communities in Thornton
New homes in nearby cities
More New Homes in Thornton, CO
Coldwell Banker Realty 56, MLS REC7769619
The content relating to real estate for sale in this Web site comes in part from the Internet Data eXchange (“IDX”) program of METROLIST, INC., DBA RECOLORADO® Real estate listings held by brokers other than NewHomesMate LLC, DBA Jome are marked with the IDX Logo. This information is being provided for the consumers’ personal, non-commercial use and may not be used for any other purpose. All information subject to change and should be independently verified. This publication is designed to provide information with regard to the subject matter covered. It is displayed with the understanding that the publisher and authors are not engaged in rendering real estate, legal, accounting, tax, or other professional services and that the publisher and authors are not offering such advice in this publication. If real estate, legal, or other expert assistance is required, the services of a competent, professional person should be sought. The information contained in this publication is subject to change without notice. METROLIST, INC., DBA RECOLORADO MAKES NO WARRANTY OF ANY KIND WITH REGARD TO THIS MATERIAL, INCLUDING, BUT NOT LIMITED TO, THE IMPLIED WARRANTIES OF MERCHANTABILITY AND FITNESS FOR A PARTICULAR PURPOSE. METROLIST, INC., DBA RECOLORADO SHALL NOT BE LIABLE FOR ERRORS CONTAINED HEREIN OR FOR ANY DAMAGES IN CONNECTION WITH THE FURNISHING, PERFORMANCE, OR USE OF THIS MATERIAL. PUBLISHER'S NOTICE: All real estate advertised herein is subject to the Federal Fair Housing Act and the Colorado Fair Housing Act, which Acts make it illegal to make or publish any advertisement that indicates any preference, limitation, or discrimination based on race, color, religion, sex, handicap, familial status, or national origin. METROLIST, INC., DBA RECOLORADO will not knowingly accept any advertising for real estate that is in violation of the law. All persons are hereby informed that all dwellings advertised are available on an equal opportunity basis. © 2025 METROLIST, INC., DBA RECOLORADO® - All Rights Reserved. 6455 S. Yosemite St., Suite 500, Greenwood Village, CO 80111 USA. ALL RIGHTS RESERVED WORLDWIDE. No part of this publication may be reproduced, adapted, translated, stored in a retrieval system or transmitted in any form or by any means, electronic, mechanical, photocopying, recording, or otherwise, without the prior written permission of the publisher. The information contained herein including but not limited to all text, photographs, digital images, virtual tours, may be seeded and monitored for protection and tracking.
Read moreLast checked Feb 27, 10:00 am
- Jome
- New homes search
- Colorado
- Denver Metropolitan Area
- Adams County
- Thornton
- Parterre
- Parterre: The Skyline
- 6974 E 149Th Pl, Thornton, CO 80602































