









Book your tour. Save an average of $18,473. We'll handle the rest.
We collect exclusive builder offers, book your tours, and support you from start to housewarming.
- Confirmed tours
- Get matched & compare top deals
- Expert help, no pressure
- No added fees
Estimated value based on Jome data, T&C apply









- 4 bd
- 2.5 ba
- 3,152 sqft
2162 S Grant St, Denver, CO 80210
Why tour with Jome?
- No pressure toursTour at your own pace with no sales pressure
- Expert guidanceGet insights from our home buying experts
- Exclusive accessSee homes and deals not available elsewhere
Jome is featured in
- Duplex
- Quick move-in
- $364.85/sqft
- 0.07-acre lot
Home description
New construction duplex offering two thoughtfully designed residences in the heart of South Broadway. Striking architecture sets the tone with vertical wood siding, a curated palette, and a sculptural slat façade that delivers strong curb presence while maintaining an inviting, organic design. Covered front patios and multiple indoor/outdoor connections support year-round living and entertaining.
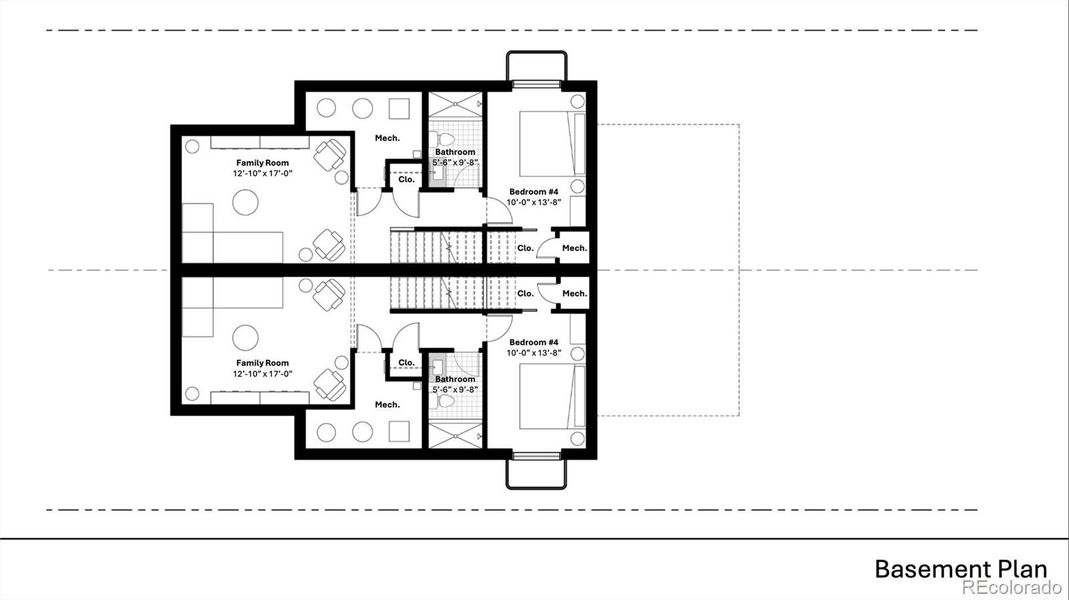
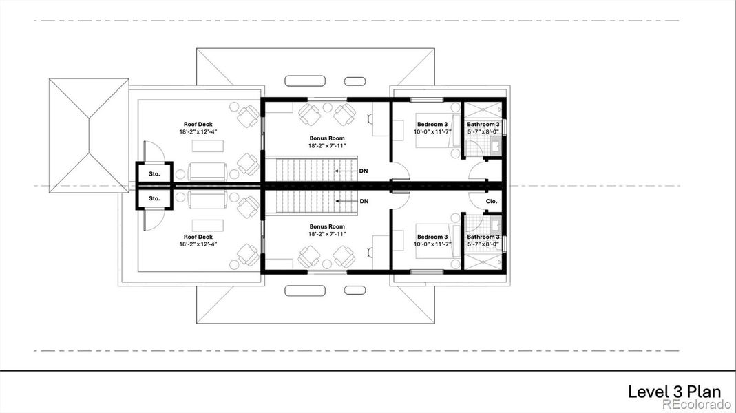
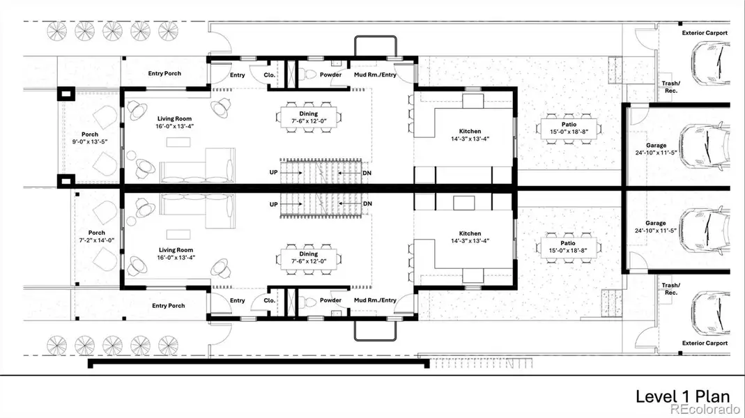
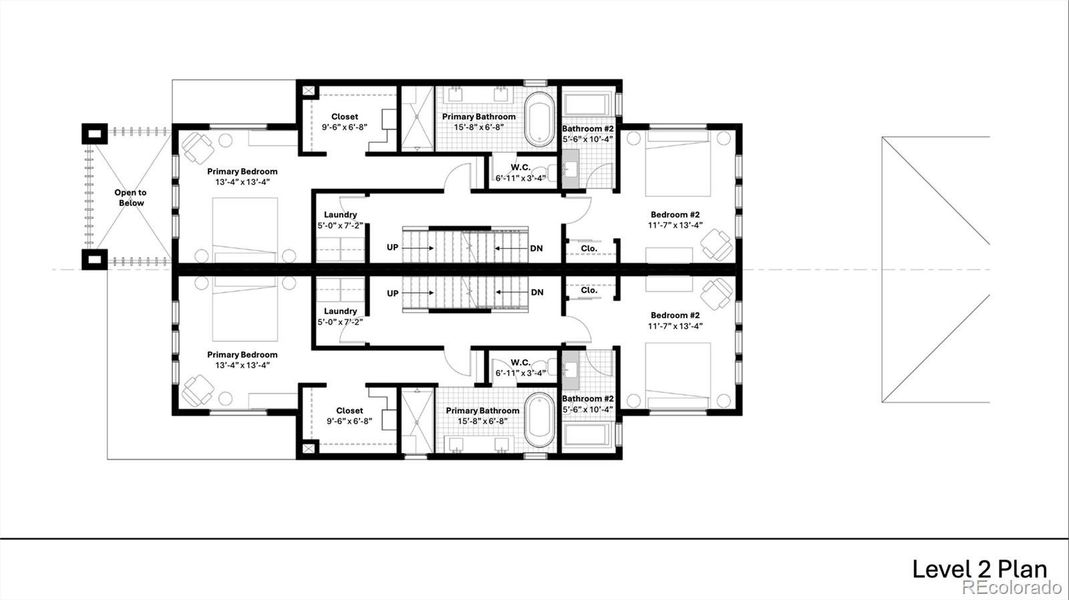
The main level features an open layout with defined dining space, eat-in kitchen bar seating, and direct outdoor access for al fresco dining. Kitchens are inspired by Scandinavian design principles with warm stone countertops, solid slab backsplashes, clean-lined millwork, stainless steel appliances, induction cooking, integrated hood design, and built-in microwave. Soft neutral tones, layered architectural lighting, and expansive windows create a calm, light-filled interior. A mudroom adds everyday functionality, while the living area is centered around a recessed modern electric fireplace. The upper level includes a spacious primary suite with a large walk-in closet and spa-style 5-piece bath featuring vertical tile, natural textures, and refined fixtures. A secondary bedroom with an en-suite full bath and upper-level laundry complete this floor. The third level offers a private suite and bonus room with direct access to the rooftop deck, ideal for flexible living, work-from-home space, or entertaining. The finished basement expands the footprint with a family room, fourth bedroom, and 3/4 bath. Each residence includes two private off-street parking spaces. Material selections emphasize soft woods, warm neutrals, and natural stone, hallmarks of Nordic architecture focused on function, comfort, and quiet luxury.
Compass - Denver, MLS REC9284421
Information last verified by Jome: Yesterday at 10:01 AM (April 2, 2026)
Book your tour. Save an average of $18,473. We'll handle the rest.
We collect exclusive builder offers, book your tours, and support you from start to housewarming.
- Confirmed tours
- Get matched & compare top deals
- Expert help, no pressure
- No added fees
Estimated value based on Jome data, T&C apply
Home details
- Property status:
- Move-in ready
- Neighborhood:
- Rosedale
- Lot size (acres):
- 0.07
- Size:
- 3,152 sqft
- Beds:
- 4
- Baths:
- 2
- Half baths:
- 1
- Fence:
- Partial Fence
Construction details
- Year Built:
- 2026
- Roof:
- Composition Roofing
Home features & finishes
- Construction Materials:
- Frame
- Cooling:
- Central Air
- Flooring:
- Wood Flooring
- Interior Features:
- Walk-In ClosetJack and Jill Bathroom
- Kitchen:
- DishwasherOvenRefrigeratorDisposal
- Laundry facilities:
- Laundry Facilities In Unit
- Property amenities:
- Basement
- Rooms:
- KitchenOpen Concept Floorplan
Room details
Kitchen
Dining Room
Living Room

Get a consultation with our New Homes Expert
- See how your home builds wealth
- Plan your home-buying roadmap
- Discover hidden gems
Utility information
- Heating:
- Forced Air Heating
Neighborhood
Home address
Schools in Denver County School District 1
GreatSchools’ Summary Rating calculation is based on 4 of the school’s themed ratings, including test scores, student/academic progress, college readiness, and equity. This information should only be used as a reference. Jome is not affiliated with GreatSchools and does not endorse or guarantee this information. Please reach out to schools directly to verify all information and enrollment eligibility. Data provided by GreatSchools.org © 2025
Places of interest
Getting around
6 nearby routes: 3 bus, 3 rail, 0 otherAir quality
Noise level
A Soundscore™ rating is a number between 50 (very loud) and 100 (very quiet) that tells you how loud a location is due to environmental noise.
Natural hazards risk
Provided by FEMA

Considering this home?
Our expert will guide your tour, in-person or virtual
Need more information?
Text or call (888) 545-5198
Financials
Estimated monthly payment
Let us help you find your dream home
How many bedrooms are you looking for?
Similar homes nearby
Recently added communities in this area
Nearby communities in Denver
New homes in nearby cities
More New Homes in Denver, CO
Compass - Denver, MLS REC9284421
The content relating to real estate for sale in this Web site comes in part from the Internet Data eXchange (“IDX”) program of METROLIST, INC., DBA RECOLORADO® Real estate listings held by brokers other than NewHomesMate LLC, DBA Jome are marked with the IDX Logo. This information is being provided for the consumers’ personal, non-commercial use and may not be used for any other purpose. All information subject to change and should be independently verified. This publication is designed to provide information with regard to the subject matter covered. It is displayed with the understanding that the publisher and authors are not engaged in rendering real estate, legal, accounting, tax, or other professional services and that the publisher and authors are not offering such advice in this publication. If real estate, legal, or other expert assistance is required, the services of a competent, professional person should be sought. The information contained in this publication is subject to change without notice. METROLIST, INC., DBA RECOLORADO MAKES NO WARRANTY OF ANY KIND WITH REGARD TO THIS MATERIAL, INCLUDING, BUT NOT LIMITED TO, THE IMPLIED WARRANTIES OF MERCHANTABILITY AND FITNESS FOR A PARTICULAR PURPOSE. METROLIST, INC., DBA RECOLORADO SHALL NOT BE LIABLE FOR ERRORS CONTAINED HEREIN OR FOR ANY DAMAGES IN CONNECTION WITH THE FURNISHING, PERFORMANCE, OR USE OF THIS MATERIAL. PUBLISHER'S NOTICE: All real estate advertised herein is subject to the Federal Fair Housing Act and the Colorado Fair Housing Act, which Acts make it illegal to make or publish any advertisement that indicates any preference, limitation, or discrimination based on race, color, religion, sex, handicap, familial status, or national origin. METROLIST, INC., DBA RECOLORADO will not knowingly accept any advertising for real estate that is in violation of the law. All persons are hereby informed that all dwellings advertised are available on an equal opportunity basis. © 2025 METROLIST, INC., DBA RECOLORADO® - All Rights Reserved. 6455 S. Yosemite St., Suite 500, Greenwood Village, CO 80111 USA. ALL RIGHTS RESERVED WORLDWIDE. No part of this publication may be reproduced, adapted, translated, stored in a retrieval system or transmitted in any form or by any means, electronic, mechanical, photocopying, recording, or otherwise, without the prior written permission of the publisher. The information contained herein including but not limited to all text, photographs, digital images, virtual tours, may be seeded and monitored for protection and tracking.
Read moreLast checked Apr 3, 4:00 am
- Jome
- New homes search
- Colorado
- Denver Metropolitan Area
- Denver County
- Denver
- 2162 S Grant St, Denver, CO 80210


























