








Book your tour. Save an average of $18,473. We'll handle the rest.
We collect exclusive builder offers, book your tours, and support you from start to housewarming.
- Confirmed tours
- Get matched & compare top deals
- Expert help, no pressure
- No added fees
Estimated value based on Jome data, T&C apply



- 5 bd
- 2 ba
- 4,868 sqft
2980 Panorama Ct, Johnstown, CO 80534
Why tour with Jome?
- No pressure toursTour at your own pace with no sales pressure
- Expert guidanceGet insights from our home buying experts
- Exclusive accessSee homes and deals not available elsewhere
Jome is featured in
- Single-Family
- Under construction
- $307.11/sqft
- $1,200/annual HOA
Home description
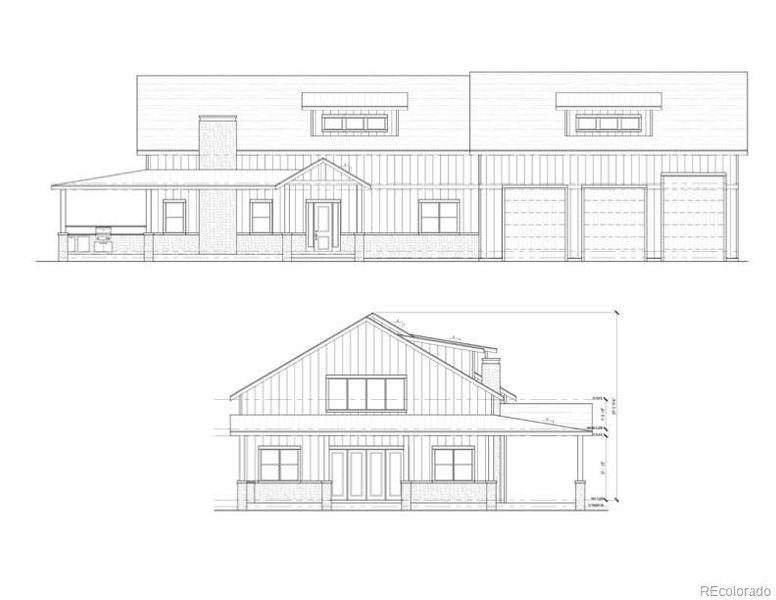
Build Your Dream Luxury Farmhouse in Pautler Farms Estates!
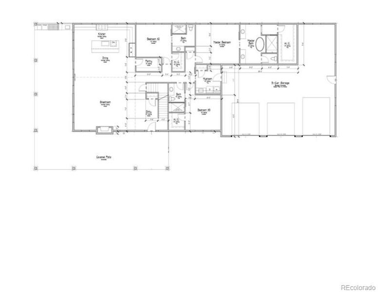
Calem Custom Homes is pleased to offer this rare opportunity to create a truly custom luxury farmhouse–style Barndominium on a spacious cul-de-sac lot in the desirable Pautler Farms community of Johnstown. The thoughtfully designed, high-end home concept features open living spaces, soaring ceilings, and expansive windows that flood the interior with natural light and showcase beautiful mountain and plains views.
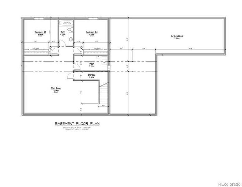
This to-be-built custom home offers endless possibilities, including possible ADA or accessibility features. The basement is partially finished and there will be crawl space with full concrete (no dirt)—ideal for clean, dry, and abundant storage. An Accessory Dwelling Unit (ADU) is allowed, approved for up to 75% of the main home, providing flexibility for multi-generational living, guests, or rental potential.
Garage and/or workshop options available: oversized attached garages up to 3,100 square feet, perfect for RVs, campers, boats, trailers, tools, and hobby space allow you to keep everything in-home and accessible.
NO Metro District taxes and city utilities—public water and sewer, natural gas, and high-speed internet. With 7 of 11 lots available, this plan is just one of many possibilities. Financing options are available. AV prep kit will be installed and there are multiple options for appliance packages. Washer and Dryer are not included.
The opportunities here are truly endless—bring your vision and build a one-of-a-kind luxury home tailored to your needs.
Home Savings Realty, MLS REC5095030
Information last verified by Jome: Yesterday at 10:01 AM (March 19, 2026)
Home highlights
Book your tour. Save an average of $18,473. We'll handle the rest.
We collect exclusive builder offers, book your tours, and support you from start to housewarming.
- Confirmed tours
- Get matched & compare top deals
- Expert help, no pressure
- No added fees
Estimated value based on Jome data, T&C apply
Home details
- Property status:
- Under construction
- Lot size (acres):
- 0.70
- Size:
- 4,868 sqft
- Stories:
- 2
- Beds:
- 5
- Baths:
- 2
- Garage spaces:
- 4
- Facing direction:
- South
Construction details
- Year Built:
- 2026
- Roof:
- Metal Roofing, Composition Roofing
Home features & finishes
- Construction Materials:
- Frame
- Cooling:
- Ceiling Fan(s)Central Air
- Garage/Parking:
- Large Boat/RV GarageGarageAttached GarageTandem Parking
- Home amenities:
- Green Construction
- Interior Features:
- Ceiling-HighCeiling-VaultedWalk-In ClosetPantry
- Kitchen:
- DishwasherRefrigeratorDisposalQuartz countertopFreezerKitchen IslandKitchen Range
- Lighting:
- Lighting
- Property amenities:
- Cul-de-sacBasementPatioFireplacePorch
- Rooms:
- Family RoomOpen Concept Floorplan
- Security system:
- Radon DetectorSmoke DetectorCarbon Monoxide Detector
Room details
Kitchen
Dining Room
Bedroom 1

Get a consultation with our New Homes Expert
- See how your home builds wealth
- Plan your home-buying roadmap
- Discover hidden gems
Utility information
- Heating:
- Forced Air Heating
- Utilities:
- Electricity Available, Natural Gas Available, HVAC
Community amenities
- Greenbelt View
- Mountain(s) View
Neighborhood
Home address
Schools in Johnstown-Milliken School District RE-5J
GreatSchools’ Summary Rating calculation is based on 4 of the school’s themed ratings, including test scores, student/academic progress, college readiness, and equity. This information should only be used as a reference. Jome is not affiliated with GreatSchools and does not endorse or guarantee this information. Please reach out to schools directly to verify all information and enrollment eligibility. Data provided by GreatSchools.org © 2025
Places of interest
Getting around
Air quality
Natural hazards risk
Provided by FEMA

Considering this home?
Our expert will guide your tour, in-person or virtual
Need more information?
Text or call (888) 545-5198
Financials
Estimated monthly payment
Let us help you find your dream home
How many bedrooms are you looking for?
Similar homes nearby
Recently added communities in this area
Nearby communities in Johnstown
New homes in nearby cities
More New Homes in Johnstown, CO
Home Savings Realty, MLS REC5095030
The content relating to real estate for sale in this Web site comes in part from the Internet Data eXchange (“IDX”) program of METROLIST, INC., DBA RECOLORADO® Real estate listings held by brokers other than NewHomesMate LLC, DBA Jome are marked with the IDX Logo. This information is being provided for the consumers’ personal, non-commercial use and may not be used for any other purpose. All information subject to change and should be independently verified. This publication is designed to provide information with regard to the subject matter covered. It is displayed with the understanding that the publisher and authors are not engaged in rendering real estate, legal, accounting, tax, or other professional services and that the publisher and authors are not offering such advice in this publication. If real estate, legal, or other expert assistance is required, the services of a competent, professional person should be sought. The information contained in this publication is subject to change without notice. METROLIST, INC., DBA RECOLORADO MAKES NO WARRANTY OF ANY KIND WITH REGARD TO THIS MATERIAL, INCLUDING, BUT NOT LIMITED TO, THE IMPLIED WARRANTIES OF MERCHANTABILITY AND FITNESS FOR A PARTICULAR PURPOSE. METROLIST, INC., DBA RECOLORADO SHALL NOT BE LIABLE FOR ERRORS CONTAINED HEREIN OR FOR ANY DAMAGES IN CONNECTION WITH THE FURNISHING, PERFORMANCE, OR USE OF THIS MATERIAL. PUBLISHER'S NOTICE: All real estate advertised herein is subject to the Federal Fair Housing Act and the Colorado Fair Housing Act, which Acts make it illegal to make or publish any advertisement that indicates any preference, limitation, or discrimination based on race, color, religion, sex, handicap, familial status, or national origin. METROLIST, INC., DBA RECOLORADO will not knowingly accept any advertising for real estate that is in violation of the law. All persons are hereby informed that all dwellings advertised are available on an equal opportunity basis. © 2025 METROLIST, INC., DBA RECOLORADO® - All Rights Reserved. 6455 S. Yosemite St., Suite 500, Greenwood Village, CO 80111 USA. ALL RIGHTS RESERVED WORLDWIDE. No part of this publication may be reproduced, adapted, translated, stored in a retrieval system or transmitted in any form or by any means, electronic, mechanical, photocopying, recording, or otherwise, without the prior written permission of the publisher. The information contained herein including but not limited to all text, photographs, digital images, virtual tours, may be seeded and monitored for protection and tracking.
Read moreLast checked Mar 20, 10:12 am
- Jome
- New homes search
- Colorado
- Denver Metropolitan Area
- Weld County
- Johnstown
- 2980 Panorama Ct, Johnstown, CO 80534
























