



Book your tour. Save an average of $18,473. We'll handle the rest.
We collect exclusive builder offers, book your tours, and support you from start to housewarming.
- Confirmed tours
- Get matched & compare top deals
- Expert help, no pressure
- No added fees
Estimated value based on Jome data, T&C apply
- 5 bd
- 2.5 ba
- 4,602 sqft
5672 Wayfarer Cir, Firestone, CO 80504
Why tour with Jome?
- No pressure toursTour at your own pace with no sales pressure
- Expert guidanceGet insights from our home buying experts
- Exclusive accessSee homes and deals not available elsewhere
Jome is featured in
- Single-Family
- Under construction
- $194.58/sqft
- $1,980/annual HOA
Home description
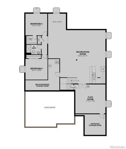
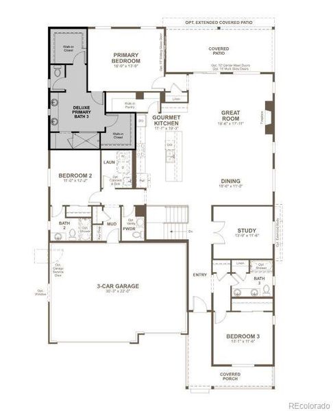
**!!PERSONALIZATION AVAILABLE!!**This expansive Powell home is ready to impress residents with its beautiful finishes and the convenience of main-floor living. Past the covered entry a generous bedroom, bath and convenient study welcomes you. The open layout leads you to the back of the home where a beautiful gourmet kitchen awaits. Beyond, the open dining room flows into the welcoming great room with a fireplace. The nearby primary suite showcases a spacious walk-in closet and a private deluxe bath. Accommodate family or guests with another secondary bedroom with an en suite bath. A convenient laundry, mudroom and powder complete the main level. If that wasn’t enough, this exceptional home includes a finished basement that boasts a wide-open, versatile rec room with a stunning wet bar, flex room, and two generous basement bedrooms with walk-in closets and shared bath.
When you purchase this home, you'll have the exciting opportunity to personalize it at our Design Center. Please note that customization choices may affect the final price.
Richmond Realty Inc, MLS REC2945278
May also be listed on the Richmond American Homes website
Information last verified by Jome: Yesterday at 10:03 AM (March 19, 2026)
Book your tour. Save an average of $18,473. We'll handle the rest.
We collect exclusive builder offers, book your tours, and support you from start to housewarming.
- Confirmed tours
- Get matched & compare top deals
- Expert help, no pressure
- No added fees
Estimated value based on Jome data, T&C apply
Home details
- Property status:
- Under construction
- Lot size (acres):
- 0.15
- Size:
- 4,602 sqft
- Stories:
- 1
- Beds:
- 5
- Baths:
- 2
- Half baths:
- 1
- Garage spaces:
- 3
- Facing direction:
- North
Construction details
- Builder Name:
- Richmond American Homes
- Year Built:
- 2025
- Roof:
- Composition Roofing
Home features & finishes
- Appliances:
- Sprinkler System
- Construction Materials:
- Frame
- Cooling:
- Central Air
- Foundation Details:
- Slab
- Garage/Parking:
- GarageAttached Garage
- Interior Features:
- Walk-In ClosetPantryWet Bar
- Kitchen:
- Kitchen Island
- Property amenities:
- BasementLandscapingPatioFireplace
- Rooms:
- Primary Bedroom On MainKitchenFamily RoomPrimary Bedroom Downstairs
- Security system:
- Radon Detector
Room details
Kitchen
Dining Room
Bedroom 1

Get a consultation with our New Homes Expert
- See how your home builds wealth
- Plan your home-buying roadmap
- Discover hidden gems
Utility information
- Heating:
- Forced Air Heating

Community details
Barefoot Lakes
by Richmond American Homes, Firestone, CO
- 9 homes
- 6 plans
- 2,611 - 6,110 sqft
View Barefoot Lakes details
More homes in Barefoot Lakes
- Home at address 5598 Tamarack Ave, Firestone, CO 80504

Hemingway
Savings$789,950
- 5 bd
- 3.5 ba
- 3,670 sqft
5598 Tamarack Ave, Firestone, CO 80504
- Home at address 5566 Tamarack Ave, Firestone, CO 80504

Dillon II
Savings$867,950
- 6 bd
- 5 ba
- 5,117 sqft
5566 Tamarack Ave, Firestone, CO 80504
- Home at address 5706 Wayfarer Cir, Firestone, CO 80504

Pinecrest
Savings$874,950
- 5 bd
- 3.5 ba
- 4,310 sqft
5706 Wayfarer Cir, Firestone, CO 80504
- Home at address 5500 Tamarack Ave, Firestone, CO 80504

Daley
Savings$887,950
- 6 bd
- 5.5 ba
- 4,800 sqft
5500 Tamarack Ave, Firestone, CO 80504
- Home at address 5528 Tamarack Ave, Firestone, CO 80504

Daley
Savings$902,950
- 6 bd
- 5.5 ba
- 4,800 sqft
5528 Tamarack Ave, Firestone, CO 80504
- Home at address 5588 Tamarack Ave, Firestone, CO 80504

Daley
Savings$942,950
- 6 bd
- 5.5 ba
- 4,800 sqft
5588 Tamarack Ave, Firestone, CO 80504
Floor plans in Barefoot Lakes
About the builder - Richmond American Homes
Neighborhood
Home address
Schools in St. Vrain Valley School District RE 1J
GreatSchools’ Summary Rating calculation is based on 4 of the school’s themed ratings, including test scores, student/academic progress, college readiness, and equity. This information should only be used as a reference. Jome is not affiliated with GreatSchools and does not endorse or guarantee this information. Please reach out to schools directly to verify all information and enrollment eligibility. Data provided by GreatSchools.org © 2025
Places of interest
Getting around
Air quality
Noise level
A Soundscore™ rating is a number between 50 (very loud) and 100 (very quiet) that tells you how loud a location is due to environmental noise.

Considering this home?
Our expert will guide your tour, in-person or virtual
Need more information?
Text or call (888) 545-5198
Financials
Estimated monthly payment
Let us help you find your dream home
How many bedrooms are you looking for?
Similar homes nearby
Recently added communities in this area
Nearby communities in Firestone
New homes in nearby cities
More New Homes in Firestone, CO
Richmond Realty Inc, MLS REC2945278
The content relating to real estate for sale in this Web site comes in part from the Internet Data eXchange (“IDX”) program of METROLIST, INC., DBA RECOLORADO® Real estate listings held by brokers other than NewHomesMate LLC, DBA Jome are marked with the IDX Logo. This information is being provided for the consumers’ personal, non-commercial use and may not be used for any other purpose. All information subject to change and should be independently verified. This publication is designed to provide information with regard to the subject matter covered. It is displayed with the understanding that the publisher and authors are not engaged in rendering real estate, legal, accounting, tax, or other professional services and that the publisher and authors are not offering such advice in this publication. If real estate, legal, or other expert assistance is required, the services of a competent, professional person should be sought. The information contained in this publication is subject to change without notice. METROLIST, INC., DBA RECOLORADO MAKES NO WARRANTY OF ANY KIND WITH REGARD TO THIS MATERIAL, INCLUDING, BUT NOT LIMITED TO, THE IMPLIED WARRANTIES OF MERCHANTABILITY AND FITNESS FOR A PARTICULAR PURPOSE. METROLIST, INC., DBA RECOLORADO SHALL NOT BE LIABLE FOR ERRORS CONTAINED HEREIN OR FOR ANY DAMAGES IN CONNECTION WITH THE FURNISHING, PERFORMANCE, OR USE OF THIS MATERIAL. PUBLISHER'S NOTICE: All real estate advertised herein is subject to the Federal Fair Housing Act and the Colorado Fair Housing Act, which Acts make it illegal to make or publish any advertisement that indicates any preference, limitation, or discrimination based on race, color, religion, sex, handicap, familial status, or national origin. METROLIST, INC., DBA RECOLORADO will not knowingly accept any advertising for real estate that is in violation of the law. All persons are hereby informed that all dwellings advertised are available on an equal opportunity basis. © 2025 METROLIST, INC., DBA RECOLORADO® - All Rights Reserved. 6455 S. Yosemite St., Suite 500, Greenwood Village, CO 80111 USA. ALL RIGHTS RESERVED WORLDWIDE. No part of this publication may be reproduced, adapted, translated, stored in a retrieval system or transmitted in any form or by any means, electronic, mechanical, photocopying, recording, or otherwise, without the prior written permission of the publisher. The information contained herein including but not limited to all text, photographs, digital images, virtual tours, may be seeded and monitored for protection and tracking.
Read moreLast checked Mar 20, 4:00 am
- Jome
- New homes search
- Colorado
- Denver Metropolitan Area
- Weld County
- Firestone
- Barefoot Lakes
- 5672 Wayfarer Cir, Firestone, CO 80504

































