



















- 3 bd
- 1.5 ba
- 1,474 sqft
2819 E 153Rd Ave, Thornton, CO 80602
- Townhouse
- $314.72/sqft
- $1,200/annual HOA
- 0.06-acre lot
New Homes for Sale Near 2819 E 153Rd Ave, Thornton, CO 80602
About this Home
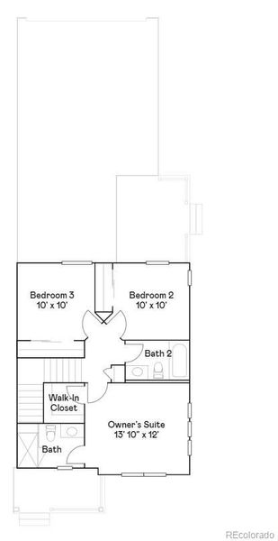
Eligible for 3.75 FHA 5/1 ARM or 3.99% fixed rate on eligible clearance homes when using builder’s preferred lender – terms and conditions apply – ask for details****Contact us today about our Special Financing - terms and conditions applyWelcome to East Creek Farm, where thoughtful design meets effortless modern living. The Lucent I is a beautifully designed two-story paired home offering the perfect blend of style and functionality. The open-concept main level showcases a chef-inspired kitchen with an oversized eat-in island, flowing seamlessly into the dining nook and spacious great room—ideal for both entertaining and everyday living. A conveniently located main-floor laundry room adds ease to daily routines. Upstairs, three inviting bedrooms include a tranquil owner’s suite featuring a spa-inspired bath and generous walk-in closet. This 100% electric home delivers energy-efficient, sustainable living in a prime location close to Denver Premium Outlets, Orchard Town Center, and the scenic trails of Thornton Trail Winds Park and Open Space. Move-In Ready — Start Your Next Chapter Today!
Coldwell Banker Realty 56, MLS REC7449188
May also be listed on the Lennar website
Information last verified by Jome: Tuesday at 4:00 PM (February 3, 2026)
Home details
- Property status:
- Sold
- Lot size (acres):
- 0.06
- Size:
- 1,474 sqft
- Stories:
- 2
- Beds:
- 3
- Baths:
- 1
- Half baths:
- 1
- Garage spaces:
- 2
Construction details
- Builder Name:
- Lennar
- Year Built:
- 2024
- Roof:
- Composition Roofing
Home features & finishes
- Construction Materials:
- FrameStone
- Cooling:
- Central Air
- Flooring:
- Vinyl FlooringCarpet Flooring
- Garage/Parking:
- GarageAttached Garage
- Interior Features:
- Walk-In ClosetFoyer
- Kitchen:
- DishwasherMicrowave OvenOvenDisposalQuartz countertopKitchen Island
- Property amenities:
- BasementPorch
- Rooms:
- KitchenOpen Concept Floorplan
Room details
Dining Room
Bedroom 1
Great Room
Utility information
- Utilities:
- Electricity Available
About the builder - Lennar

- 1,797communities on Jome
- 6,755homes on Jome
Neighborhood
Home address
Schools in Adams 12 Five Star Schools
- Grades PK-PKPublicbright horizons preschool2.6 mi5321 e 136th avena
GreatSchools’ Summary Rating calculation is based on 4 of the school’s themed ratings, including test scores, student/academic progress, college readiness, and equity. This information should only be used as a reference. Jome is not affiliated with GreatSchools and does not endorse or guarantee this information. Please reach out to schools directly to verify all information and enrollment eligibility. Data provided by GreatSchools.org © 2025
Places of interest
Getting around
Air quality
Noise level
A Soundscore™ rating is a number between 50 (very loud) and 100 (very quiet) that tells you how loud a location is due to environmental noise.
Natural hazards risk
Provided by FEMA
Financials
Nearby communities in Thornton
Recently added communities in this area
Other Builders in Thornton, CO
Nearby sold homes
New homes in nearby cities
More New Homes in Thornton, CO
Coldwell Banker Realty 56, MLS REC7449188
The content relating to real estate for sale in this Web site comes in part from the Internet Data eXchange (“IDX”) program of METROLIST, INC., DBA RECOLORADO® Real estate listings held by brokers other than NewHomesMate LLC, DBA Jome are marked with the IDX Logo. This information is being provided for the consumers’ personal, non-commercial use and may not be used for any other purpose. All information subject to change and should be independently verified. This publication is designed to provide information with regard to the subject matter covered. It is displayed with the understanding that the publisher and authors are not engaged in rendering real estate, legal, accounting, tax, or other professional services and that the publisher and authors are not offering such advice in this publication. If real estate, legal, or other expert assistance is required, the services of a competent, professional person should be sought. The information contained in this publication is subject to change without notice. METROLIST, INC., DBA RECOLORADO MAKES NO WARRANTY OF ANY KIND WITH REGARD TO THIS MATERIAL, INCLUDING, BUT NOT LIMITED TO, THE IMPLIED WARRANTIES OF MERCHANTABILITY AND FITNESS FOR A PARTICULAR PURPOSE. METROLIST, INC., DBA RECOLORADO SHALL NOT BE LIABLE FOR ERRORS CONTAINED HEREIN OR FOR ANY DAMAGES IN CONNECTION WITH THE FURNISHING, PERFORMANCE, OR USE OF THIS MATERIAL. PUBLISHER'S NOTICE: All real estate advertised herein is subject to the Federal Fair Housing Act and the Colorado Fair Housing Act, which Acts make it illegal to make or publish any advertisement that indicates any preference, limitation, or discrimination based on race, color, religion, sex, handicap, familial status, or national origin. METROLIST, INC., DBA RECOLORADO will not knowingly accept any advertising for real estate that is in violation of the law. All persons are hereby informed that all dwellings advertised are available on an equal opportunity basis. © 2025 METROLIST, INC., DBA RECOLORADO® - All Rights Reserved. 6455 S. Yosemite St., Suite 500, Greenwood Village, CO 80111 USA. ALL RIGHTS RESERVED WORLDWIDE. No part of this publication may be reproduced, adapted, translated, stored in a retrieval system or transmitted in any form or by any means, electronic, mechanical, photocopying, recording, or otherwise, without the prior written permission of the publisher. The information contained herein including but not limited to all text, photographs, digital images, virtual tours, may be seeded and monitored for protection and tracking.
Read moreLast checked Mar 20, 4:00 pm
- Jome
- New homes search
- Colorado
- Denver Metropolitan Area
- Adams County
- Thornton
- 2819 E 153Rd Ave, Thornton, CO 80602




















































