














Book your tour. Save an average of $18,473. We'll handle the rest.
- Confirmed tours
- Get matched & compare top deals
- Expert help, no pressure
- No added fees
Estimated value based on Jome data, T&C apply























- 3 bd
- 3.5 ba
- 1,867 sqft
9195 Pierce St, Unit 3, Westminster, CO 80021
Why tour with Jome?
- No pressure toursTour at your own pace with no sales pressure
- Expert guidanceGet insights from our home buying experts
- Exclusive accessSee homes and deals not available elsewhere
Jome is featured in
- Townhouse
- Quick move-in
- $303.32/sqft
- $1,800/annual HOA
Home description
Model Home Now Open – Greenlawn Towns by Montano Homes!
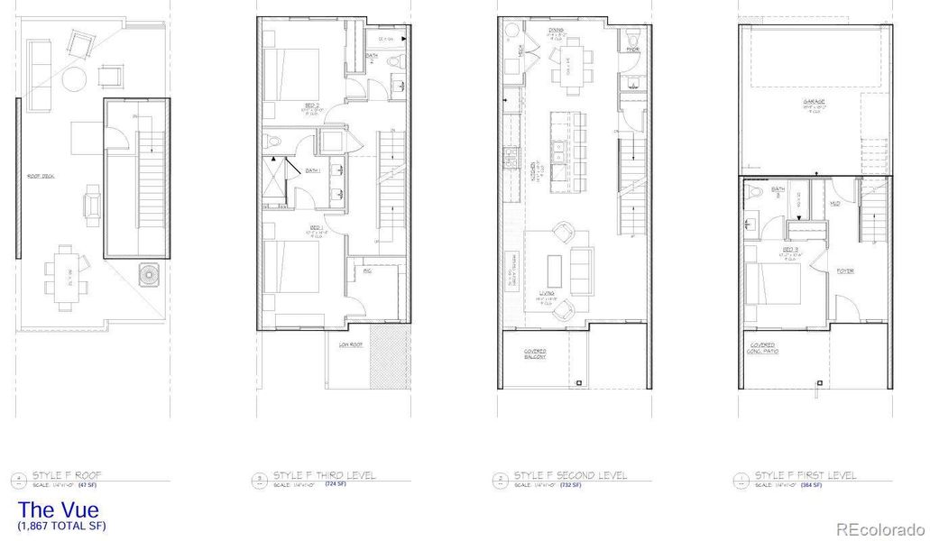
The Vue plan is an all-electric townhome at the drywall stage, featuring 3 bedrooms, 4 bathrooms, amazing rooftop deck, a private entry-level suite or office, upper-level laundry, open-concept living, primary suite with walk-in closet and spa-style bath, optional gourmet kitchen, EV-ready 2-car garage, and 725 sq. ft. of outdoor living.
Customize with designer curated finish packages. Special financing options and exclusive launch pricing available through the builder. Walkable to trails, shops, dining, and Downtown Westminster. Easy commute to Denver or Boulder via Hwy 36. Seller is builder and licensed broker.
Model Home Hours:
Monday 10AM–5PM, Tuesday–Wednesday Closed (By Appointment), Thursday–Saturday 10AM–5PM, Sunday 11AM–5PM
Photos shown are of the model home; actual home may vary.
https://my.matterport.com/show/?m=6ryo5Yqzjdz&mls=1
Listed price reflects base price only. Final price subject to buyer selections and upgrades.
Montano Properties, MLS REC7717805
May also be listed on the Montano Homes website
Information last verified by Jome: Yesterday at 10:05 AM (February 1, 2026)
Book your tour. Save an average of $18,473. We'll handle the rest.
We collect exclusive builder offers, book your tours, and support you from start to housewarming.
- Confirmed tours
- Get matched & compare top deals
- Expert help, no pressure
- No added fees
Estimated value based on Jome data, T&C apply
Home details
- Property status:
- Move-in ready
- Lot size (acres):
- 0.02
- Size:
- 1,867 sqft
- Stories:
- 3+
- Beds:
- 3
- Baths:
- 3
- Half baths:
- 1
- Garage spaces:
- 2
Construction details
- Builder Name:
- Montano Homes
- Year Built:
- 2026
- Roof:
- Composition Roofing
Home features & finishes
- Construction Materials:
- Brick
- Cooling:
- Central Air
- Flooring:
- Vinyl Flooring
- Garage/Parking:
- GarageAttached Garage
- Home amenities:
- Green Construction
- Property amenities:
- Private RooftopBalconyDeckPatioPorch

Get a consultation with our New Homes Expert
- See how your home builds wealth
- Plan your home-buying roadmap
- Discover hidden gems
Utility information
- Heating:
- Forced Air Heating
- Utilities:
- HVAC
About the builder - Montano Homes
Neighborhood
Home address
- City:
- Westminster
- County:
- Jefferson
- Zip Code:
- 80021
Schools in Jefferson County School District R-1
GreatSchools’ Summary Rating calculation is based on 4 of the school’s themed ratings, including test scores, student/academic progress, college readiness, and equity. This information should only be used as a reference. Jome is not affiliated with GreatSchools and does not endorse or guarantee this information. Please reach out to schools directly to verify all information and enrollment eligibility. Data provided by GreatSchools.org © 2025
Places of interest
Getting around
2 nearby routes: 2 bus, 0 rail, 0 otherAir quality
Natural hazards risk
Provided by FEMA

Considering this home?
Our expert will guide your tour, in-person or virtual
Need more information?
Text or call (888) 486-2818
Financials
Estimated monthly payment
Let us help you find your dream home
How many bedrooms are you looking for?
Similar homes nearby
Recently added communities in this area
Nearby communities in Westminster
New homes in nearby cities
More New Homes in Westminster, CO
Montano Properties, MLS REC7717805
The content relating to real estate for sale in this Web site comes in part from the Internet Data eXchange (“IDX”) program of METROLIST, INC., DBA RECOLORADO® Real estate listings held by brokers other than NewHomesMate LLC, DBA Jome are marked with the IDX Logo. This information is being provided for the consumers’ personal, non-commercial use and may not be used for any other purpose. All information subject to change and should be independently verified. This publication is designed to provide information with regard to the subject matter covered. It is displayed with the understanding that the publisher and authors are not engaged in rendering real estate, legal, accounting, tax, or other professional services and that the publisher and authors are not offering such advice in this publication. If real estate, legal, or other expert assistance is required, the services of a competent, professional person should be sought. The information contained in this publication is subject to change without notice. METROLIST, INC., DBA RECOLORADO MAKES NO WARRANTY OF ANY KIND WITH REGARD TO THIS MATERIAL, INCLUDING, BUT NOT LIMITED TO, THE IMPLIED WARRANTIES OF MERCHANTABILITY AND FITNESS FOR A PARTICULAR PURPOSE. METROLIST, INC., DBA RECOLORADO SHALL NOT BE LIABLE FOR ERRORS CONTAINED HEREIN OR FOR ANY DAMAGES IN CONNECTION WITH THE FURNISHING, PERFORMANCE, OR USE OF THIS MATERIAL. PUBLISHER'S NOTICE: All real estate advertised herein is subject to the Federal Fair Housing Act and the Colorado Fair Housing Act, which Acts make it illegal to make or publish any advertisement that indicates any preference, limitation, or discrimination based on race, color, religion, sex, handicap, familial status, or national origin. METROLIST, INC., DBA RECOLORADO will not knowingly accept any advertising for real estate that is in violation of the law. All persons are hereby informed that all dwellings advertised are available on an equal opportunity basis. © 2025 METROLIST, INC., DBA RECOLORADO® - All Rights Reserved. 6455 S. Yosemite St., Suite 500, Greenwood Village, CO 80111 USA. ALL RIGHTS RESERVED WORLDWIDE. No part of this publication may be reproduced, adapted, translated, stored in a retrieval system or transmitted in any form or by any means, electronic, mechanical, photocopying, recording, or otherwise, without the prior written permission of the publisher. The information contained herein including but not limited to all text, photographs, digital images, virtual tours, may be seeded and monitored for protection and tracking.
Read moreLast checked Feb 2, 4:00 pm
- Jome
- New homes search
- Colorado
- Denver Metropolitan Area
- Jefferson County
- Westminster
- 9195 Pierce St, Unit 3, Westminster, CO 80021



























