









Book your tour. Save an average of $18,473. We'll handle the rest.
We collect exclusive builder offers, book your tours, and support you from start to housewarming.
- Confirmed tours
- Get matched & compare top deals
- Expert help, no pressure
- No added fees
Estimated value based on Jome data, T&C apply





















Why tour with Jome?
- No pressure toursTour at your own pace with no sales pressure
- Expert guidanceGet insights from our home buying experts
- Exclusive accessSee homes and deals not available elsewhere
Jome is featured in
- Single-Family
- Quick move-in
- $265.66/sqft
- $780/annual HOA
Home description
What's Special: Mountain View | East Facing Lot | Large Kitchen Island | Popular Plan.
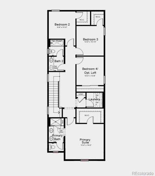
New Construction - Ready Now! Built by America's Most Trusted Homebuilder. Welcome to the Aurora at 2065 Barnwood Drive in Farmlore! Step inside this popular floor plan where the front entry opens to a bright, open-concept great room, dining area, and spacious kitchen with a large island, nearby powder room, and outdoor patio just beyond. Upstairs, the private primary suite offers a relaxing retreat, while three additional bedrooms share a full bath with a separate water closet—perfect for busy mornings. A convenient laundry room completes the second floor. Welcome to Farmlore, a vibrant new community in the heart of Brighton. Enjoy suburban charm with quick access to downtown, Prairie Center, and Denver. Planned amenities include three parks, a rec center with pool, and a restored farmhouse gathering space, plus 11+ miles of trails and easy access to Barr Lake State Park. Additional Highlights Include: Outdoor living, and additional sink at bath 2.
RE/MAX Professionals, MLS REC6277560
May also be listed on the Taylor Morrison website
Information last verified by Jome: Yesterday at 10:10 AM (April 2, 2026)
Home highlights
Restored prairie ecosystem near Denver with mountain views, bison herds, and miles of peaceful nature trails.
Book your tour. Save an average of $18,473. We'll handle the rest.
We collect exclusive builder offers, book your tours, and support you from start to housewarming.
- Confirmed tours
- Get matched & compare top deals
- Expert help, no pressure
- No added fees
Estimated value based on Jome data, T&C apply
Home details
- Property status:
- Move-in ready
- Lot size (acres):
- 0.08
- Size:
- 1,803 sqft
- Stories:
- 2
- Beds:
- 4
- Baths:
- 2
- Half baths:
- 1
- Garage spaces:
- 2
- Fence:
- Partial Fence
- Facing direction:
- East
Construction details
- Builder Name:
- Taylor Morrison
- Year Built:
- 2025
- Roof:
- Composition Roofing
Home features & finishes
- Appliances:
- Water SoftenerSprinkler System
- Construction Materials:
- Stone
- Cooling:
- Central Air
- Flooring:
- Laminate FlooringVinyl FlooringCarpet Flooring
- Foundation Details:
- Slab
- Garage/Parking:
- GarageAttached Garage
- Interior Features:
- Ceiling-HighWalk-In ClosetFoyerPantryLoft
- Kitchen:
- DishwasherMicrowave OvenOvenDisposalGas CooktopKitchen IslandKitchen Range
- Laundry facilities:
- Laundry Facilities In UnitDryerWasherUtility/Laundry Room
- Lighting:
- Lighting
- Pets:
- Pets Allowed
- Property amenities:
- Bathtub in primaryPatioFireplaceYardSmart Home SystemPorch
- Rooms:
- Flex RoomKitchenOffice/StudyGuest RoomDining RoomFamily RoomOpen Concept FloorplanPrimary Bedroom Upstairs
- Security system:
- Smoke DetectorCarbon Monoxide Detector
Room details
Bedroom 1
Great Room

Get a consultation with our New Homes Expert
- See how your home builds wealth
- Plan your home-buying roadmap
- Discover hidden gems
Utility information
- Heating:
- Heat Pump, Water Heater
- Utilities:
- Electricity Available, Natural Gas Available, Phone Available

Community details
Farmlore
by Taylor Morrison, Brighton, CO
- 7 homes
- 4 plans
- 1,606 - 2,091 sqft
View Farmlore details
More homes in Farmlore
- Home at address 1177 Prospect Aly, Brighton, CO 80601

Aurora
$478,990
- 4 bd
- 2.5 ba
- 1,803 sqft
1177 Prospect Aly, Brighton, CO 80601
- Home at address 2095 Generations Aly, Brighton, CO 80601

Aurora
$508,399
- 4 bd
- 2.5 ba
- 1,803 sqft
2095 Generations Aly, Brighton, CO 80601
- Home at address 2089 Barnwood Dr, Brighton, CO 80601

Stella
$513,049
- 4 bd
- 2.5 ba
- 1,951 sqft
2089 Barnwood Dr, Brighton, CO 80601
- Home at address 1217 Prospect Aly, Brighton, CO 80601

Stella
Savings$526,949
- 4 bd
- 2.5 ba
- 1,951 sqft
1217 Prospect Aly, Brighton, CO 80601
Floor plans in Farmlore
About the builder - Taylor Morrison

- 313communities on Jome
- 1,424homes on Jome
Neighborhood
Home address
Schools in School District 27J
GreatSchools’ Summary Rating calculation is based on 4 of the school’s themed ratings, including test scores, student/academic progress, college readiness, and equity. This information should only be used as a reference. Jome is not affiliated with GreatSchools and does not endorse or guarantee this information. Please reach out to schools directly to verify all information and enrollment eligibility. Data provided by GreatSchools.org © 2025
Places of interest
Getting around
2 nearby routes: 2 bus, 0 rail, 0 otherAir quality
Noise level
A Soundscore™ rating is a number between 50 (very loud) and 100 (very quiet) that tells you how loud a location is due to environmental noise.

Considering this home?
Our expert will guide your tour, in-person or virtual
Need more information?
Text or call (888) 545-5198
Financials
Estimated monthly payment
Let us help you find your dream home
How many bedrooms are you looking for?
Similar homes nearby
Recently added communities in this area
Nearby communities in Brighton
New homes in nearby cities
More New Homes in Brighton, CO
RE/MAX Professionals, MLS REC6277560
The content relating to real estate for sale in this Web site comes in part from the Internet Data eXchange (“IDX”) program of METROLIST, INC., DBA RECOLORADO® Real estate listings held by brokers other than NewHomesMate LLC, DBA Jome are marked with the IDX Logo. This information is being provided for the consumers’ personal, non-commercial use and may not be used for any other purpose. All information subject to change and should be independently verified. This publication is designed to provide information with regard to the subject matter covered. It is displayed with the understanding that the publisher and authors are not engaged in rendering real estate, legal, accounting, tax, or other professional services and that the publisher and authors are not offering such advice in this publication. If real estate, legal, or other expert assistance is required, the services of a competent, professional person should be sought. The information contained in this publication is subject to change without notice. METROLIST, INC., DBA RECOLORADO MAKES NO WARRANTY OF ANY KIND WITH REGARD TO THIS MATERIAL, INCLUDING, BUT NOT LIMITED TO, THE IMPLIED WARRANTIES OF MERCHANTABILITY AND FITNESS FOR A PARTICULAR PURPOSE. METROLIST, INC., DBA RECOLORADO SHALL NOT BE LIABLE FOR ERRORS CONTAINED HEREIN OR FOR ANY DAMAGES IN CONNECTION WITH THE FURNISHING, PERFORMANCE, OR USE OF THIS MATERIAL. PUBLISHER'S NOTICE: All real estate advertised herein is subject to the Federal Fair Housing Act and the Colorado Fair Housing Act, which Acts make it illegal to make or publish any advertisement that indicates any preference, limitation, or discrimination based on race, color, religion, sex, handicap, familial status, or national origin. METROLIST, INC., DBA RECOLORADO will not knowingly accept any advertising for real estate that is in violation of the law. All persons are hereby informed that all dwellings advertised are available on an equal opportunity basis. © 2025 METROLIST, INC., DBA RECOLORADO® - All Rights Reserved. 6455 S. Yosemite St., Suite 500, Greenwood Village, CO 80111 USA. ALL RIGHTS RESERVED WORLDWIDE. No part of this publication may be reproduced, adapted, translated, stored in a retrieval system or transmitted in any form or by any means, electronic, mechanical, photocopying, recording, or otherwise, without the prior written permission of the publisher. The information contained herein including but not limited to all text, photographs, digital images, virtual tours, may be seeded and monitored for protection and tracking.
Read moreLast checked Apr 3, 4:00 am
- Jome
- New homes search
- Colorado
- Denver Metropolitan Area
- Adams County
- Brighton
- Farmlore
- 2065 Barnwood Dr, Brighton, CO 80601





























