














Book your tour. Save an average of $18,473. We'll handle the rest.
We collect exclusive builder offers, book your tours, and support you from start to housewarming.
- Confirmed tours
- Get matched & compare top deals
- Expert help, no pressure
- No added fees
Estimated value based on Jome data, T&C apply








































- 5 bd
- 4.5 ba
- 4,816 sqft
10201 Inspiration Dr, Parker, CO 80138
Why tour with Jome?
- No pressure toursTour at your own pace with no sales pressure
- Expert guidanceGet insights from our home buying experts
- Exclusive accessSee homes and deals not available elsewhere
Jome is featured in
- Single-Family
- Quick move-in
- $487.96/sqft
- $400/annual HOA
Home description
Gorgeous Property in Parker - horses welcome! Welcome home to 10201 Inspiration Drive—where luxury meets the land.Exquisite New Construction in Parker – 5 Bedrooms | 6 Bathrooms | 4,816 Fin sq ft | RV Garage | Main-Floor Primary Suite Discover elevated Colorado living in this masterfully crafted new construction home by Camerata Homes, set on a sprawling homesite in Parker where the spirit of country living meets refined modern design. This residence combines luxurious scale with thoughtfully curated materials and exceptional architectural detail. The heart of the home is an expansive great room with dramatic ceiling heights, designer lighting, and seamless indoor-outdoor flow. A chef’s kitchen commands attention with high-end cabinetry, a stunning quartz island, commercial-grade appliances, and a walk-in pantry built for entertaining. The main-floor primary suite is a tranquil retreat, offering spa-inspired finishes, heather bathroom floors, a soaking tub, and a private exit to the covered deck. Each additional bedroom features generous proportions, designer finishes, and its own beautifully appointed bathroom. From the wide-plank wood floors to the custom trim work and elevated tile and stone selections, every inch reflects craftsmanship and care. The oversized 3-car garage includes an RV bay, accommodating your biggest adventures with ease. Located minutes from Parker’s shops and restaurants with quick access to E-470 and DIA, this home offers a rare balance of privacy, convenience, and sophistication.
Compass - Denver, MLS REC5082192
Information last verified by Jome: Yesterday at 10:06 AM (March 5, 2026)
Home highlights
Secure, family-friendly base with top-rated Aurora schools and easy access to Denver's amenities.
Book your tour. Save an average of $18,473. We'll handle the rest.
We collect exclusive builder offers, book your tours, and support you from start to housewarming.
- Confirmed tours
- Get matched & compare top deals
- Expert help, no pressure
- No added fees
Estimated value based on Jome data, T&C apply
Home details
- Property status:
- Move-in ready
- Lot size (acres):
- 2.53
- Size:
- 4,816 sqft
- Stories:
- 1
- Beds:
- 5
- Baths:
- 4
- Half baths:
- 2
- Garage spaces:
- 3
- Fence:
- Partial Fence, No Fence
- Facing direction:
- South
Construction details
- Year Built:
- 2025
- Roof:
- Composition Roofing
Home features & finishes
- Construction Materials:
- FrameStoneWood Siding
- Cooling:
- Ceiling Fan(s)
- Flooring:
- Wood FlooringLaminate FlooringCarpet Flooring
- Foundation Details:
- Slab
- Garage/Parking:
- Large Boat/RV GarageGarageAttached GarageCar Charging Stations
- Home amenities:
- Green Construction
- Interior Features:
- Ceiling-HighJack and Jill Bathroom
- Kitchen:
- DishwasherOvenRefrigeratorDisposalConvection OvenQuartz countertopGranite countertopKitchen IslandDouble Oven
- Laundry facilities:
- Laundry Facilities In Unit
- Lighting:
- Lighting
- Property amenities:
- Cul-de-sacBasementBalconyDeckPatioFireplaceYardSmart Home SystemPorch
- Rooms:
- Primary Bedroom On MainFamily RoomPrimary Bedroom Downstairs
- Security system:
- Security SystemSmoke DetectorCarbon Monoxide Detector
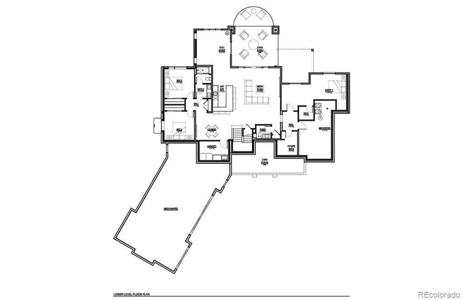
Room details
Kitchen
Dining Room
Family Room

Get a consultation with our New Homes Expert
- See how your home builds wealth
- Plan your home-buying roadmap
- Discover hidden gems
Utility information
- Heating:
- Forced Air Heating
- Utilities:
- Electricity Available, Natural Gas Available, Internet Cable, HVAC, High Speed Internet Access
Community amenities
- Greenbelt View
Neighborhood
Home address
Schools in Douglas County School District RE-1
GreatSchools’ Summary Rating calculation is based on 4 of the school’s themed ratings, including test scores, student/academic progress, college readiness, and equity. This information should only be used as a reference. Jome is not affiliated with GreatSchools and does not endorse or guarantee this information. Please reach out to schools directly to verify all information and enrollment eligibility. Data provided by GreatSchools.org © 2025
Places of interest
Getting around
Air quality
Noise level
A Soundscore™ rating is a number between 50 (very loud) and 100 (very quiet) that tells you how loud a location is due to environmental noise.
Natural hazards risk
Provided by FEMA

Considering this home?
Our expert will guide your tour, in-person or virtual
Need more information?
Text or call (888) 488-9243
Financials
Estimated monthly payment
Let us help you find your dream home
How many bedrooms are you looking for?
Similar homes nearby
Recently added communities in this area
Nearby communities in Parker
New homes in nearby cities
More New Homes in Parker, CO
Compass - Denver, MLS REC5082192
The content relating to real estate for sale in this Web site comes in part from the Internet Data eXchange (“IDX”) program of METROLIST, INC., DBA RECOLORADO® Real estate listings held by brokers other than NewHomesMate LLC, DBA Jome are marked with the IDX Logo. This information is being provided for the consumers’ personal, non-commercial use and may not be used for any other purpose. All information subject to change and should be independently verified. This publication is designed to provide information with regard to the subject matter covered. It is displayed with the understanding that the publisher and authors are not engaged in rendering real estate, legal, accounting, tax, or other professional services and that the publisher and authors are not offering such advice in this publication. If real estate, legal, or other expert assistance is required, the services of a competent, professional person should be sought. The information contained in this publication is subject to change without notice. METROLIST, INC., DBA RECOLORADO MAKES NO WARRANTY OF ANY KIND WITH REGARD TO THIS MATERIAL, INCLUDING, BUT NOT LIMITED TO, THE IMPLIED WARRANTIES OF MERCHANTABILITY AND FITNESS FOR A PARTICULAR PURPOSE. METROLIST, INC., DBA RECOLORADO SHALL NOT BE LIABLE FOR ERRORS CONTAINED HEREIN OR FOR ANY DAMAGES IN CONNECTION WITH THE FURNISHING, PERFORMANCE, OR USE OF THIS MATERIAL. PUBLISHER'S NOTICE: All real estate advertised herein is subject to the Federal Fair Housing Act and the Colorado Fair Housing Act, which Acts make it illegal to make or publish any advertisement that indicates any preference, limitation, or discrimination based on race, color, religion, sex, handicap, familial status, or national origin. METROLIST, INC., DBA RECOLORADO will not knowingly accept any advertising for real estate that is in violation of the law. All persons are hereby informed that all dwellings advertised are available on an equal opportunity basis. © 2025 METROLIST, INC., DBA RECOLORADO® - All Rights Reserved. 6455 S. Yosemite St., Suite 500, Greenwood Village, CO 80111 USA. ALL RIGHTS RESERVED WORLDWIDE. No part of this publication may be reproduced, adapted, translated, stored in a retrieval system or transmitted in any form or by any means, electronic, mechanical, photocopying, recording, or otherwise, without the prior written permission of the publisher. The information contained herein including but not limited to all text, photographs, digital images, virtual tours, may be seeded and monitored for protection and tracking.
Read moreLast checked Mar 5, 10:00 pm
- Jome
- New homes search
- Colorado
- Denver Metropolitan Area
- Douglas County
- Parker
- 10201 Inspiration Dr, Parker, CO 80138


























