



















- 4 bd
- 2 ba
- 1,824 sqft
2813 E 153Rd Ave, Thornton, CO 80602
- Townhouse
- $281.83/sqft
- $1,200/annual HOA
- 0.06-acre lot
New Homes for Sale Near 2813 E 153Rd Ave, Thornton, CO 80602
About this Home
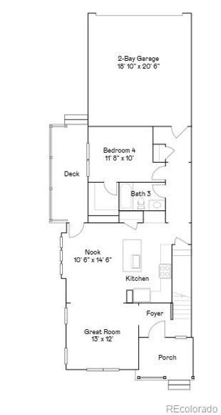
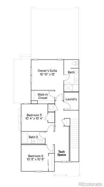
Eligible for 3.75 FHA 5/1 ARM or 3.99% fixed rate on eligible clearance homes when using builder’s preferred lender – terms and conditions apply – ask for details Welcome to East Creek Farm! This Vibrant II townhome boasts a spacious and modern layout. An open-concept floorplan on the first floor combines the chef style kitchen, large eat in island that overlooks the nook, great room and convenient bedroom and full bathroom. Three additional bedrooms make up the second floor, including the luxurious owner’s suite, which is nestled into a private back corner offering direct access to the spa-inspired bathroom and walk-in closet. A two-bay garage at the back of the home offers simple access and additional storage space. This Home is 100% Electric!! The community features a fantastic location near urban amenities and ample outdoor recreation. Residents can easily shop at the Denver Premium Outlets or Orchard Town Center before venturing outdoors to explore paths at the Thornton Trail Winds Park and Open Space complex. Move in ready.
Coldwell Banker Realty 56, MLS REC6919582
May also be listed on the Lennar website
Information last verified by Jome: Tuesday at 10:00 PM (October 28, 2025)
Home details
- Property status:
- Sold
- Lot size (acres):
- 0.06
- Size:
- 1,824 sqft
- Stories:
- 2
- Beds:
- 4
- Baths:
- 2
- Garage spaces:
- 2
Construction details
- Builder Name:
- Lennar
- Year Built:
- 2024
- Roof:
- Composition Roofing
Home features & finishes
- Construction Materials:
- FrameStone
- Cooling:
- Central Air
- Flooring:
- Vinyl FlooringCarpet Flooring
- Foundation Details:
- Slab
- Garage/Parking:
- GarageAttached Garage
- Interior Features:
- Walk-In ClosetFoyer
- Kitchen:
- DishwasherMicrowave OvenOvenDisposalQuartz countertopKitchen Island
- Property amenities:
- BasementPorch
- Rooms:
- KitchenOpen Concept Floorplan
Utility information
- Utilities:
- Electricity Available
About the builder - Lennar

- 1,806communities on Jome
- 6,800homes on Jome
Neighborhood
Home address
Schools in Adams 12 Five Star Schools
- Grades PK-PKPublicbright horizons preschool2.6 mi5321 e 136th avena
GreatSchools’ Summary Rating calculation is based on 4 of the school’s themed ratings, including test scores, student/academic progress, college readiness, and equity. This information should only be used as a reference. Jome is not affiliated with GreatSchools and does not endorse or guarantee this information. Please reach out to schools directly to verify all information and enrollment eligibility. Data provided by GreatSchools.org © 2025
Places of interest
Getting around
Air quality
Noise level
A Soundscore™ rating is a number between 50 (very loud) and 100 (very quiet) that tells you how loud a location is due to environmental noise.
Natural hazards risk
Provided by FEMA
Financials
Nearby communities in Thornton
Recently added communities in this area
Other Builders in Thornton, CO
Nearby sold homes
New homes in nearby cities
More New Homes in Thornton, CO
Coldwell Banker Realty 56, MLS REC6919582
The content relating to real estate for sale in this Web site comes in part from the Internet Data eXchange (“IDX”) program of METROLIST, INC., DBA RECOLORADO® Real estate listings held by brokers other than NewHomesMate LLC, DBA Jome are marked with the IDX Logo. This information is being provided for the consumers’ personal, non-commercial use and may not be used for any other purpose. All information subject to change and should be independently verified. This publication is designed to provide information with regard to the subject matter covered. It is displayed with the understanding that the publisher and authors are not engaged in rendering real estate, legal, accounting, tax, or other professional services and that the publisher and authors are not offering such advice in this publication. If real estate, legal, or other expert assistance is required, the services of a competent, professional person should be sought. The information contained in this publication is subject to change without notice. METROLIST, INC., DBA RECOLORADO MAKES NO WARRANTY OF ANY KIND WITH REGARD TO THIS MATERIAL, INCLUDING, BUT NOT LIMITED TO, THE IMPLIED WARRANTIES OF MERCHANTABILITY AND FITNESS FOR A PARTICULAR PURPOSE. METROLIST, INC., DBA RECOLORADO SHALL NOT BE LIABLE FOR ERRORS CONTAINED HEREIN OR FOR ANY DAMAGES IN CONNECTION WITH THE FURNISHING, PERFORMANCE, OR USE OF THIS MATERIAL. PUBLISHER'S NOTICE: All real estate advertised herein is subject to the Federal Fair Housing Act and the Colorado Fair Housing Act, which Acts make it illegal to make or publish any advertisement that indicates any preference, limitation, or discrimination based on race, color, religion, sex, handicap, familial status, or national origin. METROLIST, INC., DBA RECOLORADO will not knowingly accept any advertising for real estate that is in violation of the law. All persons are hereby informed that all dwellings advertised are available on an equal opportunity basis. © 2025 METROLIST, INC., DBA RECOLORADO® - All Rights Reserved. 6455 S. Yosemite St., Suite 500, Greenwood Village, CO 80111 USA. ALL RIGHTS RESERVED WORLDWIDE. No part of this publication may be reproduced, adapted, translated, stored in a retrieval system or transmitted in any form or by any means, electronic, mechanical, photocopying, recording, or otherwise, without the prior written permission of the publisher. The information contained herein including but not limited to all text, photographs, digital images, virtual tours, may be seeded and monitored for protection and tracking.
Read moreLast checked Apr 1, 10:00 am
- Jome
- New homes search
- Colorado
- Denver Metropolitan Area
- Adams County
- Thornton
- 2813 E 153Rd Ave, Thornton, CO 80602




















































