














Book your tour. Save an average of $18,473. We'll handle the rest.
We collect exclusive builder offers, book your tours, and support you from start to housewarming.
- Confirmed tours
- Get matched & compare top deals
- Expert help, no pressure
- No added fees
Estimated value based on Jome data, T&C apply

























- 3 bd
- 2.5 ba
- 3,367 sqft
11104 Amber Light Cir, Littleton, CO 80125
Why tour with Jome?
- No pressure toursTour at your own pace with no sales pressure
- Expert guidanceGet insights from our home buying experts
- Exclusive accessSee homes and deals not available elsewhere
Jome is featured in
- Single-Family
- Quick move-in
- $267.27/sqft
- $1,458/annual HOA
Builder deals available
Any loan type
$80,000 est. value- $60,000 flex cash
- $20,000 closing costs help
Deals may change and are not guaranteed. Some deals apply to specific homes or plans. Not a financing offer. Eligibility varies by lender. Please verify details.
Home description
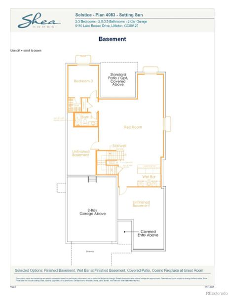
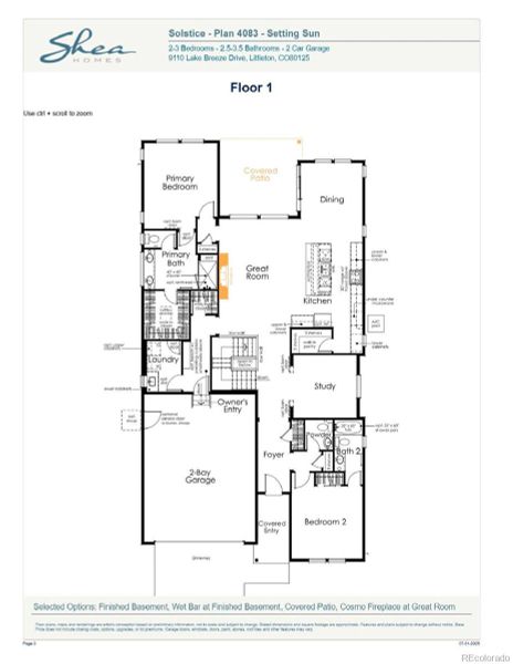
Beautiful one-story home in the desirable Solstice Community. Solstice is surrounded by Chatfield State Park on 3 sides of the community and acreage parcels on the 4th side. This home features 3 bedrooms, 3.5 baths, study with barn door, fireplace with full height tile surround, finished basement with wet bar, covered patio, and 2-bay garage. Design finishes include COREtec luxury plank flooring in Madrid Oak, AZT/DT engineered stone counter tops in New Venatino Beige, and Yorktowne Brockton maple painted cabinets in Irish cream and Brockton Cherry/Cuppucino Cherry. The Mirabelle Metropolitan Districts provide various services to the property and in addition to the estimated taxes, a $40 per month operations fee is imposed. Please contact a community representative for details.
RE/MAX Professionals, MLS REC4468437
May also be listed on the Shea Homes website
Information last verified by Jome: Today at 10:06 AM (February 27, 2026)
Home highlights
Beloved Denver park with lakes, trails, gardens, and a lively neighborhood vibe near historic homes.
Book your tour. Save an average of $18,473. We'll handle the rest.
We collect exclusive builder offers, book your tours, and support you from start to housewarming.
- Confirmed tours
- Get matched & compare top deals
- Expert help, no pressure
- No added fees
Estimated value based on Jome data, T&C apply
Home details
- Property status:
- Move-in ready
- Lot size (acres):
- 0.16
- Size:
- 3,367 sqft
- Stories:
- 1
- Beds:
- 3
- Baths:
- 2
- Half baths:
- 1
- Garage spaces:
- 2
- Facing direction:
- Southeast
Construction details
- Builder Name:
- Shea Homes
- Completion Date:
- September, 2025
- Year Built:
- 2025
- Roof:
- Composition Roofing
Home features & finishes
- Construction Materials:
- FrameWood Siding
- Cooling:
- Central Air
- Flooring:
- Vinyl FlooringCarpet FlooringTile Flooring
- Foundation Details:
- Slab
- Garage/Parking:
- GarageAttached Garage
- Interior Features:
- Ceiling-HighWalk-In ClosetPantryWet Bar
- Kitchen:
- DishwasherMicrowave OvenOvenRefrigeratorDisposalKitchen IslandKitchen Range
- Laundry facilities:
- Laundry Facilities In Unit
- Pets:
- Pets AllowedCat(s) Only AllowedDog(s) Only Allowed
- Property amenities:
- BasementPatioFireplaceYardSmart Home System
- Rooms:
- Primary Bedroom On MainKitchenFamily RoomOpen Concept FloorplanPrimary Bedroom Downstairs
- Security system:
- Smart Video DoorbellSmoke DetectorCarbon Monoxide Detector
Room details
Bedroom 1
Office

Get a consultation with our New Homes Expert
- See how your home builds wealth
- Plan your home-buying roadmap
- Discover hidden gems
Utility information
- Heating:
- Forced Air Heating
- Utilities:
- Electricity Available, Natural Gas Available, Internet Cable, Phone Available, Cable Available, High Speed Internet Access

Community details
Horizon at Solstice
by Shea Homes, Littleton, CO
- 4 homes
- 4 plans
- 1,832 - 3,367 sqft
View Horizon at Solstice details
More homes in Horizon at Solstice
- Home at address 11112 Amber Light Cir, Littleton, CO 80125

4081 Crimson Sky Elevation C-Highline Ranch
$874,900
- 3 bd
- 2 ba
- 3,005 sqft
11112 Amber Light Cir, Littleton, CO 80125
- Home at address 11126 Stonepath St, Littleton, CO 80125

4083 Setting Sun Elevation A - Modern Farmhouse
$924,900
- 3 bd
- 3.5 ba
- 3,215 sqft
11126 Stonepath St, Littleton, CO 80125
Floor plans in Horizon at Solstice
About the builder - Shea Homes
Neighborhood
Home address
Schools in Douglas County School District RE-1
GreatSchools’ Summary Rating calculation is based on 4 of the school’s themed ratings, including test scores, student/academic progress, college readiness, and equity. This information should only be used as a reference. Jome is not affiliated with GreatSchools and does not endorse or guarantee this information. Please reach out to schools directly to verify all information and enrollment eligibility. Data provided by GreatSchools.org © 2025
Places of interest
Getting around
Air quality
Noise level
A Soundscore™ rating is a number between 50 (very loud) and 100 (very quiet) that tells you how loud a location is due to environmental noise.

Considering this home?
Our expert will guide your tour, in-person or virtual
Need more information?
Text or call (888) 488-9243
Financials
Estimated monthly payment
Let us help you find your dream home
How many bedrooms are you looking for?
Similar homes nearby
Recently added communities in this area
Nearby communities in Littleton
New homes in nearby cities
More New Homes in Littleton, CO
RE/MAX Professionals, MLS REC4468437
The content relating to real estate for sale in this Web site comes in part from the Internet Data eXchange (“IDX”) program of METROLIST, INC., DBA RECOLORADO® Real estate listings held by brokers other than NewHomesMate LLC, DBA Jome are marked with the IDX Logo. This information is being provided for the consumers’ personal, non-commercial use and may not be used for any other purpose. All information subject to change and should be independently verified. This publication is designed to provide information with regard to the subject matter covered. It is displayed with the understanding that the publisher and authors are not engaged in rendering real estate, legal, accounting, tax, or other professional services and that the publisher and authors are not offering such advice in this publication. If real estate, legal, or other expert assistance is required, the services of a competent, professional person should be sought. The information contained in this publication is subject to change without notice. METROLIST, INC., DBA RECOLORADO MAKES NO WARRANTY OF ANY KIND WITH REGARD TO THIS MATERIAL, INCLUDING, BUT NOT LIMITED TO, THE IMPLIED WARRANTIES OF MERCHANTABILITY AND FITNESS FOR A PARTICULAR PURPOSE. METROLIST, INC., DBA RECOLORADO SHALL NOT BE LIABLE FOR ERRORS CONTAINED HEREIN OR FOR ANY DAMAGES IN CONNECTION WITH THE FURNISHING, PERFORMANCE, OR USE OF THIS MATERIAL. PUBLISHER'S NOTICE: All real estate advertised herein is subject to the Federal Fair Housing Act and the Colorado Fair Housing Act, which Acts make it illegal to make or publish any advertisement that indicates any preference, limitation, or discrimination based on race, color, religion, sex, handicap, familial status, or national origin. METROLIST, INC., DBA RECOLORADO will not knowingly accept any advertising for real estate that is in violation of the law. All persons are hereby informed that all dwellings advertised are available on an equal opportunity basis. © 2025 METROLIST, INC., DBA RECOLORADO® - All Rights Reserved. 6455 S. Yosemite St., Suite 500, Greenwood Village, CO 80111 USA. ALL RIGHTS RESERVED WORLDWIDE. No part of this publication may be reproduced, adapted, translated, stored in a retrieval system or transmitted in any form or by any means, electronic, mechanical, photocopying, recording, or otherwise, without the prior written permission of the publisher. The information contained herein including but not limited to all text, photographs, digital images, virtual tours, may be seeded and monitored for protection and tracking.
Read moreLast checked Feb 27, 10:00 pm
- Jome
- New homes search
- Colorado
- Denver Metropolitan Area
- Douglas County
- Littleton
- Horizon at Solstice
- 11104 Amber Light Cir, Littleton, CO 80125






























