














Book your tour. Save an average of $18,473. We'll handle the rest.
We collect exclusive builder offers, book your tours, and support you from start to housewarming.
- Confirmed tours
- Get matched & compare top deals
- Expert help, no pressure
- No added fees
Estimated value based on Jome data, T&C apply









































- 3 bd
- 0.5 ba
- 2,497 sqft
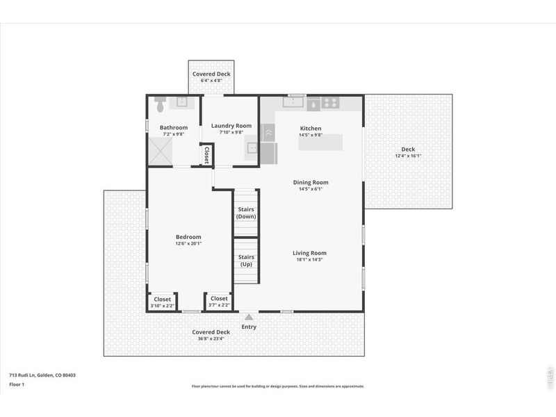
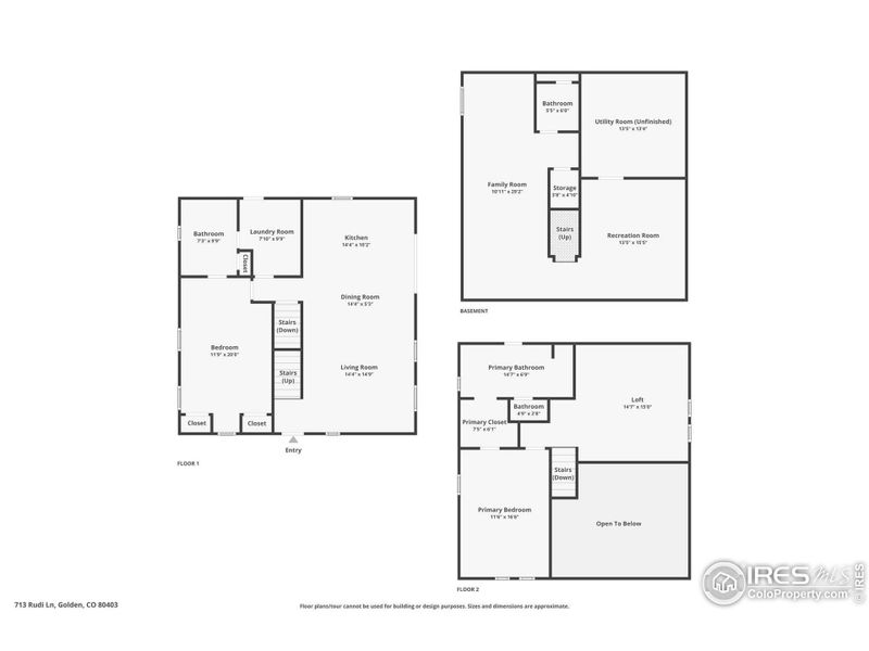
713 Rudi Ln, Golden, CO 80403
Why tour with Jome?
- No pressure toursTour at your own pace with no sales pressure
- Expert guidanceGet insights from our home buying experts
- Exclusive accessSee homes and deals not available elsewhere
Jome is featured in
- Single-Family
- Quick move-in
- $466.56/sqft
- 1.67-acre lot
Home description
This custom-built mountain home offers modern systems and beautiful finishes throughout. The vaulted great room has a gas fireplace and connects to the kitchen and a loft above. There are three bedrooms, one on each level, both with soundproof walls, custom closets, and private bathrooms. The upper-level bathroom includes a steam shower and handmade tile. A laundry room and mudroom are on the main floor. The home sits on a private 1.67-acre lot, bordered to the south by 135 acres of undeveloped land. Wildfire mitigation and has a Wildfire Partners certification. The exterior is fire-resistant, with a 24-gauge metal roof and siding, Andersen Eagle windows, and multiple TimberTech decks, including an east-facing balcony with foothill views. A detached 720 sq ft garage and 780 sq ft outbuilding are also included. Inside features include solid pine doors, custom railings, luxury vinyl plank and carpet flooring (both compatible with radiant heat), and adjustable lighting. The kitchen has Brazilian quartzite counters, stainless steel appliances, a French door fridge, induction cooktop, motion-sensing hood, microwave oven, under-cabinet lighting, soft-close maple cabinets, custom wine racks, and a large island. The lower level includes an open area for media, fitness, or office use. Heating is provided by in-floor radiant heat with room-by-room controls and a gas fireplace with a remote thermostat. Additional systems include heat recovery ventilation, R54 ceiling insulation, and an interior fire suppression system. The home is SepticSmart certified, has a well with water treatment, and internet from Mountain Broadband. Located near Gross Reservoir, national forest land, Nederland, and Eldora. About 30-40 minutes to Boulder, Golden, and Denver; about 1 hour to DIA.
MLS IRE1052725
Information last verified by Jome: Today at 12:20 AM (March 6, 2026)
Book your tour. Save an average of $18,473. We'll handle the rest.
We collect exclusive builder offers, book your tours, and support you from start to housewarming.
- Confirmed tours
- Get matched & compare top deals
- Expert help, no pressure
- No added fees
Estimated value based on Jome data, T&C apply
Home details
- Property status:
- Move-in ready
- Lot size (acres):
- 1.67
- Size:
- 2,497 sqft
- Stories:
- 2
- Beds:
- 3
- Half baths:
- 3
- Garage spaces:
- 4
Construction details
- Year Built:
- 2025
- Roof:
- Metal Roofing
Home features & finishes
- Construction Materials:
- Metal SidingWood FrameFrame
- Cooling:
- Ceiling Fan(s)
- Flooring:
- Vinyl FlooringCarpet Flooring
- Garage/Parking:
- GarageDetached Garage
- Kitchen:
- DishwasherMicrowave OvenOvenRefrigeratorElectric Oven
- Property amenities:
- BasementDeckFireplace
- Rooms:
- Family Room
Room details
Master Bedroom
Kitchen
Bedroom 2

Get a consultation with our New Homes Expert
- See how your home builds wealth
- Plan your home-buying roadmap
- Discover hidden gems
Utility information
- Heating:
- Zoned Heating, Forced Air Heating, Radiant Heating
- Utilities:
- Electricity Available, Natural Gas Available
Neighborhood
Home address
Schools in Boulder Valley School District RE-2
GreatSchools’ Summary Rating calculation is based on 4 of the school’s themed ratings, including test scores, student/academic progress, college readiness, and equity. This information should only be used as a reference. Jome is not affiliated with GreatSchools and does not endorse or guarantee this information. Please reach out to schools directly to verify all information and enrollment eligibility. Data provided by GreatSchools.org © 2025
Places of interest
Getting around
Air quality
Natural hazards risk
Provided by FEMA

Considering this home?
Our expert will guide your tour, in-person or virtual
Need more information?
Text or call (888) 488-9243
Financials
Estimated monthly payment
Let us help you find your dream home
How many bedrooms are you looking for?
Similar homes nearby
Recently added communities in this area
Nearby communities in Golden
New homes in nearby cities
More New Homes in Golden, CO
MLS IRE1052725
Information source: Information and Real Estate Services, LLC. Provided for limited non-commercial use only under IRES Rules © 2025 IRES, LLC. Listing information is provided exclusively for consumers' personal, non-commercial use and may not be used for any purpose other than to identify prospective properties consumers may be interested in purchasing. Information deemed reliable but not guaranteed by the MLS. Compensation information displayed on listing details is only applicable to other participants and subscribers of the source MLS.
Read moreLast checked Mar 6, 12:20 am
- Jome
- New homes search
- Colorado
- Denver Metropolitan Area
- Boulder County
- Golden
- 713 Rudi Ln, Golden, CO 80403


























