













Book your tour. Save an average of $18,473. We'll handle the rest.
We collect exclusive builder offers, book your tours, and support you from start to housewarming.
- Confirmed tours
- Get matched & compare top deals
- Expert help, no pressure
- No added fees
Estimated value based on Jome data, T&C apply
- 2 bd
- 1.5 ba
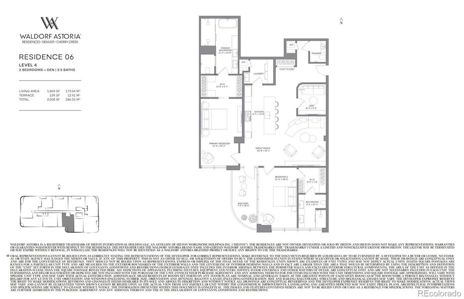
- 1,869 sqft
185 Steele St, Unit 408, Denver, CO 80206
Why tour with Jome?
- No pressure toursTour at your own pace with no sales pressure
- Expert guidanceGet insights from our home buying experts
- Exclusive accessSee homes and deals not available elsewhere
Jome is featured in
- Condo
- Under construction
- $2247.19/sqft
- Southwest facing
Home description
Our Waldorf Astoria Sales Gallery is now open by appointment only, offering a firsthand look at this remarkable new development. Waldorf Astoria Residences Cherry Creek will rise as Colorado’s first Waldorf Astoria-branded property, this boutique property’s 37 luxury residences will deliver a timeless landmark. All residential interiors are designed by award winning interior design firm BAMO, every residence will be fully finished offering private balconies, custom gourmet Boffi kitchens, with fully integrated Sub-Zero and Wolf appliance packages. As an iconic brand synonymous with timeless luxury Waldorf Astoria delivers a personalized living experience like no other to Cherry Creek. With your own personal concierge, 24-hour reception and security, bell services and valet parking promises an effortless lifestyle. The world-renowned true Waldorf Service is curated with a sense of care and authenticity. From the Legendary Waldorf Astoria Peacock Alley inspired lounge, the state-of-the-art wellness center with his/her sauna, steam room & cold plunge, fitness studio, resort-style rooftop pool deck with bar and lounge areas, curated lobby, and signature restaurant with inspired menu offering 24/7 room service, each space is designed for exceptional experiences. Setting a standard for world-class luxury in one of the most sought-after neighborhoods in Denver.
Kentwood Real Estate Cherry Creek, MLS REC5171463
Information last verified by Jome: Yesterday at 10:00 AM (February 16, 2026)
Book your tour. Save an average of $18,473. We'll handle the rest.
We collect exclusive builder offers, book your tours, and support you from start to housewarming.
- Confirmed tours
- Get matched & compare top deals
- Expert help, no pressure
- No added fees
Estimated value based on Jome data, T&C apply
Home details
- Property status:
- Under construction
- Neighborhood:
- Cherry Creek
- Size:
- 1,869 sqft
- Stories:
- 1
- Beds:
- 2
- Baths:
- 1
- Half baths:
- 1
- Facing direction:
- Southwest
Construction details
- Year Built:
- 2025
Home features & finishes
- Construction Materials:
- ConcreteStone
- Cooling:
- Central Air
- Flooring:
- Wood FlooringStone FlooringTile Flooring
- Foundation Details:
- Structural
- Garage/Parking:
- GarageUnderground Garage/ParkingHeated GarageValet ParkingCar Charging Stations
- Interior Features:
- Ceiling-HighWalk-In ClosetFoyerWet Bar
- Kitchen:
- Wine RefrigeratorDishwasherMicrowave OvenOvenRefrigeratorDisposalFreezerKitchen IslandCooktop
- Laundry facilities:
- Laundry Facilities In UnitDryerWasher
- Lighting:
- Exterior LightingLightingSmart Lights
- Pets:
- Cat(s) Only AllowedDog(s) Only Allowed
- Property amenities:
- Private RooftopBalconyDeckBBQ AreaElevatorPatio
- Rooms:
- Primary Bedroom On MainKitchenOpen Concept FloorplanPrimary Bedroom Downstairs
- Security system:
- Smoke Detector
Room details
Kitchen
Dining Room
Bedroom 1

Get a consultation with our New Homes Expert
- See how your home builds wealth
- Plan your home-buying roadmap
- Discover hidden gems
Utility information
- Heating:
- Heat Pump
- Utilities:
- Electricity Available, Cable Available
Community amenities
- City View
- Mountain(s) View
Neighborhood
Home address
- Neighborhood:
- Cherry Creek
- City:
- Denver
Schools in Denver County School District 1
- Grades KG-12Privaterock solid christian academy0.7 mi200 s university blvdna
GreatSchools’ Summary Rating calculation is based on 4 of the school’s themed ratings, including test scores, student/academic progress, college readiness, and equity. This information should only be used as a reference. Jome is not affiliated with GreatSchools and does not endorse or guarantee this information. Please reach out to schools directly to verify all information and enrollment eligibility. Data provided by GreatSchools.org © 2025
Places of interest
Getting around
8 nearby routes: 8 bus, 0 rail, 0 otherAir quality
Natural hazards risk
Provided by FEMA

Considering this home?
Our expert will guide your tour, in-person or virtual
Need more information?
Text or call (888) 488-9243
Financials
Estimated monthly payment
Let us help you find your dream home
How many bedrooms are you looking for?
Similar homes nearby
Recently added communities in this area
Nearby communities in Denver
New homes in nearby cities
More New Homes in Denver, CO
Kentwood Real Estate Cherry Creek, MLS REC5171463
The content relating to real estate for sale in this Web site comes in part from the Internet Data eXchange (“IDX”) program of METROLIST, INC., DBA RECOLORADO® Real estate listings held by brokers other than NewHomesMate LLC, DBA Jome are marked with the IDX Logo. This information is being provided for the consumers’ personal, non-commercial use and may not be used for any other purpose. All information subject to change and should be independently verified. This publication is designed to provide information with regard to the subject matter covered. It is displayed with the understanding that the publisher and authors are not engaged in rendering real estate, legal, accounting, tax, or other professional services and that the publisher and authors are not offering such advice in this publication. If real estate, legal, or other expert assistance is required, the services of a competent, professional person should be sought. The information contained in this publication is subject to change without notice. METROLIST, INC., DBA RECOLORADO MAKES NO WARRANTY OF ANY KIND WITH REGARD TO THIS MATERIAL, INCLUDING, BUT NOT LIMITED TO, THE IMPLIED WARRANTIES OF MERCHANTABILITY AND FITNESS FOR A PARTICULAR PURPOSE. METROLIST, INC., DBA RECOLORADO SHALL NOT BE LIABLE FOR ERRORS CONTAINED HEREIN OR FOR ANY DAMAGES IN CONNECTION WITH THE FURNISHING, PERFORMANCE, OR USE OF THIS MATERIAL. PUBLISHER'S NOTICE: All real estate advertised herein is subject to the Federal Fair Housing Act and the Colorado Fair Housing Act, which Acts make it illegal to make or publish any advertisement that indicates any preference, limitation, or discrimination based on race, color, religion, sex, handicap, familial status, or national origin. METROLIST, INC., DBA RECOLORADO will not knowingly accept any advertising for real estate that is in violation of the law. All persons are hereby informed that all dwellings advertised are available on an equal opportunity basis. © 2025 METROLIST, INC., DBA RECOLORADO® - All Rights Reserved. 6455 S. Yosemite St., Suite 500, Greenwood Village, CO 80111 USA. ALL RIGHTS RESERVED WORLDWIDE. No part of this publication may be reproduced, adapted, translated, stored in a retrieval system or transmitted in any form or by any means, electronic, mechanical, photocopying, recording, or otherwise, without the prior written permission of the publisher. The information contained herein including but not limited to all text, photographs, digital images, virtual tours, may be seeded and monitored for protection and tracking.
Read moreLast checked Feb 16, 10:00 pm
- Jome
- New homes search
- Colorado
- Denver Metropolitan Area
- Denver County
- Denver
- 185 Steele St, Unit 408, Denver, CO 80206


























