








Book your tour. Save an average of $18,473. We'll handle the rest.
We collect exclusive builder offers, book your tours, and support you from start to housewarming.
- Confirmed tours
- Get matched & compare top deals
- Expert help, no pressure
- No added fees
Estimated value based on Jome data, T&C apply



























Why tour with Jome?
- No pressure toursTour at your own pace with no sales pressure
- Expert guidanceGet insights from our home buying experts
- Exclusive accessSee homes and deals not available elsewhere
Jome is featured in
- Single-Family
- Quick move-in
- $184.85/sqft
- $84/monthly HOA
Home description
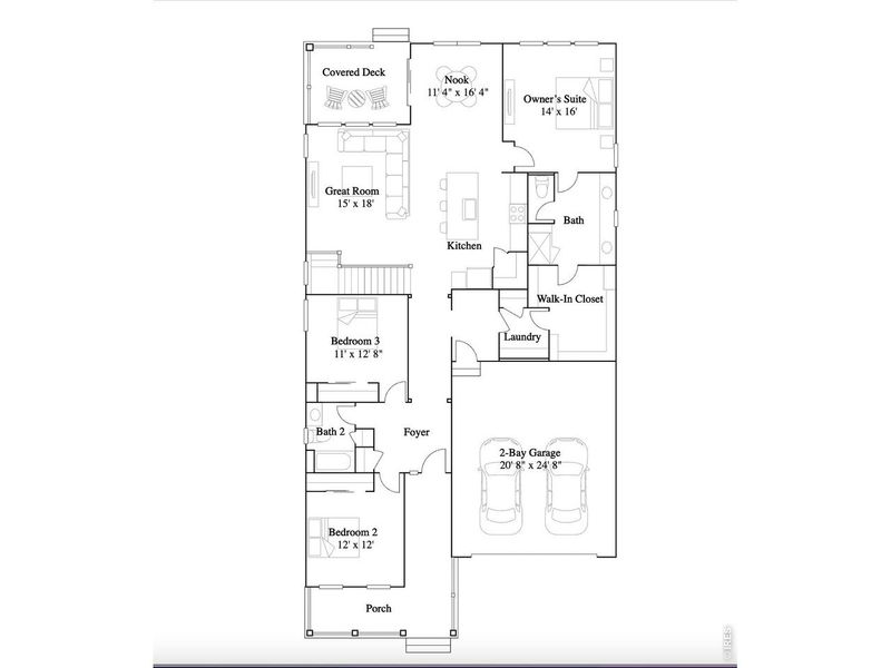
Single-level living, new construction, and sweeping Front Range views are the highlights of this property. A thoughtful layout, modern finishes, and covered patios make for easy living. The kitchen is the heart of this home. Overlooking the family and dining areas, it features a large island, upgraded cabinets, quartz countertops, and stainless steel appliances. The primary bedroom features privacy, a large walk-in closet, and double-vanity en suite bathroom. Two guests rooms with an additional bathroom, and a conveniently located laundry room finish out the main floor. The unfinished basement and backyard are full of potential, waiting for the next owners' touch.
MLS IRE1054132
May also be listed on the Lennar website
Information last verified by Jome: Today at 12:21 PM (March 19, 2026)
Home highlights
Restored prairie ecosystem near Denver with mountain views, bison herds, and miles of peaceful nature trails.
Book your tour. Save an average of $18,473. We'll handle the rest.
We collect exclusive builder offers, book your tours, and support you from start to housewarming.
- Confirmed tours
- Get matched & compare top deals
- Expert help, no pressure
- No added fees
Estimated value based on Jome data, T&C apply
Home details
- Property status:
- Move-in ready
- Collection:
- Sunset Village: The Monarch
- Lot size (acres):
- 0.16
- Size:
- 3,868 sqft
- Stories:
- 1
- Beds:
- 3
- Baths:
- 2
- Garage spaces:
- 2
- Facing direction:
- West
Construction details
- Builder Name:
- Lennar
- Completion Date:
- May, 2025
- Year Built:
- 2025
- Roof:
- Roof Gutter, Composition Roofing
Home features & finishes
- Appliances:
- Sprinkler System
- Construction Materials:
- Frame
- Cooling:
- Central Air
- Garage/Parking:
- GarageAttached Garage
- Interior Features:
- Walk-In ClosetFoyerPantry
- Kitchen:
- DishwasherMicrowave OvenRefrigeratorDisposalKitchen Island
- Laundry facilities:
- DryerWasherUtility/Laundry Room
- Property amenities:
- BasementPatio
- Rooms:
- Primary Bedroom On MainKitchenDining RoomFamily RoomOpen Concept FloorplanSeparate Living and DiningPrimary Bedroom Downstairs
- Security system:
- Fire Alarm System
Room details
Master Bedroom
Kitchen
Bedroom 2

Get a consultation with our New Homes Expert
- See how your home builds wealth
- Plan your home-buying roadmap
- Discover hidden gems
Utility information
- Heating:
- Forced Air Heating
- Utilities:
- Electricity Available, Natural Gas Available

Community details
Sunset Village
by Lennar, Erie, CO
- 1 home
- 4 plans
- 2,175 - 4,018 sqft
View Sunset Village details
Community amenities
- Park Nearby
- Mountain(s) View
Floor plans in Sunset Village
About the builder - Lennar

- 1,794communities on Jome
- 6,701homes on Jome
Neighborhood
Home address
Schools in St. Vrain Valley School District RE 1J
GreatSchools’ Summary Rating calculation is based on 4 of the school’s themed ratings, including test scores, student/academic progress, college readiness, and equity. This information should only be used as a reference. Jome is not affiliated with GreatSchools and does not endorse or guarantee this information. Please reach out to schools directly to verify all information and enrollment eligibility. Data provided by GreatSchools.org © 2025
Places of interest
Getting around
Air quality
Noise level
A Soundscore™ rating is a number between 50 (very loud) and 100 (very quiet) that tells you how loud a location is due to environmental noise.

Considering this home?
Our expert will guide your tour, in-person or virtual
Need more information?
Text or call (888) 545-5198
Financials
Estimated monthly payment
Let us help you find your dream home
How many bedrooms are you looking for?
Similar homes nearby
Recently added communities in this area
Nearby communities in Erie
New homes in nearby cities
More New Homes in Erie, CO
MLS IRE1054132
Information source: Information and Real Estate Services, LLC. Provided for limited non-commercial use only under IRES Rules © 2025 IRES, LLC. Listing information is provided exclusively for consumers' personal, non-commercial use and may not be used for any purpose other than to identify prospective properties consumers may be interested in purchasing. Information deemed reliable but not guaranteed by the MLS. Compensation information displayed on listing details is only applicable to other participants and subscribers of the source MLS.
Read moreLast checked Mar 19, 6:20 am
- Jome
- New homes search
- Colorado
- Denver Metropolitan Area
- Weld County
- Erie
- Sunset Village
- Sunset Village: The Monarch
- 707 Raindance St, Erie, CO 80516
































