

Book your tour. Save an average of $18,473. We'll handle the rest.
We collect exclusive builder offers, book your tours, and support you from start to housewarming.
- Confirmed tours
- Get matched & compare top deals
- Expert help, no pressure
- No added fees
Estimated value based on Jome data, T&C apply
- 5 bd
- 3.5 ba
- 3,947 sqft
22534 E Pegasus Pkwy, Queen Creek, AZ 85142
Why tour with Jome?
- No pressure toursTour at your own pace with no sales pressure
- Expert guidanceGet insights from our home buying experts
- Exclusive accessSee homes and deals not available elsewhere
Jome is featured in
- Single-Family
- Under construction
- $200.15/sqft
- $137/monthly HOA
Home description
Up to 3% of base price or total purchase price, whichever is less, is available through preferred lender plus additional 3% of base price or total purchase price, whichever is less, is available to be used toward closing costs, pre-paids, rate buy downs, and/or price adjustments.
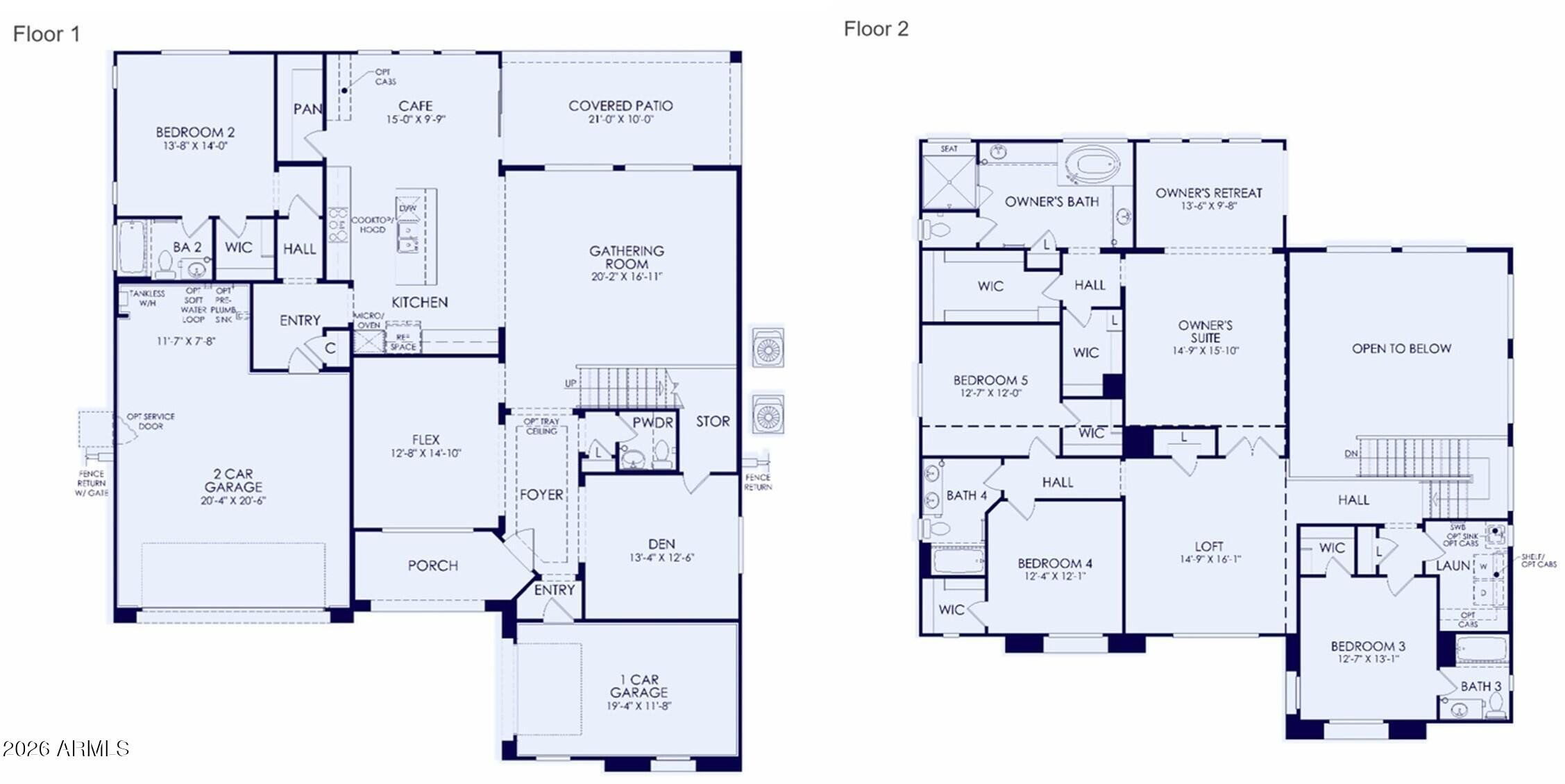
The community's most livable floor plan, designed for families seeking comfort, space, and refined living. An elegant foyer leads to a dramatic gathering room with soaring ceilings, a functional L-shaped kitchen, an oversized island, and a Costco-style pantry. Upstairs features a luxurious owner's retreat with a spa-like bath and soaking tub. Located in the gated Harvest community near pools, a catch-and-release lake, and a lush park. Includes front yard landscaping plus a paver driveway and walkway.
PCD Realty, LLC, MLS 6987825
May also be listed on the Pulte Homes website
Information last verified by Jome: Today at 11:53 AM (April 1, 2026)
Home highlights
Desert park in metro Phoenix known for red rock formations, trails, and nearby zoo and botanical gardens.
Book your tour. Save an average of $18,473. We'll handle the rest.
We collect exclusive builder offers, book your tours, and support you from start to housewarming.
- Confirmed tours
- Get matched & compare top deals
- Expert help, no pressure
- No added fees
Estimated value based on Jome data, T&C apply
Home details
- Property status:
- Under construction
- Lot size (acres):
- 0.21
- Size:
- 3,947 sqft
- Stories:
- 2
- Beds:
- 5
- Baths:
- 3
- Half baths:
- 1
- Garage spaces:
- 3
- Fence:
- Block Fence
Construction details
- Builder Name:
- Pulte Homes
- Completion Date:
- April, 2026
- Year Built:
- 2026
- Roof:
- Tile Roofing
Home features & finishes
- Construction Materials:
- StuccoWood FrameWood
- Cooling:
- Central AirFresh Air Ventilation
- Flooring:
- Carpet FlooringTile Flooring
- Garage/Parking:
- Door OpenerGarageSide Entry Garage/ParkingAttached GarageCar Charging Stations
- Home amenities:
- Home Accessibility FeaturesENERGY STAR CertifiedGreen Construction
- Interior Features:
- Ceiling-VaultedWalk-In ClosetBreakfast BarWalk-In PantrySeparate ShowerDouble Vanity
- Kitchen:
- Granite countertopKitchen Island
- Laundry facilities:
- Utility/Laundry Room
- Property amenities:
- PatioPorch
- Rooms:
- KitchenDining RoomFamily RoomBreakfast AreaPrimary Bedroom Upstairs

Get a consultation with our New Homes Expert
- See how your home builds wealth
- Plan your home-buying roadmap
- Discover hidden gems
Utility information
- Heating:
- Electric Heating
- Utilities:
- High Speed Internet Access

Community details
Harvest - Enchantment Series at Harvest
by Pulte Homes, Queen Creek, AZ
- 11 homes
- 6 plans
- 578 - 4,141 sqft
View Harvest - Enchantment Series details
Community amenities
- Playground
- Lake Access
- Gated Community
- Mountain(s) View
- Walking, Jogging, Hike Or Bike Trails
More homes in Harvest - Enchantment Series
- Home at address 26041 S 224Th Pl, Queen Creek, AZ 85142

Pesaro
$745,940
- 5 bd
- 4.5 ba
- 3,948 sqft
26041 S 224Th Pl, Queen Creek, AZ 85142
- Home at address 26028 S 225Th Pl, Queen Creek, AZ 85142

Messina
$789,990
- 5 bd
- 3.5 ba
- 3,578 sqft
26028 S 225Th Pl, Queen Creek, AZ 85142
- Home at address 26043 S 224Th Wy, Queen Creek, AZ 85142

Messina
$799,990
- 5 bd
- 3.5 ba
- 578 sqft
26043 S 224Th Wy, Queen Creek, AZ 85142
- Home at address 22535 E San Tan Blvd, Queen Creek, AZ 85142

Messina
$829,475
- 5 bd
- 3.5 ba
- 3,579 sqft
22535 E San Tan Blvd, Queen Creek, AZ 85142
- Home at address 26100 S 225Th Pl, Queen Creek, AZ 85142

Messina
$839,200
- 6 bd
- 4.5 ba
- 3,827 sqft
26100 S 225Th Pl, Queen Creek, AZ 85142
- Home at address 22605 E Orchard Ln, Queen Creek, AZ 85142

Messina
$839,990
- 5 bd
- 3.5 ba
- 3,579 sqft
22605 E Orchard Ln, Queen Creek, AZ 85142
Floor plans in Harvest - Enchantment Series
About the builder - Pulte Homes

- 278communities on Jome
- 1,582homes on Jome
Neighborhood
Home address
- City:
- Queen Creek
- County:
- Maricopa
- Zip Code:
- 85142
Schools in Queen Creek Unified District
GreatSchools’ Summary Rating calculation is based on 4 of the school’s themed ratings, including test scores, student/academic progress, college readiness, and equity. This information should only be used as a reference. Jome is not affiliated with GreatSchools and does not endorse or guarantee this information. Please reach out to schools directly to verify all information and enrollment eligibility. Data provided by GreatSchools.org © 2025
Places of interest
Getting around
Noise level
A Soundscore™ rating is a number between 50 (very loud) and 100 (very quiet) that tells you how loud a location is due to environmental noise.

Considering this home?
Our expert will guide your tour, in-person or virtual
Need more information?
Text or call (888) 545-5198
Financials
Estimated monthly payment
Let us help you find your dream home
How many bedrooms are you looking for?
Similar homes nearby
Recently added communities in this area
Nearby communities in Queen Creek
New homes in nearby cities
More New Homes in Queen Creek, AZ
PCD Realty, LLC, MLS 6987825
All information should be verified by the recipient and none is guaranteed as accurate by ARMLS
Read moreLast checked Apr 1, 5:00 pm
- Jome
- New homes search
- Arizona
- Phoenix Metropolitan Area
- Maricopa County
- Queen Creek
- Harvest - Enchantment Series
- 22534 E Pegasus Pkwy, Queen Creek, AZ 85142



























