














Book your tour. Save an average of $18,473. We'll handle the rest.
- Confirmed tours
- Get matched & compare top deals
- Expert help, no pressure
- No added fees
Estimated value based on Jome data, T&C apply

























Why tour with Jome?
- No pressure toursTour at your own pace with no sales pressure
- Expert guidanceGet insights from our home buying experts
- Exclusive accessSee homes and deals not available elsewhere
Jome is featured in
- Single-Family
- Quick move-in
- $199.51/sqft
- $98/monthly HOA
Home description
About this home
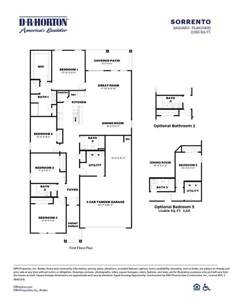
The Saguaro floor plan is a single-story home including 5 bedrooms, 3 bathrooms, and a 3-car garage. The spacious floor plan spans 2,055 sq. ft. and is ideal for any resident looking to have ample space. The foyer leads to the directly accessible kitchen, showcasing a modern design with abundant counter space, cabinetry, and state-of-the-art appliances. The living room is adjacent to the kitchen, and offers an open space for relaxation and gatherings. Its layout ensures a seamless flow from cooking to entertaining. Large sliding doors open from this space to a 12-foot-wide covered back patio. This outdoor space is perfect for entertaining or enjoying the fresh air. The primary bedroom includes a generous walk-in closet, as well as a bathroom with a dual-sink vanity. The four additional bedrooms offer flexibility as guest rooms, a private den, or a home office. Each room is designed to ensure comfort and privacy. The two additional bathrooms are located to serve both the bedrooms and common areas and are designed with functionality and style in mind. Located in the lavish community of Sorrento.
May also be listed on the D.R. Horton website
Information last verified by Jome: Today at 4:17 AM (December 14, 2025)
Home highlights
One of the largest urban parks in the U.S., offering desert trails, city views, and peaceful retreats near Phoenix.
Book your tour. Save an average of $18,473. We'll handle the rest.
We collect exclusive builder offers, book your tours, and support you from start to housewarming.
- Confirmed tours
- Get matched & compare top deals
- Expert help, no pressure
- No added fees
Estimated value based on Jome data, T&C apply
Home details
- Property status:
- Move-in ready
- Size:
- 2,055 sqft
- Stories:
- 1
- Beds:
- 5
- Baths:
- 3
- Garage spaces:
- 2
Construction details
- Builder Name:
- D.R. Horton
Home features & finishes
- Garage/Parking:
- GarageAttached GarageTandem Parking
- Interior Features:
- Walk-In ClosetFoyerPantry
- Laundry facilities:
- Utility/Laundry Room
- Property amenities:
- Covered PatioPorch
- Rooms:
- Primary Bedroom On MainKitchenFamily RoomOpen Concept FloorplanPrimary Bedroom Downstairs

Community details
Sorrento
by D.R. Horton, Maricopa, AZ
- 11 homes
- 12 plans
- 1,317 - 2,221 sqft
View Sorrento details
More homes in Sorrento
Floor plans in Sorrento
About the builder - D.R. Horton
Neighborhood
Home address
Schools in Maricopa Unified School District
- Grades PK-PKPublicsaddleback preschool2.3 mi18600 n porter rdna
- Grades PK-PKPublicsanta rosa preschool3.6 mi21400 n santa rosa drna
GreatSchools’ Summary Rating calculation is based on 4 of the school’s themed ratings, including test scores, student/academic progress, college readiness, and equity. This information should only be used as a reference. Jome is not affiliated with GreatSchools and does not endorse or guarantee this information. Please reach out to schools directly to verify all information and enrollment eligibility. Data provided by GreatSchools.org © 2025
Places of interest
Getting around
Natural hazards risk
Climate hazards can impact homes and communities, with risks varying by location. These scores reflect the potential impact of natural disasters and climate-related risks on Pinal County
Provided by FEMA

Considering this home?
Our expert will guide your tour, in-person or virtual
Need more information?
Text or call (888) 486-2818
Financials
Estimated monthly payment
Similar homes nearby
Recently added communities in this area
Nearby communities in Maricopa
New homes in nearby cities
More New Homes in Maricopa, AZ
- Jome
- New homes search
- Arizona
- Phoenix Metropolitan Area
- Pinal County
- Maricopa
- Sorrento
- 17895 N Ravello Rd, Maricopa, AZ 85138































