




- 3 bd
- 2.5 ba
- 1,768 sqft
11985 E Chavez Dr, Vail, AZ 85641
- Single-Family
- $186.65/sqft
- 141 days on Jome
New Homes for Sale Near 11985 E Chavez Dr, Vail, AZ 85641
About this Home
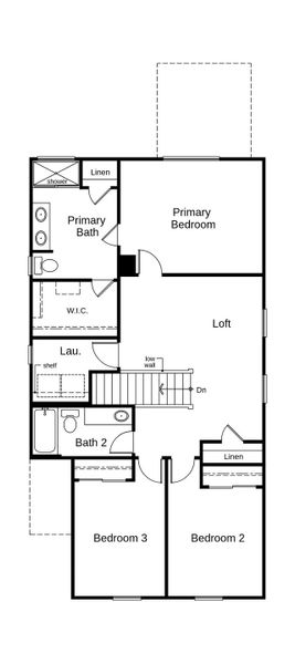
Set on a homesite with no neighboring home behind, this charming, single-story home showcases an open floor plan with 9-ft. ceilings and upgraded porcelain tile flooring throughout. The kitchen boasts granite countertops, an island, large walk-in pantry and Whirlpool® stainless steel appliances. Upstairs, a spacious loft is ideal for movie night. The primary suite features a walk-in closet and connecting bath that offers a shower and dual-sink vanity. MLS #22511466
May also be listed on the KB Home website
Information last verified by Jome: Wednesday at 1:10 AM (December 31, 2025)
Home details
- Property status:
- Sold
- Size:
- 1,768 sqft
- Stories:
- 2
- Beds:
- 3
- Baths:
- 2.5
- Garage spaces:
- 2
Construction details
- Builder Name:
- KB Home
Home features & finishes
- Garage/Parking:
- Garage

Community details
Founders Ridge
by KB Home, Vail, AZ
- 5 homes
- 9 plans
- 1,003 - 2,467 sqft
View Founders Ridge details
More homes in Founders Ridge
- Home at address 12013 E Chamrod Dr, Vail, AZ 85641

$310,990
Move-in ready- 3 bd
- 2.5 ba
- 1,512 sqft
12013 E Chamrod Dr, Vail, AZ 85641
- Home at address 12056 E Chamrod Dr, Vail, AZ 85641

$316,312
Move-in ready- 3 bd
- 2 ba
- 1,471 sqft
12056 E Chamrod Dr, Vail, AZ 85641
- Home at address 12021 E Chavez Dr, Vail, AZ 85641

$335,990
Move-in ready- 3 bd
- 2.5 ba
- 1,768 sqft
12021 E Chavez Dr, Vail, AZ 85641
- Home at address 10596 S Dominguez Dr, Vail, AZ 85641

$350,990
Move-in ready- 4 bd
- 2.5 ba
- 2,037 sqft
10596 S Dominguez Dr, Vail, AZ 85641
- Home at address 12026 E Chamrod Dr, Vail, AZ 85641

$369,990
Move-in ready- 4 bd
- 2.5 ba
- 2,467 sqft
12026 E Chamrod Dr, Vail, AZ 85641
Floor plans in Founders Ridge
About the builder - KB Home
Neighborhood
Home address
Schools in Vail Unified District
- Grades PK-PKPublicvail inclusive preschool0.9 mi12775 e mary ann cleveland wayna
- Grades M-MPublicpantano middle school1.0 mi12775 e mary ann cleveland wayna
GreatSchools’ Summary Rating calculation is based on 4 of the school’s themed ratings, including test scores, student/academic progress, college readiness, and equity. This information should only be used as a reference. Jome is not affiliated with GreatSchools and does not endorse or guarantee this information. Please reach out to schools directly to verify all information and enrollment eligibility. Data provided by GreatSchools.org © 2025
Places of interest
Getting around
Financials
Nearby communities in Vail
Homes in Vail by KB Home
Recently added communities in this area
Other Builders in Vail, AZ
Nearby sold homes
New homes in nearby cities
More New Homes in Vail, AZ
- Jome
- New homes search
- Arizona
- Pima County
- Vail
- Founders Ridge
- 11985 E Chavez Dr, Vail, AZ 85641


































































