




- 4 bd
- 2.5 ba
- 2,037 sqft
10566 S Dominguez Dr, Vail, AZ 85641
- Single-Family
- $166.91/sqft
- 231 days on Jome
New Homes for Sale Near 10566 S Dominguez Dr, Vail, AZ 85641
About this Home
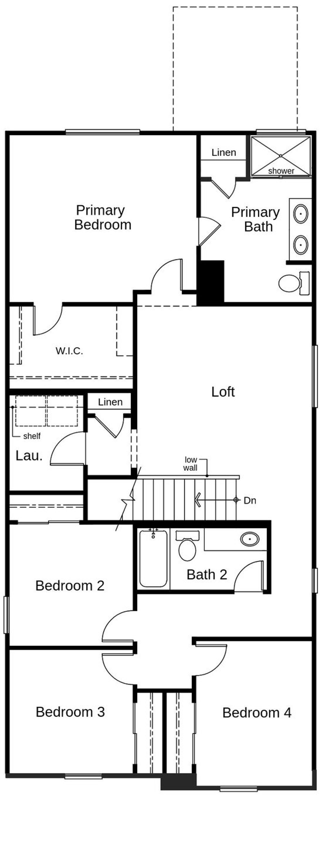
Discover modern living at its finest in this contemporary, two-story home, which showcases an open floor plan with 9-ft. ceilings and luxury vinyl plank flooring. The kitchen boasts 42-in. upper cabinets, granite countertops and a functional island. Upstairs, a spacious loft is perfect for a home office or playroom. Unwind in the primary bedroom, which features a walk-in closet and connecting bath that offers a luxurious walk-in shower. Outdoors, the serene, covered back patio is an ideal spot for relaxation. MLS #: 22505171
May also be listed on the KB Home website
Information last verified by Jome: Wednesday at 1:03 AM (December 10, 2025)
Home details
- Property status:
- Sold
- Size:
- 2,037 sqft
- Stories:
- 2
- Beds:
- 4
- Baths:
- 2.5
- Garage spaces:
- 2
Construction details
- Builder Name:
- KB Home
Home features & finishes
- Garage/Parking:
- Garage

Community details
Founders Ridge
by KB Home, Vail, AZ
- 9 plans
- 1,003 - 2,467 sqft
View Founders Ridge details
Floor plans in Founders Ridge
About the builder - KB Home
Neighborhood
Home address
Schools in Vail Unified District
- Grades PK-PKPublicvail inclusive preschool1.0 mi12775 e mary ann cleveland wayna
- Grades M-MPublicpantano middle school1.1 mi12775 e mary ann cleveland wayna
GreatSchools’ Summary Rating calculation is based on 4 of the school’s themed ratings, including test scores, student/academic progress, college readiness, and equity. This information should only be used as a reference. Jome is not affiliated with GreatSchools and does not endorse or guarantee this information. Please reach out to schools directly to verify all information and enrollment eligibility. Data provided by GreatSchools.org © 2025
Places of interest
Getting around
Financials
Nearby communities in Vail
Homes in Vail by KB Home
Recently added communities in this area
Other Builders in Vail, AZ
Nearby sold homes
New homes in nearby cities
More New Homes in Vail, AZ
- Jome
- New homes search
- Arizona
- Pima County
- Vail
- Founders Ridge
- 10566 S Dominguez Dr, Vail, AZ 85641


































































