



Book your tour. Save an average of $18,473. We'll handle the rest.
- Confirmed tours
- Get matched & compare top deals
- Expert help, no pressure
- No added fees
Estimated value based on Jome data, T&C apply
- 3 bd
- 2 ba
- 1,340 sqft
9974 W Cora Ln, Avondale, AZ 85392
Why tour with Jome?
- No pressure toursTour at your own pace with no sales pressure
- Expert guidanceGet insights from our home buying experts
- Exclusive accessSee homes and deals not available elsewhere
Jome is featured in
- Single-Family
- $316.76/sqft
- $164/monthly HOA
- 412 days on Jome
Home description
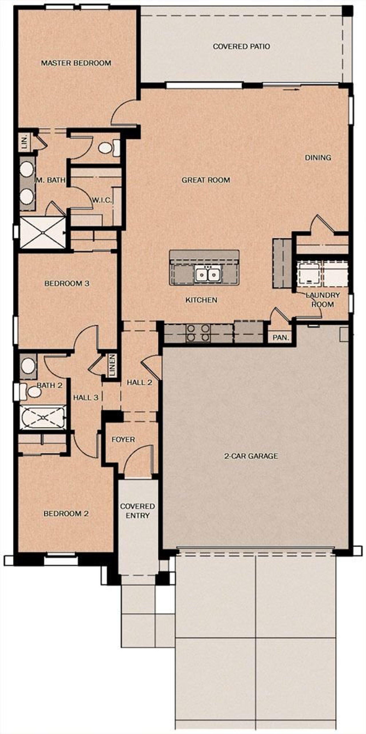
The Handley is a 1340 square foot single level home with 3 bedrooms, 2 baths and a two car garage. The HERS rating is 40.
May also be listed on the Fulton Homes website
Information last verified by Jome: Friday at 1:16 PM (July 11, 2025)
Home highlights
Iconic Glendale stadium with retractable roof, home to the Arizona Cardinals and major concerts and events.
Book your tour. Save an average of $18,473. We'll handle the rest.
We collect exclusive builder offers, book your tours, and support you from start to housewarming.
- Confirmed tours
- Get matched & compare top deals
- Expert help, no pressure
- No added fees
Estimated value based on Jome data, T&C apply
Home details
- Property status:
- Pending/Under contract
- Size:
- 1,340 sqft
- Stories:
- 1
- Beds:
- 3
- Baths:
- 2
- Garage spaces:
- 2
Construction details
- Builder Name:
- Fulton Homes
- Completion Date:
- July, 2025
Home features & finishes
- Garage/Parking:
- GarageAttached Garage
- Interior Features:
- Walk-In ClosetFoyerPantry
- Laundry facilities:
- Utility/Laundry Room
- Property amenities:
- PatioPorch
- Rooms:
- Primary Bedroom On MainKitchenDining RoomFamily RoomOpen Concept FloorplanPrimary Bedroom Downstairs

Community details
Redwood Valley at Acclaim
by Fulton Homes, Avondale, AZ
- 17 homes
- 8 plans
- 1,340 - 2,501 sqft
View Redwood Valley at Acclaim details
More homes in Redwood Valley at Acclaim
Floor plans in Redwood Valley at Acclaim
About the builder - Fulton Homes
Neighborhood
Home address
Schools in Tolleson Union High School District
GreatSchools’ Summary Rating calculation is based on 4 of the school’s themed ratings, including test scores, student/academic progress, college readiness, and equity. This information should only be used as a reference. Jome is not affiliated with GreatSchools and does not endorse or guarantee this information. Please reach out to schools directly to verify all information and enrollment eligibility. Data provided by GreatSchools.org © 2025
Places of interest
Getting around
Noise level
A Soundscore™ rating is a number between 50 (very loud) and 100 (very quiet) that tells you how loud a location is due to environmental noise.
Natural hazards risk
Climate hazards can impact homes and communities, with risks varying by location. These scores reflect the potential impact of natural disasters and climate-related risks on Maricopa County
Provided by FEMA

Considering this home?
Our expert will guide your tour, in-person or virtual
Need more information?
Text or call (888) 486-2818
Financials
Estimated monthly payment
Similar homes nearby
Recently added communities in this area
Nearby communities in Avondale
New homes in nearby cities
More New Homes in Avondale, AZ
- Home
- New homes
- Arizona
- Phoenix Metropolitan Area
- Maricopa County
- Avondale
- Redwood Valley at Acclaim
- 9974 W Cora Ln, Avondale, AZ 85392










































