













Book your tour. Save an average of $18,473. We'll handle the rest.
We collect exclusive builder offers, book your tours, and support you from start to housewarming.
- Confirmed tours
- Get matched & compare top deals
- Expert help, no pressure
- No added fees
Estimated value based on Jome data, T&C apply
- 4 bd
- 4.5 ba
- 4,628 sqft
4572 N Regent St, Buckeye, AZ 85396
Why tour with Jome?
- No pressure toursTour at your own pace with no sales pressure
- Expert guidanceGet insights from our home buying experts
- Exclusive accessSee homes and deals not available elsewhere
Jome is featured in
- Single-Family
- Under construction
- $561.8/sqft
- $138/monthly HOA
Home description
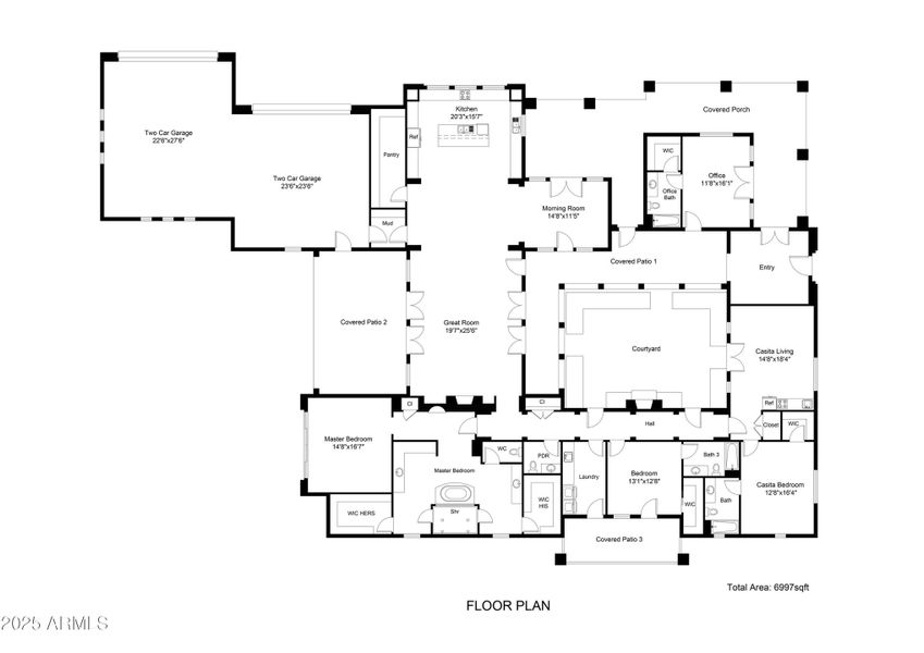
Located within the coveted custom enclave of Regent Hills in Verrado, this stunning custom estate is situated on a sprawling ¾+ acre homesite (0.82 acres) and exemplifies exceptional craftsmanship thoughtful design. Inspired by Rural Mediterranean architecture, this single-level residence offers 4 bedrooms and 4.5 baths, seamlessly blending luxury, comfort, and sophistication. At the heart of the home is a beautifully designed interior courtyard, finished with travertine pavers and featuring one of two fireplaces. The residence wraps gracefully around this courtyard, creating a seamless connection between indoor and outdoor living spaces; ideal for both everyday enjoyment and entertaining. European white oak flooring flows throughout the home, including the chef's kitchen, which is appointed with custom white oak cabinetry, striking quartz countertops, and elevated professional-grade appliances; truly a culinary showpiece. Additional interior highlights include a private casita featuring a bedroom, full bath, walk-in closet, and its own living area, all with direct access to the courtyard. The oversized four-car garage provides ample space for vehicles, recreational toys, and a golf cart. Outdoors, the backyard showcases breathtaking mountain views, a sparkling swimming pool, built-in BBQ, and elegant natural stone pavers; perfect for enjoying Arizona's outdoor lifestyle. No expense has been spared in the construction of this exceptional residence. Scheduled for completion in the first quarter of 2026, this one-of-a-kind custom home presents a rare opportunity. Inquire today to arrange a private sneak peek while the builder puts the final finishing touches on this remarkable Verrado estate. See documents tab for additional description of the features and appointments.
Keller Williams Arizona Realty, MLS 6958603
Information last verified by Jome: Today at 11:38 AM (March 7, 2026)
Home highlights
Luke Air Force Base in Glendale, Arizona, provides secure housing, top-rated schools, and abundant amenities, making it an ideal location for military families.
Book your tour. Save an average of $18,473. We'll handle the rest.
We collect exclusive builder offers, book your tours, and support you from start to housewarming.
- Confirmed tours
- Get matched & compare top deals
- Expert help, no pressure
- No added fees
Estimated value based on Jome data, T&C apply
Home details
- Property status:
- Under construction
- Lot size (acres):
- 0.82
- Size:
- 4,628 sqft
- Stories:
- 1
- Beds:
- 4
- Baths:
- 4
- Half baths:
- 1
- Garage spaces:
- 4
- Fence:
- Wrought Iron Fence, Block Fence
Construction details
- Year Built:
- 2026
- Roof:
- Concrete Roofing, Tile Roofing
Home features & finishes
- Appliances:
- Water SoftenerSprinkler System
- Construction Materials:
- StuccoWood FrameBrickStone
- Cooling:
- Ceiling Fan(s)Central Air
- Flooring:
- Wood FlooringTile Flooring
- Garage/Parking:
- Door OpenerGarageAttached Garage
- Home amenities:
- Green Construction
- Interior Features:
- Breakfast BarWalk-In PantrySeparate ShowerDouble Vanity
- Kitchen:
- Quartz countertop
- Property amenities:
- BasementPoolBackyardBBQ AreaFireplaceYard
- Rooms:
- Primary Bedroom On MainKitchenLiving RoomBreakfast AreaPrimary Bedroom Downstairs
- Security system:
- Fire Sprinkler System

Get a consultation with our New Homes Expert
- See how your home builds wealth
- Plan your home-buying roadmap
- Discover hidden gems
Utility information
- Utilities:
- Electricity Available, Natural Gas Available, High Speed Internet Access
Community amenities
- Energy Efficient
- Playground
- Fitness Center/Exercise Area
- Club House
- Golf Course
- Tennis Courts
- Community Pool
- Mountain(s) View
- Walking, Jogging, Hike Or Bike Trails
- Pickleball Court
Neighborhood
Home address
Schools in Saddle Mountain Unified School District
- Grades KG-06Privatest peter's episcopal montessori school9.3 mi400 s old litchfield rdna
- Grades KG-08Privatest thomas aquinas grade school9.6 mi13720 w thomas rdna
GreatSchools’ Summary Rating calculation is based on 4 of the school’s themed ratings, including test scores, student/academic progress, college readiness, and equity. This information should only be used as a reference. Jome is not affiliated with GreatSchools and does not endorse or guarantee this information. Please reach out to schools directly to verify all information and enrollment eligibility. Data provided by GreatSchools.org © 2025
Places of interest
Getting around
Natural hazards risk
Provided by FEMA

Considering this home?
Our expert will guide your tour, in-person or virtual
Need more information?
Text or call (888) 488-9243
Financials
Estimated monthly payment
Let us help you find your dream home
How many bedrooms are you looking for?
Similar homes nearby
Recently added communities in this area
Nearby communities in Buckeye
New homes in nearby cities
More New Homes in Buckeye, AZ
Keller Williams Arizona Realty, MLS 6958603
All information should be verified by the recipient and none is guaranteed as accurate by ARMLS
Read moreLast checked Mar 7, 11:17 am
- Jome
- New homes search
- Arizona
- Phoenix Metropolitan Area
- Maricopa County
- Buckeye
- 4572 N Regent St, Buckeye, AZ 85396




























