



Book your tour. Save an average of $18,473. We'll handle the rest.
We collect exclusive builder offers, book your tours, and support you from start to housewarming.
- Confirmed tours
- Get matched & compare top deals
- Expert help, no pressure
- No added fees
Estimated value based on Jome data, T&C apply
- 4 bd
- 3 ba
- 2,400 sqft
16378 W Avenida Del Sol, Surprise, AZ 85387
Why tour with Jome?
- No pressure toursTour at your own pace with no sales pressure
- Expert guidanceGet insights from our home buying experts
- Exclusive accessSee homes and deals not available elsewhere
Jome is featured in
- Single-Family
- $229.16/sqft
- $94/monthly HOA
- 667 days on Jome
Home description
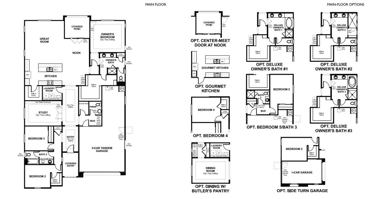
Discover this thoughtfully designed Celeste home, ready for quick move-in! Included features: a covered entry; a gourmet kitchen boasting 42" cabinets, quartz countertops, stainless-steel appliances, a center island and a generous walk-in pantry; a charming nook with center-meet patio doors; an elegant great room; a lavish primary suite showcasing additional windows, an immense walk-in closet and a private bath with double sinks; a beautiful study; a central laundry; three secondary bedrooms; two shared baths and an inviting covered patio. Thus home also offers soaring 10' ceilings, 12" x 24" stone tile flooring, cultured marble bath countertops, ceiling fan prewiring in select rooms, coach lights, front yard landscaping and concrete pavers at the driveway and walkway.
May also be listed on the Richmond American Homes website
Information last verified by Jome: Tuesday at 7:46 PM (December 10, 2024)
Book your tour. Save an average of $18,473. We'll handle the rest.
We collect exclusive builder offers, book your tours, and support you from start to housewarming.
- Confirmed tours
- Get matched & compare top deals
- Expert help, no pressure
- No added fees
Estimated value based on Jome data, T&C apply
Home details
- Property status:
- Not available
- Size:
- 2,400 sqft
- Stories:
- 1
- Beds:
- 4
- Baths:
- 3
- Garage spaces:
- 2
Construction details
- Builder Name:
- Richmond American Homes
- Completion Date:
- September, 2024
Home features & finishes
- Cooling:
- Ceiling Fan(s)
- Garage/Parking:
- GarageAttached Garage
- Interior Features:
- Walk-In ClosetTray Ceiling
- Kitchen:
- Stainless Steel AppliancesKitchen Countertop
- Laundry facilities:
- Utility/Laundry Room
- Property amenities:
- BasementCabinetsPatioYardPorch
- Rooms:
- Primary Bedroom On MainKitchenDen RoomFamily RoomPrimary Bedroom Downstairs

Get a consultation with our New Homes Expert
- See how your home builds wealth
- Plan your home-buying roadmap
- Discover hidden gems
Utility information
- Heating:
- Water Heater

Community details
The Preserve at Asante at Artisan at Asante
by Richmond American Homes, Surprise, AZ
- 5 homes
- 3 plans
- 2,398 - 2,506 sqft
View The Preserve at Asante details
More homes in The Preserve at Asante
- Home at address 16523 W Avenida Del Sol, Surprise, AZ 85387

Townsend
Savings$525,995
- 4 bd
- 3 ba
- 2,480 sqft
16523 W Avenida Del Sol, Surprise, AZ 85387
- Home at address 16494 W Creedance Blvd, Surprise, AZ 85387

Townsend
Savings$533,995
- 4 bd
- 3 ba
- 2,480 sqft
16494 W Creedance Blvd, Surprise, AZ 85387
- Home at address 16524 W Avenida Del Sol, Surprise, AZ 85387

Townsend
Savings$553,995
- 4 bd
- 3 ba
- 2,480 sqft
16524 W Avenida Del Sol, Surprise, AZ 85387
Floor plans in The Preserve at Asante
About the builder - Richmond American Homes
Neighborhood
Home address
Schools in Dysart Unified District
GreatSchools’ Summary Rating calculation is based on 4 of the school’s themed ratings, including test scores, student/academic progress, college readiness, and equity. This information should only be used as a reference. Jome is not affiliated with GreatSchools and does not endorse or guarantee this information. Please reach out to schools directly to verify all information and enrollment eligibility. Data provided by GreatSchools.org © 2025
Places of interest
Getting around
Air quality
Noise level
A Soundscore™ rating is a number between 50 (very loud) and 100 (very quiet) that tells you how loud a location is due to environmental noise.

Considering this home?
Our expert will guide your tour, in-person or virtual
Need more information?
Text or call (888) 545-5198
Financials
Let us help you find your dream home
How many bedrooms are you looking for?
Similar homes nearby
Recently added communities in this area
Nearby communities in Surprise
New homes in nearby cities
More New Homes in Surprise, AZ
- Jome
- New homes search
- Arizona
- Phoenix Metropolitan Area
- Maricopa County
- Surprise
- The Preserve at Asante
- 16378 W Avenida Del Sol, Surprise, AZ 85387




























