












































- 4 bd
- 2.5 ba
- 2,870 sqft
Concept 2870 plan in Chisholm Hills by Landsea Homes
New Homes for Sale Near 902 Misty Ln, Cleburne, TX 76033
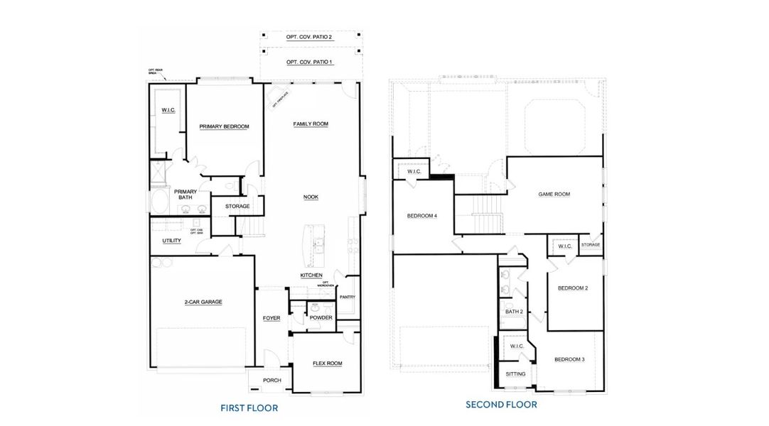
About this Plan
May also be listed on the Landsea Homes website
Information last verified by Jome: Tuesday at 4:50 PM (November 4, 2025)
Plan details
- Name:
- Concept 2870
- Property status:
- Sold
- Size:
- 2,870 sqft
- Stories:
- 2
- Beds:
- 4
- Baths:
- 2.5
- Garage spaces:
- 2
Plan features & finishes
- Garage/Parking:
- GarageAttached Garage
- Interior Features:
- Walk-In ClosetFoyerPantry
- Kitchen:
- Kitchen Island
- Laundry facilities:
- Utility/Laundry Room
- Property amenities:
- Porch
- Rooms:
- Flex RoomPrimary Bedroom On MainKitchenNookPowder RoomGame RoomDining RoomFamily RoomBreakfast AreaOpen Concept FloorplanPrimary Bedroom Downstairs
- Upgrade Options:
- Covered PatioOffice/StudyGarage BayExtra BathroomExtra BedroomFireplaceExtended Patio
See the full plan layout
Download the floor plan PDF with room dimensions and home design details.

Instant download, no cost

Community details
Chisholm Hills
by Landsea Homes, Cleburne, TX
- 3 homes
- 5 plans
- 1,503 - 2,515 sqft
View Chisholm Hills details
Want to know more about what's around here?
The Concept 2870 floor plan is part of Chisholm Hills, a new home community by Landsea Homes, located in Cleburne, TX. Visit the Chisholm Hills community page for full neighborhood insights, including nearby schools, shopping, walk & bike-scores, commuting, air quality & natural hazards.

Available homes in Chisholm Hills
More floor plans in Chisholm Hills
Financials
Nearby communities in Cleburne
Homes in Cleburne by Landsea Homes
Recently added communities in this area
Other Builders in Cleburne, TX
Nearby sold homes
New homes in nearby cities
More New Homes in Cleburne, TX
- Home
- New homes
- Texas
- Dallas-Fort Worth Area
- Johnson County
- Cleburne
- Chisholm Hills
- 902 Misty Ln, Cleburne, TX 76033



































































