














Book your tour. Save an average of $18,473. We'll handle the rest.
- Confirmed tours
- Get matched & compare top deals
- Expert help, no pressure
- No added fees
Estimated value based on Jome data, T&C apply

















- 3 bd
- 2 ba
- 1,849 sqft
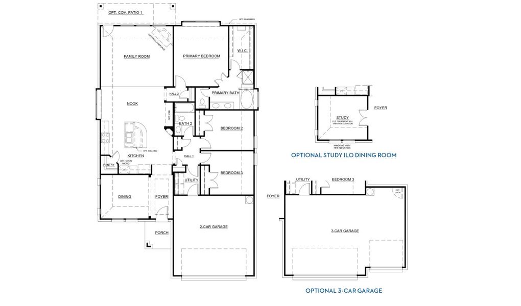
Concept 1849 plan in Chisholm Hills by Landsea Homes
Visit the community to experience this floor plan
Why tour with Jome?
- No pressure toursTour at your own pace with no sales pressure
- Expert guidanceGet insights from our home buying experts
- Exclusive accessSee homes and deals not available elsewhere
Jome is featured in
Plan description
May also be listed on the Landsea Homes website
Information last verified by Jome: Sunday at 2:07 PM (November 30, 2025)
Plan highlights
Plan details
- Name:
- Concept 1849
- Property status:
- Floor plan
- Size:
- 1,849 sqft
- Stories:
- 1
- Beds:
- 3
- Baths:
- 2
- Garage spaces:
- 2
Plan features & finishes
- Garage/Parking:
- GarageAttached Garage
- Interior Features:
- Walk-In ClosetFoyerPantry
- Kitchen:
- Kitchen Island
- Laundry facilities:
- Utility/Laundry Room
- Property amenities:
- Porch
- Rooms:
- Primary Bedroom On MainKitchenNookDining RoomOpen Concept FloorplanPrimary Bedroom Downstairs
- Upgrade Options:
- Covered PatioOffice/StudyGarage BayFireplace
See the full plan layout
Download the floor plan PDF with room dimensions and home design details.

Instant download, no cost

Community details
Chisholm Hills
by Landsea Homes, Cleburne, TX
- 3 homes
- 5 plans
- 1,503 - 2,515 sqft
View Chisholm Hills details
Want to know more about what's around here?
The Concept 1849 floor plan is part of Chisholm Hills, a new home community by Landsea Homes, located in Cleburne, TX. Visit the Chisholm Hills community page for full neighborhood insights, including nearby schools, shopping, walk & bike-scores, commuting, air quality & natural hazards.

Homes built from this plan
Available homes in Chisholm Hills
More floor plans in Chisholm Hills

Considering this plan?
Our expert will guide your tour, in-person or virtual
Need more information?
Text or call (888) 486-2818
Financials
Estimated monthly payment
Similar homes nearby
Recently added communities in this area
Nearby communities in Cleburne
New homes in nearby cities
More New Homes in Cleburne, TX
- Home
- New homes
- Texas
- Dallas-Fort Worth Area
- Johnson County
- Cleburne
- Chisholm Hills
- 902 Misty Ln, Cleburne, TX 76033































