














Book your tour. Save an average of $18,473. We'll handle the rest.
We collect exclusive builder offers, book your tours, and support you from start to housewarming.
- Confirmed tours
- Get matched & compare top deals
- Expert help, no pressure
- No added fees
Estimated value based on Jome data, T&C apply





















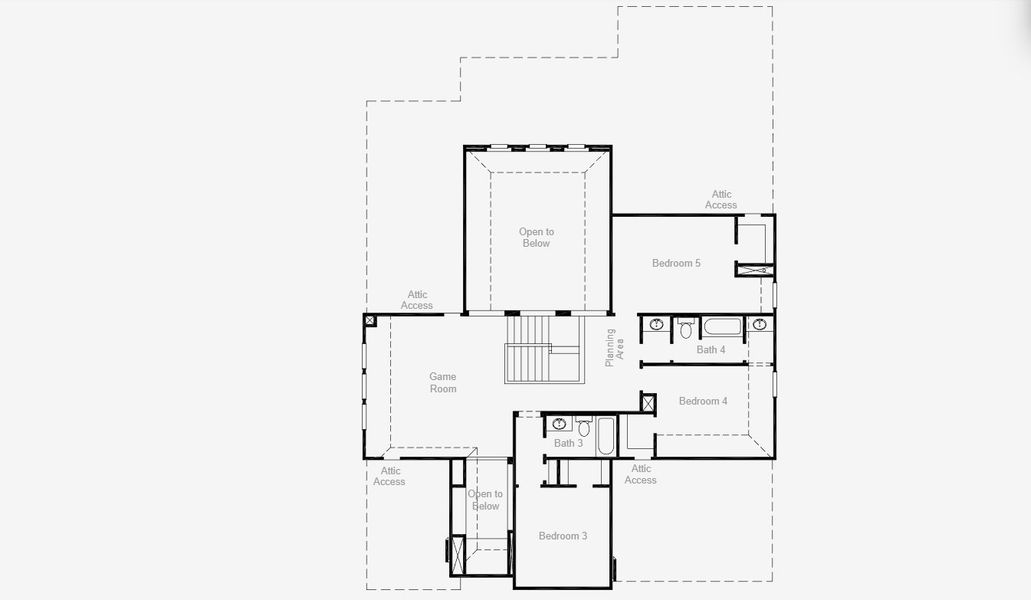
- 5 bd
- 4 ba
- 3,780 sqft
Humble plan in Dominion of Pleasant Valley by Coventry Homes
Visit the community to experience this floor plan
Why tour with Jome?
- No pressure toursTour at your own pace with no sales pressure
- Expert guidanceGet insights from our home buying experts
- Exclusive accessSee homes and deals not available elsewhere
Jome is featured in
Plan description
May also be listed on the Coventry Homes website
Information last verified by Jome: Today at 2:46 AM (February 28, 2026)
Plan highlights
Plan details
- Name:
- Humble
- Property status:
- Floor plan
- Collection:
- Dominion of Pleasant Valley 60'
- Lot width (feet):
- 60
- Size:
- 3,780 sqft
- Stories:
- 2
- Beds:
- 5
- Baths:
- 4
- Garage spaces:
- 3
Plan features & finishes
- Garage/Parking:
- GarageAttached Garage
- Interior Features:
- Walk-In ClosetFoyerPantryStaircases
- Kitchen:
- Kitchen Island
- Laundry facilities:
- Utility/Laundry Room
- Property amenities:
- Butler's Pantry
- Rooms:
- Primary Bedroom On MainKitchenGame RoomOffice/StudyDining RoomFamily RoomOpen Concept FloorplanPrimary Bedroom Downstairs
- Upgrade Options:
- Extended GaragePowder RoomMedia RoomAlternate KitchenGarage BayOutdoor FireplaceFireplace

Get a consultation with our New Homes Expert
- See how your home builds wealth
- Plan your home-buying roadmap
- Discover hidden gems
See the full plan layout
Download the floor plan PDF with room dimensions and home design details.

Instant download, no cost

Community details
Dominion of Pleasant Valley at Dominion of Pleasant Valley
by Coventry Homes, Wylie, TX
- 6 homes
- 23 plans
- 2,092 - 4,250 sqft
View Dominion of Pleasant Valley details
Community amenities
- Community Pool
- Amenity Center
- Community Pond
- Walking, Jogging, Hike Or Bike Trails
Want to know more about what's around here?
The Humble floor plan is part of Dominion of Pleasant Valley, a new home community by Coventry Homes, located in Wylie, TX. Visit the Dominion of Pleasant Valley community page for full neighborhood insights, including nearby schools, shopping, walk & bike-scores, commuting, air quality & natural hazards.

Available homes in Dominion of Pleasant Valley
- Home at address 905 Goldenwave Trl, Wylie, TX 75098

Home
Dominion of Pleasant Valley 50'
$524,272
- 3 bd
- 2 ba
- 2,092 sqft
905 Goldenwave Trl, Wylie, TX 75098
- Home at address 914 Goldenwave Trl, Wylie, TX 75098

Home
Dominion of Pleasant Valley 50'
$548,775
- 3 bd
- 2 ba
- 2,110 sqft
914 Goldenwave Trl, Wylie, TX 75098
- Home at address 911 Goldenwave Trl, Wylie, TX 75098

Home
Dominion of Pleasant Valley 50'
$659,577
- 4 bd
- 4.5 ba
- 3,259 sqft
911 Goldenwave Trl, Wylie, TX 75098
- Home at address 407 Meadow Holly Dr, Wylie, TX 75098

Home
Dominion of Pleasant Valley 50'
$660,004
- 4 bd
- 4.5 ba
- 3,259 sqft
407 Meadow Holly Dr, Wylie, TX 75098
- Home at address 928 Germander, Wylie, TX 75098

Home
Dominion of Pleasant Valley 60'
$673,949
- 4 bd
- 3.5 ba
- 2,902 sqft
928 Germander, Wylie, TX 75098
- Home at address 1021 Coralberry Wy, Wylie, TX 75098

Home
$694,200
- 4 bd
- 4 ba
- 2,932 sqft
1021 Coralberry Wy, Wylie, TX 75098
More floor plans in Dominion of Pleasant Valley

Considering this plan?
Our expert will guide your tour, in-person or virtual
Need more information?
Text or call (888) 488-9243
Financials
Estimated monthly payment
Let us help you find your dream home
How many bedrooms are you looking for?
Similar homes nearby
Recently added communities in this area
Nearby communities in Wylie
New homes in nearby cities
More New Homes in Wylie, TX
- Jome
- New homes search
- Texas
- Dallas-Fort Worth Area
- Dallas County
- Wylie
- Dominion of Pleasant Valley
- Dominion of Pleasant Valley 60'
- 200 Dominion Dr, Wylie, TX 75098



























