










Book your tour. Save an average of $18,473. We'll handle the rest.
- Confirmed tours
- Get matched & compare top deals
- Expert help, no pressure
- No added fees
Estimated value based on Jome data, T&C apply





















































- 3 bd
- 3.5 ba
- 2,938 sqft
218 Plan plan in Harvest Green by Highland Homes
Visit the community to experience this floor plan
Why tour with Jome?
- No pressure toursTour at your own pace with no sales pressure
- Expert guidanceGet insights from our home buying experts
- Exclusive accessSee homes and deals not available elsewhere
Jome is featured in
Plan description
May also be listed on the Highland Homes website
Information last verified by Jome: Today at 12:53 AM (December 5, 2025)
Plan highlights
Plan details
- Name:
- 218 Plan
- Property status:
- Floor plan
- Lot width (feet):
- 65
- Size:
- 2,938 sqft
- Stories:
- 1
- Beds from:
- 3
- Beds to:
- 4
- Baths from:
- 3
- Baths to:
- 4
- Half baths:
- 1
- Garage spaces:
- 3
Plan features & finishes
- Garage/Parking:
- GarageAttached GarageTandem Parking
- Interior Features:
- Walk-In ClosetPantry
- Kitchen:
- Kitchen Island
- Laundry facilities:
- Utility/Laundry Room
- Property amenities:
- BasementOutdoor Living
- Rooms:
- Primary Bedroom On MainKitchenOffice/StudyDining RoomFamily RoomOpen Concept FloorplanPrimary Bedroom Downstairs
- Upgrade Options:
- Freestanding TubExtended Outdoor LivingSliding Glass DoorsExtended Primary BedroomOptional Multi-Gen SuiteOutdoor FireplaceFireplace
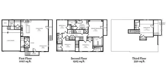
See the full plan layout
Download the floor plan PDF with room dimensions and home design details.

Instant download, no cost

Community details
Harvest Green at Harvest Green
by Highland Homes, Richmond, TX
- 10 plans
- 2,792 - 3,979 sqft
View Harvest Green details
Want to know more about what's around here?
The 218 Plan floor plan is part of Harvest Green, a new home community by Highland Homes, located in Richmond, TX. Visit the Harvest Green community page for full neighborhood insights, including nearby schools, shopping, walk & bike-scores, commuting, air quality & natural hazards.

Homes built from this plan
More floor plans in Harvest Green

Considering this plan?
Our expert will guide your tour, in-person or virtual
Need more information?
Text or call (888) 486-2818
Financials
Estimated monthly payment
Similar homes nearby
Recently added communities in this area
Nearby communities in Richmond
New homes in nearby cities
More New Homes in Richmond, TX
- Home
- New homes
- Texas
- Greater Houston Area
- Fort Bend County
- Richmond
- Harvest Green
- 2314 Home Sweet Home St, Richmond, TX 77406

































