




















































- 4 bd
- 3.5 ba
- 3,745 sqft
223 Plan plan in Harvest Green by Highland Homes
New Homes for Sale Near 2314 Home Sweet Home St, Richmond, TX 77406
About this Plan
May also be listed on the Highland Homes website
Information last verified by Jome: Tuesday at 12:49 AM (December 16, 2025)
Plan details
- Name:
- 223 Plan
- Property status:
- Sold
- Lot width (feet):
- 65
- Size:
- 3,745 sqft
- Stories:
- 2
- Beds from:
- 4
- Beds to:
- 5
- Baths from:
- 3
- Baths to:
- 4
- Half baths from:
- 1
- Half baths to:
- 2
- Garage spaces:
- 3
Plan features & finishes
- Garage/Parking:
- GarageAttached GarageTandem Parking
- Interior Features:
- Walk-In ClosetPantryStaircases
- Laundry facilities:
- Utility/Laundry Room
- Property amenities:
- Outdoor Living
- Rooms:
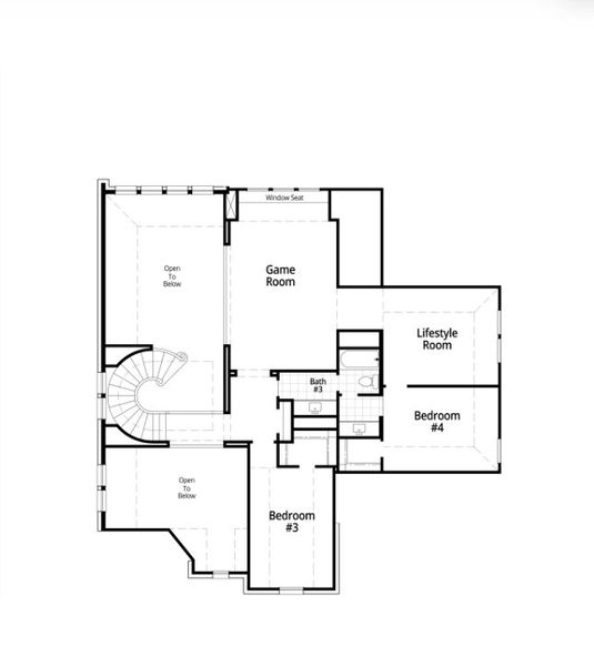
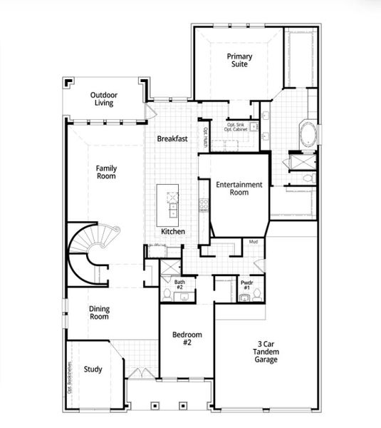
- Primary Bedroom On MainKitchenGame RoomOffice/StudyDining RoomFamily RoomOpen Concept FloorplanPrimary Bedroom Downstairs
- Upgrade Options:
- Extended Outdoor LivingSliding Glass DoorsExtended Primary BedroomOptional Multi-Gen SuitePowder RoomExtra BathroomOutdoor FireplaceExtra BedroomFireplace
See the full plan layout
Download the floor plan PDF with room dimensions and home design details.

Instant download, no cost

Community details
Harvest Green at Harvest Green
by Highland Homes, Richmond, TX
- 1 home
- 2,792 - 4,098 sqft
View Harvest Green details
Want to know more about what's around here?
The 223 Plan floor plan is part of Harvest Green, a new home community by Highland Homes, located in Richmond, TX. Visit the Harvest Green community page for full neighborhood insights, including nearby schools, shopping, walk & bike-scores, commuting, air quality & natural hazards.

Homes built from this plan
Available homes in Harvest Green
- Home at address 718 Native Meadow Dr, Richmond, TX 77406

$818,060
Move-in ready- 4 bd
- 4.5 ba
- 3,210 sqft
718 Native Meadow Dr, Richmond, TX 77406
Financials
Nearby communities in Richmond
Homes in Richmond by Highland Homes
Recently added communities in this area
Other Builders in Richmond, TX
Nearby sold homes
New homes in nearby cities
More New Homes in Richmond, TX
- Jome
- New homes search
- Texas
- Greater Houston Area
- Fort Bend County
- Richmond
- Harvest Green
- 2314 Home Sweet Home St, Richmond, TX 77406



































































