






Book your tour. Save an average of $18,473. We'll handle the rest.
We collect exclusive builder offers, book your tours, and support you from start to housewarming.
- Confirmed tours
- Get matched & compare top deals
- Expert help, no pressure
- No added fees
Estimated value based on Jome data, T&C apply



- 4 bd
- 2.5 ba
- 2,249 sqft
Berkshire plan in Legacy Hills by Beazer Homes
Visit the community to experience this floor plan
Why tour with Jome?
- No pressure toursTour at your own pace with no sales pressure
- Expert guidanceGet insights from our home buying experts
- Exclusive accessSee homes and deals not available elsewhere
Jome is featured in
Plan description
May also be listed on the Beazer Homes website
Information last verified by Jome: Today at 9:02 AM (April 14, 2026)
Plan highlights
Special attention is paid to environmental friendliness, energy efficiency, water use and materials.
Plan details
- Name:
- Berkshire
- Property type:
- Floor plan
- Community:
- Legacy Hills
- Builder:
- Beazer Homes
- Size:
- 2,249 sqft
- Stories:
- 2
- Beds:
- 4
- Baths:
- 2.5
- Garage spaces:
- 2
Plan features & finishes
- Garage/Parking:
- GarageAttached Garage
- Interior Features:
- Walk-In ClosetFoyerPantryLoft
- Laundry facilities:
- Utility/Laundry Room
- Property amenities:
- PatioPorch
- Rooms:
- Great RoomPrimary Bedroom On MainKitchenPowder RoomOffice/StudyMudroomDining RoomOpen Concept FloorplanPrimary Bedroom Downstairs
- Upgrade Options:
- Alternate Primary BathAlternate KitchenFireplaceExtended Patio

Get a consultation with our New Homes Expert
- See how your home builds wealth
- Plan your home-buying roadmap
- Discover hidden gems
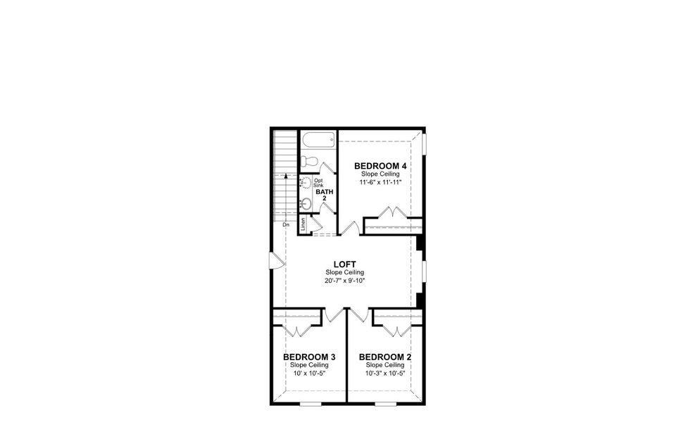
See the full plan layout
Download the floor plan PDF with room dimensions and home design details.

Instant download, no cost

Community details
Legacy Hills
by Beazer Homes, Rio Medina, TX
- 7 plans
- 1,632 - 2,748 sqft
View Legacy Hills details
Want to know more about what's around here?
The Berkshire floor plan is part of Legacy Hills, a new home community by Beazer Homes, located in Rio Medina, TX. Visit the Legacy Hills community page for full neighborhood insights, including nearby schools, shopping, walk & bike-scores, commuting, air quality & natural hazards.

More floor plans in Legacy Hills

Considering this plan?
Our expert will guide your tour, in-person or virtual
Need more information?
Text or call (888) 545-5198
Financials
Let us help you find your dream home
How many bedrooms are you looking for?
Similar homes nearby
Recently added communities in this area
Nearby communities in Rio Medina
New homes in nearby cities
More New Homes in Rio Medina, TX
- Jome
- New homes search
- Texas
- Medina County
- Rio Medina
- Legacy Hills
- Rio Medina, TX 78066





























