




Book your tour. Save an average of $18,473. We'll handle the rest.
- Confirmed tours
- Get matched & compare top deals
- Expert help, no pressure
- No added fees
Estimated value based on Jome data, T&C apply
- 2 bd
- 2.5 ba
- 1,075 sqft
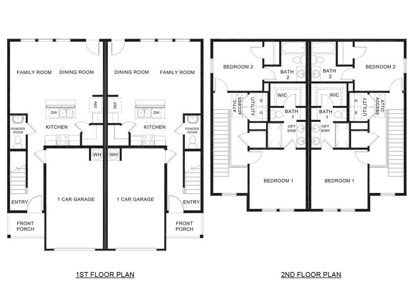
Alexandria plan in Stonewood by D.R. Horton
Visit the community to experience this floor plan
Why tour with Jome?
- No pressure toursTour at your own pace with no sales pressure
- Expert guidanceGet insights from our home buying experts
- Exclusive accessSee homes and deals not available elsewhere
Jome is featured in
Plan description
May also be listed on the D.R. Horton website
Information last verified by Jome: Today at 1:24 AM (February 3, 2026)
Book your tour. Save an average of $18,473. We'll handle the rest.
We collect exclusive builder offers, book your tours, and support you from start to housewarming.
- Confirmed tours
- Get matched & compare top deals
- Expert help, no pressure
- No added fees
Estimated value based on Jome data, T&C apply
Plan details
- Name:
- Alexandria
- Property status:
- Floor plan
- Size:
- 1,075 sqft
- Stories:
- 2
- Beds:
- 2
- Baths:
- 2.5
- Garage spaces:
- 1
Plan features & finishes
- Garage/Parking:
- Garage

Get a consultation with our New Homes Expert
- See how your home builds wealth
- Plan your home-buying roadmap
- Discover hidden gems

Community details
Stonewood
by D.R. Horton, Sulphur Springs, TX
- 3 plans
- 1,075 - 1,742 sqft
View Stonewood details
Want to know more about what's around here?
The Alexandria floor plan is part of Stonewood, a new home community by D.R. Horton, located in Sulphur Springs, TX. Visit the Stonewood community page for full neighborhood insights, including nearby schools, shopping, walk & bike-scores, commuting, air quality & natural hazards.

More floor plans in Stonewood

Considering this plan?
Our expert will guide your tour, in-person or virtual
Need more information?
Text or call (888) 486-2818
Financials
Estimated monthly payment
Let us help you find your dream home
How many bedrooms are you looking for?
Recently added communities in this area
Nearby communities in Sulphur Springs
New homes in nearby cities
More New Homes in Sulphur Springs, TX
- Jome
- New homes search
- Texas
- Hopkins County
- Sulphur Springs
- Stonewood
- Sulphur Springs, TX 75482





