














Book your tour. Save an average of $18,473. We'll handle the rest.
- Confirmed tours
- Get matched & compare top deals
- Expert help, no pressure
- No added fees
Estimated value based on Jome data, T&C apply






















- 4 bd
- 4.5 ba
- 4,214 sqft
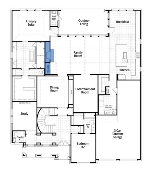
Altamura plan in Ridgeline: 70ft. lots by Highland Homes
Visit the community to experience this floor plan
Why tour with Jome?
- No pressure toursTour at your own pace with no sales pressure
- Expert guidanceGet insights from our home buying experts
- Exclusive accessSee homes and deals not available elsewhere
Jome is featured in
Plan description
May also be listed on the Highland Homes website
Information last verified by Jome: Today at 12:50 AM (January 31, 2026)
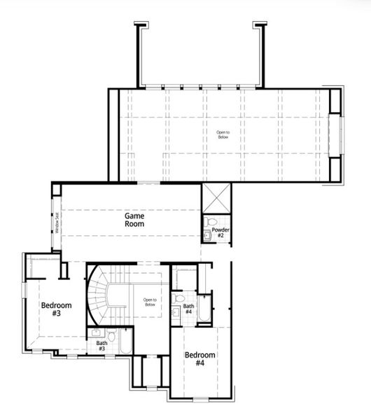
Plan details
- Name:
- Altamura
- Property status:
- Floor plan
- Lot width (feet):
- 70
- Size:
- 4,214 sqft
- Stories:
- 2
- Beds from:
- 4
- Beds to:
- 5
- Baths from:
- 4
- Baths to:
- 5
- Half baths:
- 3
- Garage spaces:
- 3
Plan features & finishes
- Garage/Parking:
- GarageAttached GarageTandem Parking
- Interior Features:
- Walk-In ClosetPantry
- Kitchen:
- Kitchen Island
- Laundry facilities:
- Utility/Laundry Room
- Property amenities:
- Outdoor Living
- Rooms:
- Primary Bedroom On MainKitchenPowder RoomGame RoomOffice/StudyDining RoomFamily RoomBreakfast AreaOpen Concept FloorplanPrimary Bedroom Downstairs
- Upgrade Options:
- Extended Outdoor LivingSliding Glass DoorsExtended Primary BedroomExtra BathroomOutdoor FireplaceExtra BedroomFireplace

Get a consultation with our New Homes Expert
- See how your home builds wealth
- Plan your home-buying roadmap
- Discover hidden gems
See the full plan layout
Download the floor plan PDF with room dimensions and home design details.

Instant download, no cost

Community details
Ridgeline: 70ft. lots at Ridgeline
by Highland Homes, McKinney, TX
- 13 plans
- 3,208 - 4,789 sqft
View Ridgeline: 70ft. lots details
Want to know more about what's around here?
The Altamura floor plan is part of Ridgeline: 70ft. lots, a new home community by Highland Homes, located in McKinney, TX. Visit the Ridgeline: 70ft. lots community page for full neighborhood insights, including nearby schools, shopping, walk & bike-scores, commuting, air quality & natural hazards.

More floor plans in Ridgeline: 70ft. lots

Considering this plan?
Our expert will guide your tour, in-person or virtual
Need more information?
Text or call (888) 486-2818
Financials
Estimated monthly payment
Let us help you find your dream home
How many bedrooms are you looking for?






























