







Book your tour. Save an average of $18,473. We'll handle the rest.
We collect exclusive builder offers, book your tours, and support you from start to housewarming.
- Confirmed tours
- Get matched & compare top deals
- Expert help, no pressure
- No added fees
Estimated value based on Jome data, T&C apply

































































- 4 bd
- 4 ba
- 2,982 sqft
Cambridge plan in Ridgeline by Highland Homes
Visit the community to experience this floor plan
Why tour with Jome?
- No pressure toursTour at your own pace with no sales pressure
- Expert guidanceGet insights from our home buying experts
- Exclusive accessSee homes and deals not available elsewhere
Jome is featured in
Plan description
May also be listed on the Highland Homes website
Information last verified by Jome: Today at 1:00 AM (April 24, 2026)
Plan details
- Name:
- Cambridge
- Property type:
- Floor plan
- Community:
- Ridgeline
- Builder:
- Highland Homes
- Collection:
- Ridgeline: 50ft. lots
- Lot width (feet):
- 50
- Size:
- 2,982 sqft
- Stories:
- 2
- Beds from:
- 4
- Beds to:
- 5
- Baths from:
- 4
- Baths to:
- 5
- Half baths to:
- 2
- Garage spaces:
- 2
Plan features & finishes
- Garage/Parking:
- GarageAttached Garage
- Interior Features:
- Walk-In ClosetPantryStorage
- Kitchen:
- Kitchen Island
- Laundry facilities:
- Utility/Laundry Room
- Property amenities:
- Patio
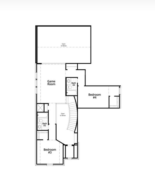
- Rooms:
- Primary Bedroom On MainKitchenGame RoomDining RoomFamily RoomPrimary Bedroom Downstairs
- Upgrade Options:
- Bay WindowsFlex RoomFreestanding TubExtended Outdoor LivingPowder BathSliding Glass DoorsShower in Primary BathExtra BathroomPocket OfficeExtra BedroomFireplace

Get a consultation with our New Homes Expert
- See how your home builds wealth
- Plan your home-buying roadmap
- Discover hidden gems
See the full plan layout
Download the floor plan PDF with room dimensions and home design details.

Instant download, no cost

Community details
Ridgeline at Ridgeline
by Highland Homes, McKinney, TX
- 37 plans
- 1,944 - 4,789 sqft
View Ridgeline details
Want to know more about what's around here?
The Cambridge floor plan is part of Ridgeline, a new home community by Highland Homes, located in McKinney, TX. Visit the Ridgeline community page for full neighborhood insights, including nearby schools, shopping, walk & bike-scores, commuting, air quality & natural hazards.

More floor plans in Ridgeline

Considering this plan?
Our expert will guide your tour, in-person or virtual
Need more information?
Text or call (888) 545-5198
Financials
Estimated monthly payment
Let us help you find your dream home
How many bedrooms are you looking for?



























