













Book your tour. Save an average of $18,473. We'll handle the rest.
We collect exclusive builder offers, book your tours, and support you from start to housewarming.
- Confirmed tours
- Get matched & compare top deals
- Expert help, no pressure
- No added fees
Estimated value based on Jome data, T&C apply








- 4 bd
- 3 ba
- 2,694 sqft
2694W plan in Meraki by Perry Homes
Visit the community to experience this floor plan
Why tour with Jome?
- No pressure toursTour at your own pace with no sales pressure
- Expert guidanceGet insights from our home buying experts
- Exclusive accessSee homes and deals not available elsewhere
Jome is featured in
Plan description
May also be listed on the Perry Homes website
Information last verified by Jome: Today at 6:04 AM (March 17, 2026)
Plan details
- Name:
- 2694W
- Property type:
- Floor plan
- Community:
- Meraki
- Builder:
- Perry Homes
- Collection:
- Meraki 50'
- Lot width (feet):
- 50
- Size:
- 2,694 sqft
- Stories:
- 2
- Beds:
- 4
- Baths:
- 3
- Garage spaces:
- 2
Plan features & finishes
- Garage/Parking:
- GarageAttached Garage
- Interior Features:
- Walk-In ClosetPantry
- Kitchen:
- Kitchen Island
- Laundry facilities:
- Utility/Laundry Room
- Property amenities:
- Two-Story Entry FoyerPatioPorch
- Rooms:
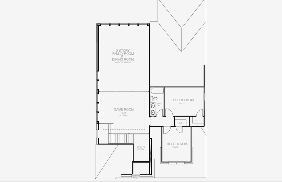
- Primary Bedroom On MainKitchenTwo-Story Great RoomGame RoomOffice/StudyDining RoomOpen Concept FloorplanPrimary Bedroom Downstairs
- Upgrade Options:
- Freestanding TubExtra Half BathAlternate KitchenExtra BathroomSliding DoorsExtra BedroomFireplace

Get a consultation with our New Homes Expert
- See how your home builds wealth
- Plan your home-buying roadmap
- Discover hidden gems
See the full plan layout
Download the floor plan PDF with room dimensions and home design details.

Instant download, no cost

Community details
Meraki at Meraki
by Perry Homes, Forney, TX
- 16 homes
- 31 plans
- 1,910 - 3,553 sqft
View Meraki details
Want to know more about what's around here?
The 2694W floor plan is part of Meraki, a new home community by Perry Homes, located in Forney, TX. Visit the Meraki community page for full neighborhood insights, including nearby schools, shopping, walk & bike-scores, commuting, air quality & natural hazards.

Homes built from this plan
Available homes in Meraki
- Home at address 2646 Brooklyn St, Forney, TX 75126

1942W
Meraki 45'
$399,900
- 4 bd
- 3 ba
- 1,942 sqft
2646 Brooklyn St, Forney, TX 75126
- Home at address 2636 Brooklyn St, Forney, TX 75126

2049W
Meraki 45'
$474,900
- 4 bd
- 3 ba
- 2,049 sqft
2636 Brooklyn St, Forney, TX 75126
- Home at address 2649 Brooklyn St, Forney, TX 75126

1992W
Meraki 45'
$474,900
- 4 bd
- 2.5 ba
- 1,992 sqft
2649 Brooklyn St, Forney, TX 75126
- Home at address 2817 Standing Cypress St, Forney, TX 75126

2049W
Meraki 45'
$499,900
- 4 bd
- 3 ba
- 2,049 sqft
2817 Standing Cypress St, Forney, TX 75126
- Home at address 2215 Prickly Cactus St, Forney, TX 75126

2504W
Meraki 50'
$499,900
- 4 bd
- 3 ba
- 2,504 sqft
2215 Prickly Cactus St, Forney, TX 75126
- Home at address 2835 Standing Cypress St, Forney, TX 75126

2426W
Meraki 45'
$540,900
- 4 bd
- 3 ba
- 2,426 sqft
2835 Standing Cypress St, Forney, TX 75126
More floor plans in Meraki

Considering this plan?
Our expert will guide your tour, in-person or virtual
Need more information?
Text or call (888) 545-5198
Financials
Estimated monthly payment
Let us help you find your dream home
How many bedrooms are you looking for?
Similar homes nearby
Recently added communities in this area
Nearby communities in Forney
New homes in nearby cities
More New Homes in Forney, TX
- Jome
- New homes search
- Texas
- Dallas-Fort Worth Area
- Kaufman County
- Forney
- Meraki
- Meraki 50'
- 1701 Meraki Pkwy, Forney, TX 75126
































