














Book your tour. Save an average of $18,473. We'll handle the rest.
- Confirmed tours
- Get matched & compare top deals
- Expert help, no pressure
- No added fees
Estimated value based on Jome data, T&C apply






















- 4 bd
- 3.5 ba
- 3,560 sqft
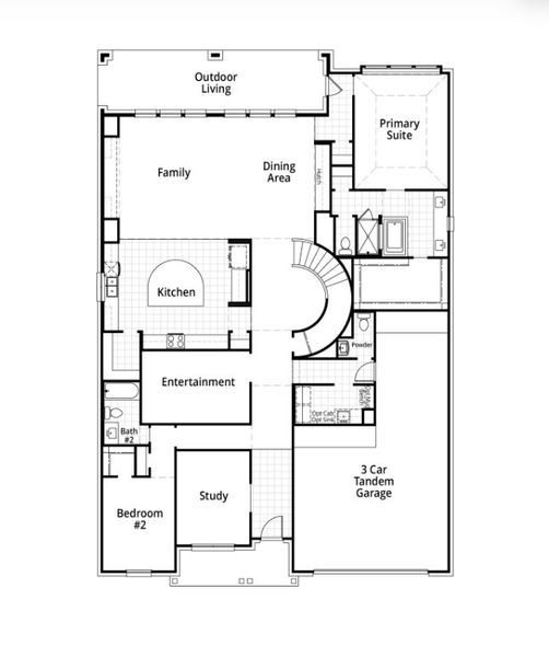
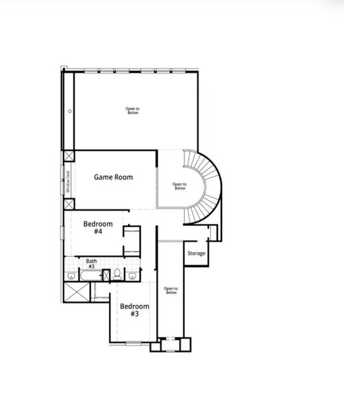
Telford plan in Meraki: 60ft. lots by Highland Homes
Visit the community to experience this floor plan
Why tour with Jome?
- No pressure toursTour at your own pace with no sales pressure
- Expert guidanceGet insights from our home buying experts
- Exclusive accessSee homes and deals not available elsewhere
Jome is featured in
Plan description
May also be listed on the Highland Homes website
Information last verified by Jome: Today at 10:24 AM (January 20, 2026)
Plan details
- Name:
- Telford
- Property status:
- Floor plan
- Lot width (feet):
- 60
- Size:
- 3,560 sqft
- Stories:
- 2
- Beds from:
- 4
- Beds to:
- 5
- Baths from:
- 3
- Baths to:
- 4
- Half baths from:
- 1
- Half baths to:
- 2
- Garage spaces:
- 3
Plan features & finishes
- Garage/Parking:
- GarageAttached Garage
- Interior Features:
- Walk-In ClosetPantryStorage
- Kitchen:
- Kitchen Island
- Laundry facilities:
- Utility/Laundry Room
- Property amenities:
- Patio
- Rooms:
- Primary Bedroom On MainKitchenGame RoomDining RoomFamily RoomOpen Concept FloorplanPrimary Bedroom Downstairs
- Upgrade Options:
- Bay WindowsExtended Outdoor LivingPowder BathSliding Glass DoorsExtended Primary BedroomExtra BathroomExtra BedroomFireplaceLaundry Cabinets

Get a consultation with our New Homes Expert
- See how your home builds wealth
- Plan your home-buying roadmap
- Discover hidden gems
See the full plan layout
Download the floor plan PDF with room dimensions and home design details.

Instant download, no cost

Community details
Meraki: 60ft. lots at Meraki
by Highland Homes, Forney, TX
- 4 homes
- 13 plans
- 2,573 - 3,799 sqft
View Meraki: 60ft. lots details
Want to know more about what's around here?
The Telford floor plan is part of Meraki: 60ft. lots, a new home community by Highland Homes, located in Forney, TX. Visit the Meraki: 60ft. lots community page for full neighborhood insights, including nearby schools, shopping, walk & bike-scores, commuting, air quality & natural hazards.

Available homes in Meraki: 60ft. lots
- Home at address 2919 Messenger St, Forney, TX 75126

Birchwood
$523,390
- 4 bd
- 3.5 ba
- 2,796 sqft
2919 Messenger St, Forney, TX 75126
- Home at address 2408 Drummond St, Forney, TX 75126

Fleetwood
$531,090
- 4 bd
- 3.5 ba
- 2,681 sqft
2408 Drummond St, Forney, TX 75126
- Home at address 2414 Drummond St, Forney, TX 75126

Leyland
$566,790
- 4 bd
- 3.5 ba
- 3,308 sqft
2414 Drummond St, Forney, TX 75126
- Home at address 2716 Railway St, Forney, TX 75126

Millbeck
$585,690
- 4 bd
- 3.5 ba
- 3,284 sqft
2716 Railway St, Forney, TX 75126
More floor plans in Meraki: 60ft. lots

Considering this plan?
Our expert will guide your tour, in-person or virtual
Need more information?
Text or call (888) 486-2818
Financials
Estimated monthly payment
Let us help you find your dream home
How many bedrooms are you looking for?
































